

作品包括:
Word版说明书1份,共19页,约3300字
开题报告一份
CAD版本图纸,共4张
UG三维图一份
摘 要
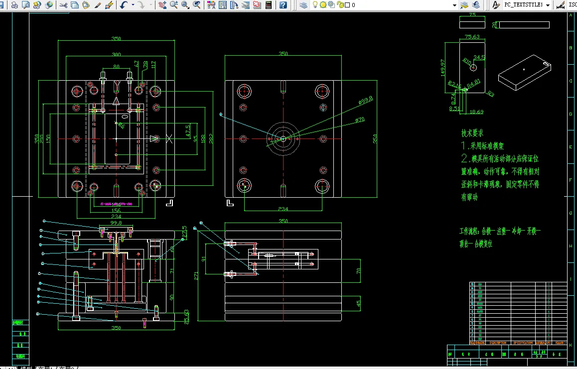
本次设计分析了玩具手机外壳模具的材料与产品的结构,通过深入的分析最终确定了该产品的表面精度与尺寸精度。然后在这个基础上剖析了该产品成型的方案,选择合理的分型面,确定了模具型腔的数目,选择有效的塑料和注塑机,确定注塑机的成型参数,通过对结构分析与相关计算,最终确定了模具模架和相关的尺寸。最后运用AUOTOCAD和UG为辅助软件完成了图纸的绘制。
设计在研究中是利用CAD软件和外挂软件,缩短了绘图的周期,为模具设计开发提供了关键的技术支持。
关键词:注塑;生产;模架;CAD
目 录
前 言 1
1塑件分析 2
1.1 塑件结构分析 2
1.2 塑件材料分析 2
1.3 塑件成型分析 2
2模具结构设计 3
2.1分型面的选择 3
2.2 型腔尺寸选择 3
2.3 模架的选择 4
3模具系统设计 5
3.1 浇注系统的结构 5
3.2 顶出机构设计 5
3.3 冷却系统设计 6
4模具图绘制 7
4.1 装配图绘制 7
结 论 8
致 谢 9
附 录 10
参考文献 11
温馨提示:
1、题目前面的备注【字母数字编号】为本站整理分类的编号,与课题内容无关,请选题时忽视;
2、若题目上备注三维,则表示文件里包含三维源文件,由于三维组成零件数量较多,为保证预览截图的简洁性,本站将三维文件夹进行了打包。三维及CAD预览截图,均为本站电脑打开软件进行截图的,保证能够打开,下载原件超高清,下载后解压即可;
3、本站所有资源如无特殊说明,都需要本地电脑安装Office2007。图纸软件为AutoCAD,PROE,UG,SolidWorks,CATIA等;
4、本站所有图文资料仅供用户学习参考,不作为任何商用或其他用途;
5、本站不保证下载资源的准确性、安全性和完整性, 不包修改,不支持退换,同时也不承担用户因使用这些下载资源对自己和他人造成任何形式的伤害或损失;
6、 下载文件中如有侵权或不适当内容,请与我们联系,我们立即纠正。