

作品包括:
Word版说明书1份,共23页,约4200字
开题报告一份
CAD版本图纸,共7张
摘 要
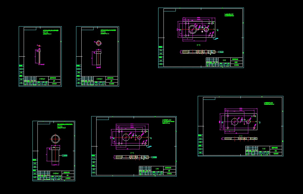
本次课题为垫圈片冲裁模设计,介绍了垫圈冲孔-落料级进模设计的一般方法及步骤。
冲裁模具的设计首先要通过对零件的工艺分析,确定工艺方案并通过必要的工艺计算,然后再进行模具设计,绘制模具总装图和零件图。
关键词:方法;零件;步骤;工艺计算
目 录
前 言1
1 冲压模具概述2
1.1 冲压模具概念2
1.2 冲压模具分类2
1.2.1 根据工艺性质分类2
1.2.2 根据工序组合程度分类2
2 冲压件的工艺分析3
2.1 零件的工艺分析3
2.1.1 零件的材料分析3
2.1.2 零件的尺寸分析3
2.1.3 结构分析3
3 零件成型工艺方案的确定4
3.1 成型工序分析4
3.2 成型方案确定4
3.2.1 先落料后冲孔,采用两套单工序模生产4
3.2.2 落料-冲孔复合冲压,采用复合模生产4
3.2.3 冲孔-落料冲压,采用级进模生产4
4 工艺计算5
4.1 搭边值5
4.2 采用横排无侧压排样设计5
5 冲压力6
5.1 计算冲压力6
5.1.1 冲裁力6
5.1.2 推件力6
5.2 压力机公称压力计算6
6 冲裁间隙及刃口尺寸计算7
6.1 冲裁间隙7
6.2 刃口尺寸计算7
7 凹凸模的尺寸计算9
7.1 凸模装置设计9
7.2 凹模板结构设计9
7.3 其他零件11
7.3.1 毛坯定位11
7.3.2 卸料出件11
8 模架的选取11
9 模具总装图12
9.1 凹模板13
9.2 凸模13
总 结15
致 谢16
参考文献17
温馨提示:
1、题目前面的备注【字母数字编号】为本站整理分类的编号,与课题内容无关,请选题时忽视;
2、若题目上备注三维,则表示文件里包含三维源文件,由于三维组成零件数量较多,为保证预览截图的简洁性,本站将三维文件夹进行了打包。三维及CAD预览截图,均为本站电脑打开软件进行截图的,保证能够打开,下载原件超高清,下载后解压即可;
3、本站所有资源如无特殊说明,都需要本地电脑安装Office2007。图纸软件为AutoCAD,PROE,UG,SolidWorks,CATIA等;
4、本站所有图文资料仅供用户学习参考,不作为任何商用或其他用途;
5、本站不保证下载资源的准确性、安全性和完整性, 不包修改,不支持退换,同时也不承担用户因使用这些下载资源对自己和他人造成任何形式的伤害或损失;
6、 下载文件中如有侵权或不适当内容,请与我们联系,我们立即纠正。