

作品包括:
Word版说明书一份,共58页,约17000字
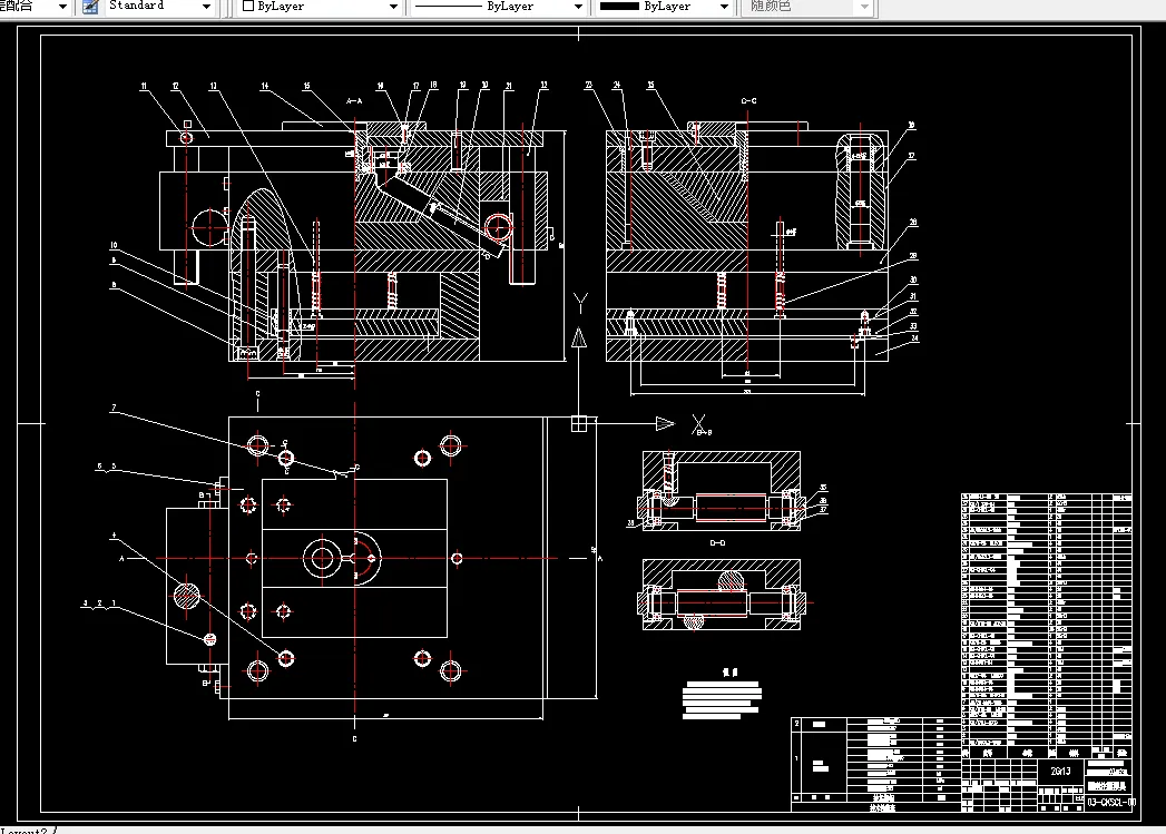
CAD版本图纸,共6张
摘 要
注射成型加工质量的优劣是塑料加工业技术发展水平的标志之一,同时反映了模具设计和制造的水平。详细介绍了刷座注塑模具设计的整个过程。首先通过对塑件的结构和成型工艺分析,确定塑件的分型面与浇口结构;然后再进行模具零件设计,如成型零件、脱模机构等等。同时在整个设计过程中,还要通过计算机辅助工具CAD/CAE进行设计。重点阐述如何利用CAE软件,将注射成型中塑料熔体在型腔内充填模拟,通过对模拟结果的分析与评判,有效预防了原模具设计方案用于实际生产时可能出现的问题,以生产出合格的产品。而在结构设计方面,重点阐述了齿轮齿条抽芯机构设计要点,模具结构紧凑、合理。
关键词: 注塑成型、注塑模设计、工艺分析
目 录
第一章 概述……………………………………………………………………………1.
1.1国际、国内塑料模具成型发展概况……………………………………………1
1.2塑料模具设计方法主要发展方向………………………………………………3
1.3毕业设计课题资料查询…………………………………………………………3
1.4毕业设计思想简述………………………………………………………………7
第二章 塑料制件的工艺性分析及工艺结构设计………………………………………8
2.1成型塑料制件结构工艺性分析…………………………………………………8
2.2塑件三维CAD建模及CAE分析…………………………………………………9
2.3根据CAE分析结论进行模具工艺设计…………………………………………14
第三章 选择注射机及注射机工艺参数校核……………………………27
3.1注塑机的技术规范………………………………………………………………27
3.2注塑压力的核核(可计算、可应用CAE分析结论)…………………………28
3.3锁模力的校核……………………………………………………………………29
第四章 模具设计…………………………………………………………………30
4.1确定标准注塑模架………………………………………………………………30
4.2模具成型零件设计………………………………………………………………30
4.3型腔成型尺寸计算………………………………………………………………31
4.4型腔壁厚计算和强度校核………………………………………………………34
4.4脱模机构设计……………………………………………………………………34
4.5模具主要连接、定位、导向件设计……………………………………………37
4.6模具冷却系统设计………………………………………………………………40
第五章 绘制模具图………………………………………………………………41
5.1绘制总装结构图…………………………………………………………………43
5.2绘制重要零件图…………………………………………………………………43
5.3校对、审图………………………………………………………………………43
5.4模具设计的标准化问题…………………………………………………………44
第六章 结论…………………………………………………………………………….45
参考文献 …………………………………………………………………………………46
致谢 ………………………………………………………………………………………47
附件A………………………………………………………………………………………48
附件B………………………………………………………………………………………49
温馨提示:
1、题目前面的备注【字母数字编号】为本站整理分类的编号,与课题内容无关,请选题时忽视;
2、若题目上备注三维,则表示文件里包含三维源文件,由于三维组成零件数量较多,为保证预览截图的简洁性,本站将三维文件夹进行了打包。三维及CAD预览截图,均为本站电脑打开软件进行截图的,保证能够打开,下载原件超高清,下载后解压即可;
3、本站所有资源如无特殊说明,都需要本地电脑安装Office2007。图纸软件为AutoCAD,PROE,UG,SolidWorks,CATIA等;
4、本站所有图文资料仅供用户学习参考,不作为任何商用或其他用途;
5、本站不保证下载资源的准确性、安全性和完整性, 不包修改,不支持退换,同时也不承担用户因使用这些下载资源对自己和他人造成任何形式的伤害或损失;
6、 下载文件中如有侵权或不适当内容,请与我们联系,我们立即纠正。