

作品包括:
word说明书一份,共20页,约9600字
CAD版本图纸,共11张
摘 要
模具生产技术水准的高低,已成为衡量一个国家产品制造水平高低的重要标志,因为模具在很大程度上决定着产品的质量、效益和新产品的开发能力。
本论文详细的论述了连接套塑料模设计的全过程。其中包括塑料的材料性能,塑件结构工艺性,以及设计中所要涉及的计算问题,
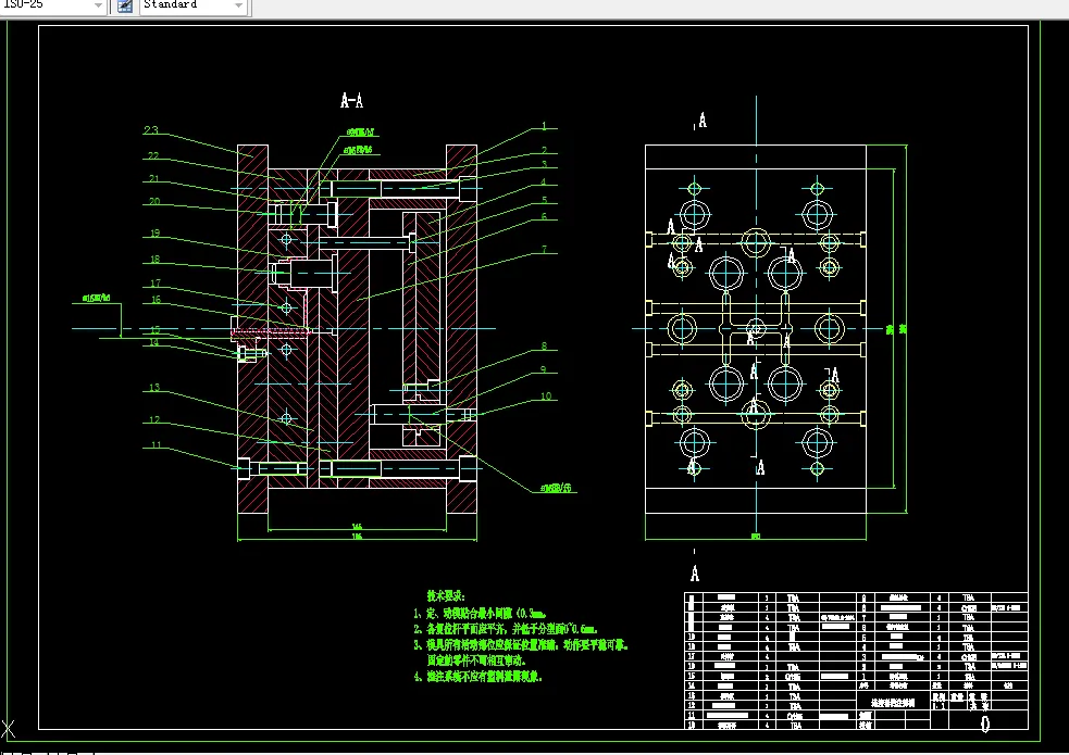
该塑件是用于摩托车制动器软轴上的连接套。该产品目前市场的需求量非常大,价格较低,市场竞争力大。 该产品采用侧浇口,需人工切除凝料,提高了成本。从模具的角度考虑,要想降低成本,需设计全自动脱模式的模具。但会使模具结构复杂化,同时又使成本提高了。正由于该产品的精度要求一般,结构简单,脱模很方便。因此可设计成多腔模形式以提高生产率。所以本产品采用了一模出四件的形式进行成型加工,大大提高了生产效率。
改进后的模具大大降低了成本,提高了生产率,
关键词: 浇口,注射模,多腔模
目 录
第一章 引言……………………………………………………
第二章 塑件的工艺性………………………………………….
2.1塑件的原材料的分析…………………………………………..
2.2塑件的尺寸精度分析…………………………………………….
2.3塑件的表面质量分析……………………………………………
2.4塑件结构工艺性分析……………………………………………
2.5塑件的壁厚分析…………………………………………………..
2.6脱模斜度的分析…………………………………………………..
2.7塑件的圆角分析………………………………………………….
2.8塑件上孔的设计…………………………………………………..
2.9塑件注射工艺参数的确定………………………………………
第三章 注射模的结构设计………………………………………..
3.1型腔数目的确定…………………………………………………….
3.1.1根据塑件的形状估算其体积和重量……………………….
3.1.2选择设备型号规格,确定型腔数………………………
3.2分型面的设计……………………………………………………….
3.2.1分型面的概念……………………………………………….
3.2.2分型面选择的一般原则…………………………………….
3.2.3分型面选择应注意………………………………………….
3. 3浇注系统设计………………………………………………………..
3.3.1分流道系统设计……………………………………………
3.3.2主浇道设计…………………………………………………..
3.3.3浇口的设计…………………………………………………..
3.3.4冷料穴和拉料杆……………………………………………..
3.3.5排气系统的设计……………………………………………..
3.3.6脱模设计…………………………………………………..
第四章 模具设计的有关计算……………………………………….
4.1 工作尺寸计算……………………………………………………….
4.2有关压力与锁模力的校核…………………………………………..
第五章 冷却系统的设计 …………………………………………..
5.1冷却系统的设计原则………………………………………………….
第六章 注塑机有关参数的校核……………………………………
第七章 绘制模具总装图和非标零件工作图 ……………………
第八章 总结………………………………………………………
参考资料………………………………………………………………
温馨提示:
1、题目前面的备注【字母数字编号】为本站整理分类的编号,与课题内容无关,请选题时忽视;
2、若题目上备注三维,则表示文件里包含三维源文件,由于三维组成零件数量较多,为保证预览截图的简洁性,本站将三维文件夹进行了打包。三维及CAD预览截图,均为本站电脑打开软件进行截图的,保证能够打开,下载原件超高清,下载后解压即可;
3、本站所有资源如无特殊说明,都需要本地电脑安装Office2007。图纸软件为AutoCAD,PROE,UG,SolidWorks,CATIA等;
4、本站所有图文资料仅供用户学习参考,不作为任何商用或其他用途;
5、本站不保证下载资源的准确性、安全性和完整性, 不包修改,不支持退换,同时也不承担用户因使用这些下载资源对自己和他人造成任何形式的伤害或损失;
6、 下载文件中如有侵权或不适当内容,请与我们联系,我们立即纠正。