

作品包括:
WORD版本说明书1份,共19页,约13000字
CAD版本图纸,共2张
目 录
1.绪论………………………………………………………………………………………………………6
1.1.我国大气治理概况……………………………………………………………………………………6
1.2.大气污染防治技术……………………………………………………………………………………7
1.2.1.脱硫技术……………………………………………………………………………………………7
1.2.2.除尘技术……………………………………………………………………………………………9
1.3.旋流板塔………………………………………………………………………………………………10
1.3.1.旋流板塔技术应用范围……………………………………………………………………………10
2.工艺设计…………………………………………………………………………………………………10
2.1.设计项目概况………………………………………………………………………………………… 10
2.2.工艺选择……………………………………………………………………………………………… 11
2.2.1. 旋流塔板的技术特点………………………………………………………………………………11
2.2.2.旋流塔板的主要特点………………………………………………………………………………11
2.2.3.技术原理……………………………………………………………………………………………12
2.2.4.旋流塔板脱硫反应原理……………………………………………………………………………12
2.2.5.吸收反应……………………………………………………………………………………………13
2.2.6.再生反应……………………………………………………………………………………………13
2.3.工程技术方案…………………………………………………………………………………………13
2.3.1.工艺流程……………………………………………………………………………………………13
2.3.2.主要设计工艺参数…………………………………………………………………………………14
2.4.设计计算………………………………………………………………………………………………14
2.4.1.旋流板除尘器的主要尺寸…………………………………………………………………………14
2.4.2.碱液循环系统设计计算……………………………………………………………………………. 16
2.5.水泵与风机的选择…………………………………………………………………………………… 17
2.6.经济和环境效益分析………………………………………………………………………………… 17
2.6.自动控制与检测……………………………………………………………………………………… 17
3.致谢………………………………………………………………………………………………………18
主要参考资料………………………………………………………………………………………………18
附录
外文及翻译
附图一、高程图
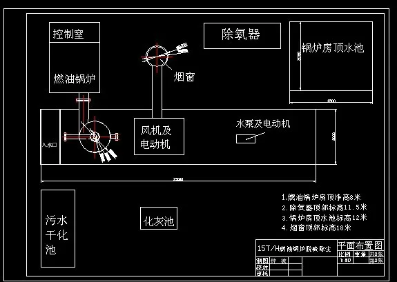
附图二、平面布置图
温馨提示:
1、题目前面的备注【字母数字编号】为本站整理分类的编号,与课题内容无关,请选题时忽视;
2、若题目上备注三维,则表示文件里包含三维源文件,由于三维组成零件数量较多,为保证预览截图的简洁性,本站将三维文件夹进行了打包。三维及CAD预览截图,均为本站电脑打开软件进行截图的,保证能够打开,下载原件超高清,下载后解压即可;
3、本站所有资源如无特殊说明,都需要本地电脑安装Office2007。图纸软件为AutoCAD,PROE,UG,SolidWorks,CATIA等;
4、本站所有图文资料仅供用户学习参考,不作为任何商用或其他用途;
5、本站不保证下载资源的准确性、安全性和完整性, 不包修改,不支持退换,同时也不承担用户因使用这些下载资源对自己和他人造成任何形式的伤害或损失;
6、 下载文件中如有侵权或不适当内容,请与我们联系,我们立即纠正。