

作品包括:
word说明书一份,共64页,约16000字
开题报告一份
外文翻译一份
CAD版本图纸,共5张
摘 要
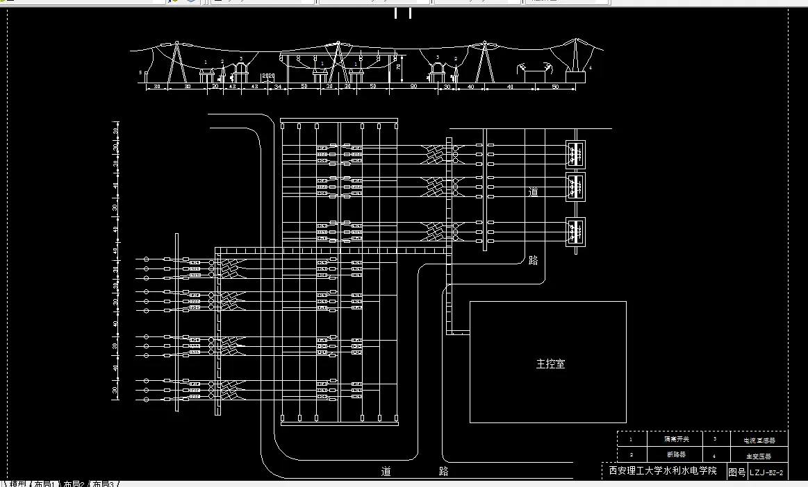
本论文主要对直岗拉卡水电站进行电气一次及发电机继电保护设计。直岗拉卡水电站的总装机功率为5×45=225MW,共四回110kv出线与系统相连。
电气一次部分,首先是根据所给出的原始资料拟定五种电气主接线方案.然后对这五种方案进行可靠性、灵活性和经济性比较后,保留两种较合理的方案,对这两种方案进行短路电流计算;接着是根据短路电流计算结果进行主要电气设备的选型以及校验,包括断路器、隔离开关、母线、绝缘子等;最后再由经济性比较确定最终的电气主接线方案。
发电机继电保护的设计是对5台发电机进行保护保护类型的配置,保护的整定计算及校验,继电器的选型。论文还附有5张AutoCAD的图纸加以说明。包括电气主接线图、室外配电装置图、发电机保护的原理接线图、展开图、保护屏的布置及端子排接线图。
毕业设计的过程是一次将理论与实际相结合的过程,通过这次比较系统全面的进行设计之后,巩固和增强了电力系统学科主干课程的理解,树立了工程设计的观念,提高了电力系统设计的能力。
关键词:电气主接线,短路电流计算,设备选型,继电保护
目 录
前 言 1
第一章 电气主接线设计 2
1.1 设计原则 2
1.2 各方案比较 3
第二章 厂用电设计 8
2.1 厂用电设计原则 8
第三章 短路电流计算 9
3.1 对称短路电流计算 9
3.2 非对称短路电流计算 19
第四章 电器主设备选择 30
4.1对方案I的各主设备选择 30
4.2 对方案Ⅱ的各主设备选择 44
第五章 发电机继电保护原理设计及保护原理 46
5.1 初步分析 46
5.2 对F1 的保护整定计算 47
5.3 对F5的保护整定计算: 50
第六章 计算机监控系统方案论证选择 54
6.1 系统功能 54
6.2 监控对象 56
6.3 系统结构 56
小 结 58
致 谢 59
参考文献 60
附 录Ⅰ 62
附 录Ⅱ 63
温馨提示:
1、题目前面的备注【字母数字编号】为本站整理分类的编号,与课题内容无关,请选题时忽视;
2、若题目上备注三维,则表示文件里包含三维源文件,由于三维组成零件数量较多,为保证预览截图的简洁性,本站将三维文件夹进行了打包。三维及CAD预览截图,均为本站电脑打开软件进行截图的,保证能够打开,下载原件超高清,下载后解压即可;
3、本站所有资源如无特殊说明,都需要本地电脑安装Office2007。图纸软件为AutoCAD,PROE,UG,SolidWorks,CATIA等;
4、本站所有图文资料仅供用户学习参考,不作为任何商用或其他用途;
5、本站不保证下载资源的准确性、安全性和完整性, 不包修改,不支持退换,同时也不承担用户因使用这些下载资源对自己和他人造成任何形式的伤害或损失;
6、 下载文件中如有侵权或不适当内容,请与我们联系,我们立即纠正。