

作品包括:
Word版说明书1份,共35页,约17000字
任务书一份
开题报告一份
PPT答辩一份
外文翻译一份
CAD版本图纸,共5张

摘要
本文主要介绍了年产600吨的软包装鸡爪工厂的产品方案。工厂设计包括工艺设计和非工艺设计两大组成部分。工艺设计包括六方面主要内容为有产品方案的确定、材料的要求、工艺流程的安排、物料衡算、设备选择以及车间平面布置等。工艺设计除上述内容外,还必须提出:工艺对总平面布置中相对位置的要求;对车间建筑、采光、通风、卫生设施的要求;对生产车间的水、电、汽进行计算;对给水水质的要求;对排水和废水水质处理的要求;对各类仓库面积的计算等等。
非工艺设计包括:总平面、土建、采暖通风、给排水、供电及自控、制冷、动力、环保等的设计,有时还包括设备的设计。
最后,整个设计能够做到高效、节能、环保,并能够保证食品安全符合国家及行业的有关标准.
关键词:软包装,工厂设计,工艺设计、非工艺设计
目录
摘要 2
Abstract 3
第一章 总论 4
1.1 绪论 4
1.2设计范围 8
1.3 设计依据 9
1.4 厂址选择 9
第二章 工艺部分 11
2.1 产品方案 11
2.2原辅材料要求 12
2.3 包装材料规格和要求 13
2.4 工艺流程 14
2.5 物料衡算 17
2.6 设备选型和计算 19
2.7水、电、汽平衡 21
2.8劳动力平衡 21
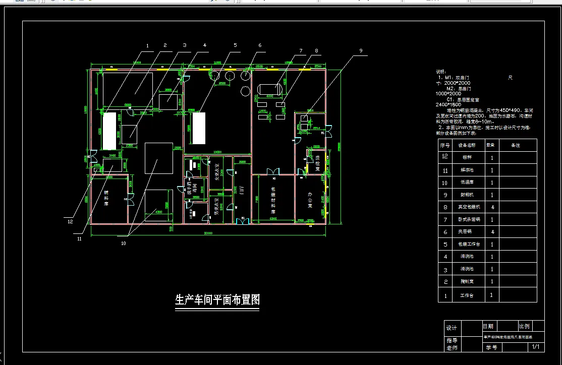
2.9 车间平面布置 23
2.10 主要经济定额指标 24
第三章 公用系统 24
3.1 给排水系统 25
3.2 供电系统 26
3.3 供汽系统 26
3.4 采暖与通风 27
3.5污水处理 27
第四章 建筑部分 27
第五章 安全、防火及卫生 29
第六章 综合经济 31
参考文献 33
致 谢 34
温馨提示:
1、题目前面的备注【字母数字编号】为本站整理分类的编号,与课题内容无关,请选题时忽视;
2、若题目上备注三维,则表示文件里包含三维源文件,由于三维组成零件数量较多,为保证预览截图的简洁性,本站将三维文件夹进行了打包。三维及CAD预览截图,均为本站电脑打开软件进行截图的,保证能够打开,下载原件超高清,下载后解压即可;
3、本站所有资源如无特殊说明,都需要本地电脑安装Office2007。图纸软件为AutoCAD,PROE,UG,SolidWorks,CATIA等;
4、本站所有图文资料仅供用户学习参考,不作为任何商用或其他用途;
5、本站不保证下载资源的准确性、安全性和完整性, 不包修改,不支持退换,同时也不承担用户因使用这些下载资源对自己和他人造成任何形式的伤害或损失;
6、 下载文件中如有侵权或不适当内容,请与我们联系,我们立即纠正。