

作品包括:
Word版说明书1份,共45页
CAD版本图纸,共4张

摘要
白酒是世界七大蒸馏酒名酒之一,是纯天然的绿色食品,是中国特有的一种蒸馏酒。本次设计为年产1500吨浓香型白酒(大曲酒)发酵车间设计。主要包括全厂工艺论证、全厂物料衡算、全厂热量衡算、水平衡计算以及车间主要设备计算及附属设备的计算与选型、车间布置等及全厂布置。
浓香型大曲酒主要以以五谷、稻壳、水为主要原料,经窖池发酵甑桶蒸馏等酿制而成的高度白酒。浓香型大曲酒在整个酿造过程中,大体上可分为几个步骤:开窖起糟、续糟配料、蒸馏摘酒、出甑、打量水、摊晾、加曲入窖。其中蒸馏摘酒、加曲入窖是生产的重要环节。设计从实际生产出发,确定出年产8000吨浓香型大曲酒所需要的物料量,热量和发酵车间内的常用设备如甑桶、冷凝器、窖池、晾糟设备、酒醅出入窖运输设备等的主要尺寸、选型以及全厂的布置。
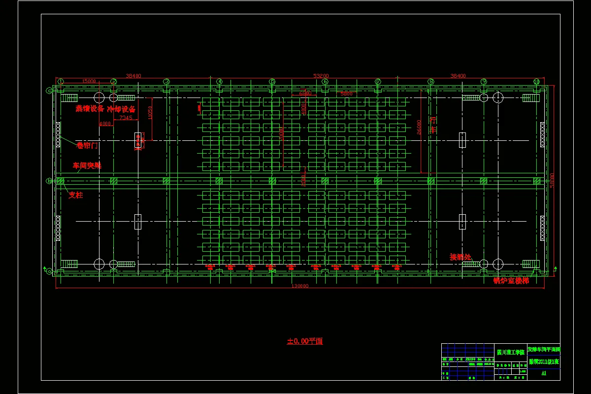
本次设计绘制图纸共4张,分别是全厂工艺流程方框图;发酵车间平面布置图;发酵车间立面图;全厂平面布置图。
目录
摘要I
Abstract II
前言1
第一章全厂工艺论证2
1.1全厂工艺流程2
1.2制曲工艺流程及论证4
1.2.1工艺流程图4
1.2.2偏高温大曲工艺的论证4
1.2.2.1具体操作及论证4
1.3制酒工艺流程及论证9
1.3.1酿造工艺流程: 9
1.3.2工艺说明10
1.4降度工艺11
1.4.1降度的目的11
1.4.2降度处理工艺11
1.5库房工艺(贮存工艺) 12
1.5.1库存12
1.5.2酒的勾兑和调味13
1.6包装工艺15
1.6.1工艺流程图15
1.6.2工艺说明15
第二章物料衡算15
2.1工艺技术指标及基础数据16
2.2理论出酒率16
2.3实际生产效率计算17
2.3.1发酵效率17
2.3.2蒸馏效率18
2.3.3淀粉利用率18
2.3.4每100 kg 65%(酒精体积分数)酒粮耗18
2.3.5每100 kg 65%(酒精体积分数)酒曲耗18
2.3.6原料出酒率18
2.3.7淀粉出酒率18
2.4原料用量计算19
第三章热量衡算20
3.1蒸汽供热Q蒸21
3.1.1糟醅升温耗热Q1 21
3.1.2蒸酒、蒸粮过程耗热Q蒸酒、Q蒸粮22
3.2量水耗热Q量水22
3.3一口窖池生产总耗热量Q总22
3.4蒸煮过程热损失Q12 23
3.5一口窖池蒸汽耗用量D 23
3.6最大蒸汽消耗量Qmax 24
3.7蒸汽单耗24
3.8酒的冷凝放热Q酒24
3.9凉糟放热Q凉糟25
第四章水平衡计算25
4.1清洗用水26
4.2原料粉碎前润料日用水26
4.3制曲加水搅拌日用水26
4.4配料前五谷粉润料日用水26
4.5日用打量水量26
4.6曲池冲洗日用水量26
4.7冷却用水26
4.8洗瓶子用水26
4.9勾兑酒日用水量26
4.10其他用水26
第五章车间主要设备计算26
5.1甑桶设计27
5.1.1甑桶的设计28
5.1.2甑桶部件选型29
5.1.3甑桶设计参数30
5.2冷凝器设计30
5.2.1冷凝器技术指标30
5.2.2冷凝器规格31
5.2.3接管的选择32
5.2.4冷凝器设计参数32
5.3窖池的设计及建造33
5.4晾糟设备34
5.5酒醅出入窖运输设备34
第六章厂房总平面布置图的要求及重点车间的平面布置35
6.1厂房总平面布置的要求36
6.2全厂平面布置图36
6.3制曲车间的布置36
6.4制酒车间的布置37
6.5酒库车间的布置38
6.6包装车间的布置38
参考文献38
致谢39
温馨提示:
1、题目前面的备注【字母数字编号】为本站整理分类的编号,与课题内容无关,请选题时忽视;
2、若题目上备注三维,则表示文件里包含三维源文件,由于三维组成零件数量较多,为保证预览截图的简洁性,本站将三维文件夹进行了打包。三维及CAD预览截图,均为本站电脑打开软件进行截图的,保证能够打开,下载原件超高清,下载后解压即可;
3、本站所有资源如无特殊说明,都需要本地电脑安装Office2007。图纸软件为AutoCAD,PROE,UG,SolidWorks,CATIA等;
4、本站所有图文资料仅供用户学习参考,不作为任何商用或其他用途;
5、本站不保证下载资源的准确性、安全性和完整性, 不包修改,不支持退换,同时也不承担用户因使用这些下载资源对自己和他人造成任何形式的伤害或损失;
6、 下载文件中如有侵权或不适当内容,请与我们联系,我们立即纠正。