

作品包括:
Word版说明书1份,共66页,约27000字
开题报告一份
外文翻译一份
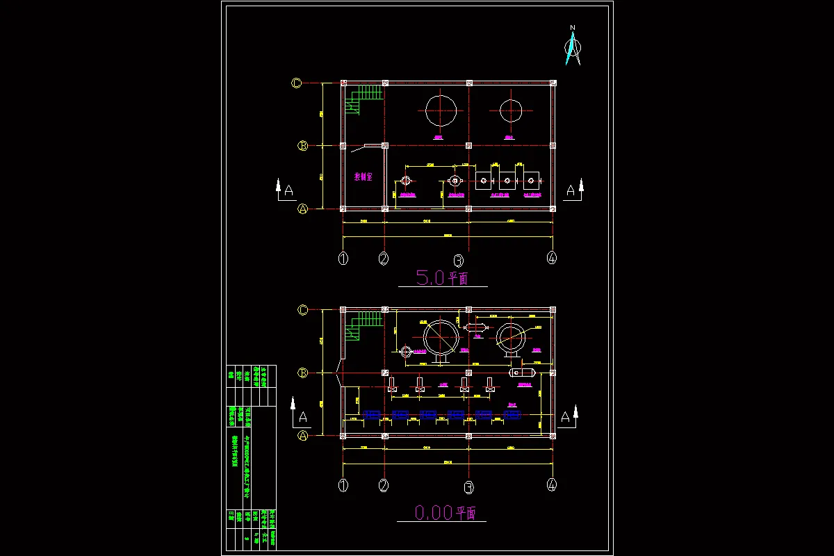
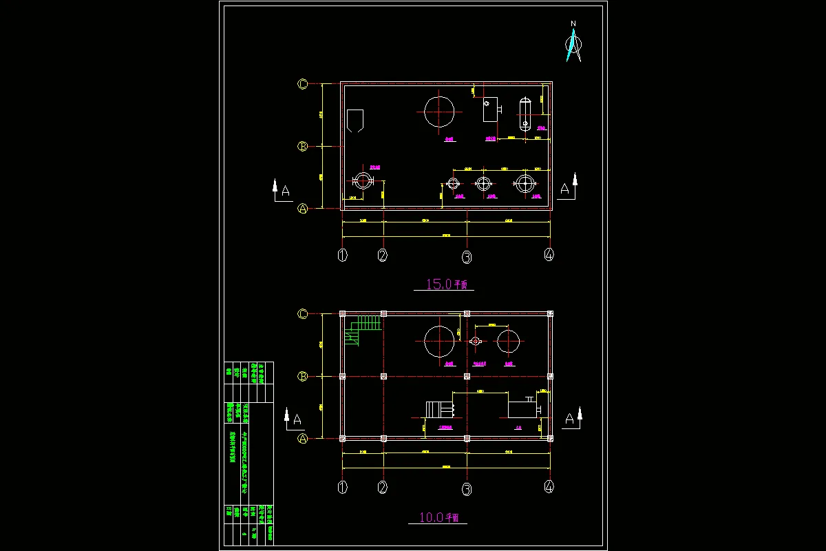
CAD版本图纸,共4张
![1716863539867893.webp ]I4]1M{HU][$N~VT~[OXXD0.webp](/static/upload/image/20240528/1716863539867893.webp)
摘 要
乙醇在人们日常生活以及科学研究等诸多领域都有很广泛的应用。世界乙醇行业以及我国乙醇行业都呈现快速发展趋势,产量逐年递增。发酵法生产乙醇的能力将成为一个国家经济实力的标志。发酵法主要是利用微生物无氧发酵,将含糖物质如,甘蔗,甘薯,玉米等物质内的糖类转化为乙醇。此法原料来源丰富,生产过程环保,值得大力推广。本设计对玉米乙醇生产的发酵车间和精馏车间进行了计算和设备选型,力求理论和实践相结合。
关键词:玉米,乙醇,发酵法,发酵车间,蒸馏车间
目 录
摘 要 I
ABSTRACT II
1 绪 论 1
1.1 乙醇的主要性质 1
1.2 乙醇的主要用途 1
1.3 我国乙醇行业基本状况发展趋势 2
1.4 乙醇工业生产方法 2
1.4.1化学合成法 2
1.4.3发酵法 3
1.5 乙醇国家标准 4
1.6 项目建设的背景 4
1.7 项目实施的意义及必要性 6
1.8 生产原料的供应 7
1.8.1主要原料的供应 7
1.8.2 辅助材料的供应 8
2 生产工艺与设备介绍 9
2.1 糖化、蒸煮工段 9
2.2 发酵工段 10
2.2.1酒母培养的工艺流程 10
2.2.2 发酵 11
2.3 蒸馏工段 11
3 乙醇生产物料衡算 13
3.1 全厂物料衡酸的内容 13
3.2 工艺流程示意图 13
3.3 工艺技术指标及基础数据 13
3.4 原料消耗的计算 14
3.5 蒸煮醪量的计算 15
3.6 糖化醪与发酵醪量的计算 16
3.7 发酵醪量的计算 17
3.8 50000吨/年淀粉原料乙醇厂总物料衡算 18
3.9 50000吨乙醇发酵车间水衡算 19
4 设备计算、选型与热量衡算 21
4.1 发酵设备的计算与选型 21
4.1.1 发酵罐容积的确定: 21
4.1.2 发酵罐能力的计算: 21
4.1.3 发酵罐个数的确定: 22
4.1.4 主要尺寸的计算 22
4.1.5 设备材料的选择: 25
4.1.6 发酵罐壁厚的计算 25
4.1.7 接管设计 26
4.1.8 支座选择 26
4.2种子罐的计算与选型 27
4.2.1 种子罐容积和数量的确定: 27
4.2.2 冷却面积计算(采用夹套冷却) 27
4.2.3 壁厚计算: 28
4.2.4 种子罐结构的工艺设计: 29
4.2.5 种子罐进风管(进料管) 30
4.2.6 冷却水管: 31
4.3 粗馏塔的计算与选型 32
4.3.1粗馏塔的物料和能量衡算 32
4.3.2 粗镏塔的结构计算 33
4.4 精馏塔的计算与选型 36
4.4.1 精馏塔基本数据的确定 37
4.4.2 计算加热蒸汽量G和废液量W: 38
4.4.3 阀塔板间距的选择与塔径的估算: 39
4.4.4 层数的确定: 39
4.4.5 塔高的计算 40
4.4.6 塔板的计算 41
4.4.7 接管计算: 44
4.4.8 精馏塔其他尺寸确定 45
4.5 工艺设备一览表 46
5 环境的保护和安全措施 49
5.1全厂平面图设计原则 49
5.1.1 原料厂及堆场 49
5.1.2 生产区 49
5.1.3 厂前区 50
5.1.4 动力区 50
5.1.5 辅助生产车间 50
5.1.6 仓库区 50
5.1.7 工厂绿化 50
5.2 车间布置原则 51
5.2.1 装置(车间)的组成 51
5.2.2 车间布置方式 52
5.3工厂防护 52
5.4给排水 52
5.5供电 53
5.6供热 54
5.7空压站、冷冻站 54
5.8维修车间 54
5.9科研、化验楼 55
5.10节能 55
5.11 发生火灾的主要原因及其预防 55
5.11.1 发生火灾的原因 56
5.11.2 预防原则 56
5.12主要污染物 56
5.13污染物控制方案 57
6 设计结果 58
致 谢 59
参考文献 60
温馨提示:
1、题目前面的备注【字母数字编号】为本站整理分类的编号,与课题内容无关,请选题时忽视;
2、若题目上备注三维,则表示文件里包含三维源文件,由于三维组成零件数量较多,为保证预览截图的简洁性,本站将三维文件夹进行了打包。三维及CAD预览截图,均为本站电脑打开软件进行截图的,保证能够打开,下载原件超高清,下载后解压即可;
3、本站所有资源如无特殊说明,都需要本地电脑安装Office2007。图纸软件为AutoCAD,PROE,UG,SolidWorks,CATIA等;
4、本站所有图文资料仅供用户学习参考,不作为任何商用或其他用途;
5、本站不保证下载资源的准确性、安全性和完整性, 不包修改,不支持退换,同时也不承担用户因使用这些下载资源对自己和他人造成任何形式的伤害或损失;
6、 下载文件中如有侵权或不适当内容,请与我们联系,我们立即纠正。