

作品包括:
Word版说明书1份,共57页,约21000字
任务书一份
开题报告一份
外文翻译一份
PPT答辩一份
CAD版本图纸,共7张

摘要
大田坝电站为布拖县交际河干流(冯家坪取水口至河口段)河段流域水电规划中的梯级电站,位于交际河下游河段。交际河流域介于东经102°42′至102°54′,北纬27°16′至27°28′之间。大田坝电站的建设对凉山州水电发展和合理利用和优化配置交际河下游段水资源有重要作用。
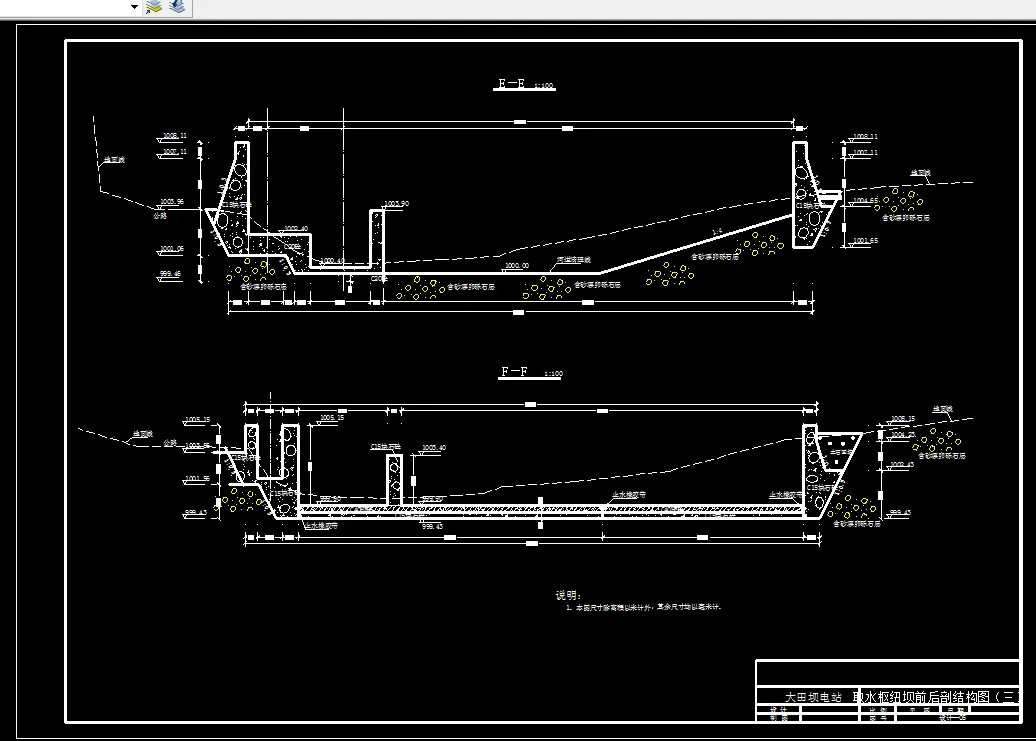
大田坝电站为引水式开发,其开发任务为在满足灌溉用水的前提下发电,兼顾下游环境生态用水要求。首部枢纽采用低溢流坝进行挡水,电站装机容量9600kW。本电站属Ⅴ等工程,设计主要根据已有的工程区水文、地质、工程任务、规模等基本资料提炼出进水闸取水流量、拟定进水闸孔口尺寸、冲沙闸孔口尺寸、进水闸正常水位、溢流坝长度、溢流坝顶高程;做进水闸进水能力,溢流坝泄洪能力,坝基抗滑稳定计算;根据取水流量拟定沉砂池尺寸、沉砂池进水节制闸尺寸、沉砂池冲沙闸尺寸、沉砂池溢流堰长度;做沉砂池进水节制闸进水能力计算、溢流堰泄流能力计算、沉砂池沉降能力复核。
关 键 词:拦河取水 溢流坝 沉砂池 稳定性 报告书
目 录
1 基本资料 - 1 -
1.1 工程概况 - 1 -
1.2 基本水文资料 - 2 -
1.3 工程地质 - 7 -
1.4 设计依据 - 10 -
2 坝址选择及枢纽布置 - 15 -
2.1 坝址选择 - 15 -
2.2 坝型选定 - 18 -
2.3 引水枢纽总体布置 - 18 -
3 拦河取水枢纽设计 - 20 -
3.1 溢流形式 - 20 -
3.2 溢流坝剖面设计 - 21 -
3.3 冲砂闸设计 - 27 -
3.4 进水闸设计[6] - 28 -
3.5 坝体稳定计算 - 31 -
4 沉砂池设计 - 43 -
4.1 设置沉砂池的必要性 - 43 -
4.2 确定设计标准值及有关特征值 - 44 -
4.3 选定工程位置和类型 - 45 -
4.4 沉砂池的工程布置 - 46 -
4.5 选定主要主要尺寸和指标 - 47 -
4.6 沉砂池节制闸尺寸及溢流堰设计 - 49 -
4.7 冲沙闸设计 - 51 -
4.8 沉砂池的结构设计 - 52 -
参考文献 - 53 -
致谢词 - 54 -
独撰声明 - 55 -
温馨提示:
1、题目前面的备注【字母数字编号】为本站整理分类的编号,与课题内容无关,请选题时忽视;
2、若题目上备注三维,则表示文件里包含三维源文件,由于三维组成零件数量较多,为保证预览截图的简洁性,本站将三维文件夹进行了打包。三维及CAD预览截图,均为本站电脑打开软件进行截图的,保证能够打开,下载原件超高清,下载后解压即可;
3、本站所有资源如无特殊说明,都需要本地电脑安装Office2007。图纸软件为AutoCAD,PROE,UG,SolidWorks,CATIA等;
4、本站所有图文资料仅供用户学习参考,不作为任何商用或其他用途;
5、本站不保证下载资源的准确性、安全性和完整性, 不包修改,不支持退换,同时也不承担用户因使用这些下载资源对自己和他人造成任何形式的伤害或损失;
6、 下载文件中如有侵权或不适当内容,请与我们联系,我们立即纠正。