

作品包括:
Word版说明书1份,共103页,约37000字
任务书一份
外文翻译一份
CAD版本图纸,共3张

摘要
本设计题目为设计一座2×220t的氧气转炉炼钢车间。本说明书是在广泛参考相关专业书籍的基础上结合.实习经历对专业知识的综合运用。该车间主要设备为两座公称容量为220t的氧气顶底复合吹转炉,两座LF炉,两座RH炉和一座铁水预脱硫站。该设计对转炉以及与转炉生产相协调的一些辅助系统的设计方案进行了比较和确定,且均达到了国内外平均先进水平。这些系统包括铁水供应系统、废钢供应系统、散装料供应系统、铁合金供应系统、氧气供应系统、烟气净化系统、炉外精炼系统,浇注系统和炉渣处理系统等。同时,本设计还对各系统的相关参数进行了计算。主要包括转炉炉型计算、氧枪计算、烟气净化系统计算、车间设备的计算和各跨间跨度的计算。另外溅渣护炉、铁水预处理、炉外精炼技术以及钢液面的控制均采取了国际先进水平。
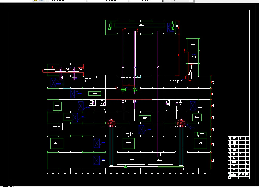
本设计得到氧气转炉炼钢车间设计说明书一份,车间平面工艺布置图、纵剖面图、横剖面图各一张,为转炉车间详细的工艺设计提供了重要的依据。
关键字:转炉;设计;炉外精炼;铁水预处理
目录
前言 1
1.设计方案的选择的选择与确定 2
1.1车间生产规模、转炉容量及座数的确定 2
1.1.1有关资料的选择 2
1.1.2生产规模的确定 2
1.1.3 产品方案 3
1.2车间各主要系统所用方案的比较及确定 3
1.2.1铁水供应系统 3
1.2.2废钢供应系统 4
1.2.3散状料供应系统 5
1.2.4铁合金供应系统 7
1.2.5铁水预处理系统 8
1.2.6烟气净化系统 9
1.2.7炉外精炼系统 17
1.2.8浇注系统 19
1.2.9炉渣处理系统 27
1.3 车间主厂房工艺布置 28
1.3.1 车间跨数的确定及各跨的工艺布置 28
1.3.1 车间跨数的确定及各跨的工艺布置 28
2.设备计算 35
2.1转炉计算 35
2.1.1炉型计算 35
2.1.2转炉倾动力矩计算及电机功率确定 39
2.2.氧枪设计 45
2.2.1喷头设计 45
2.2.2枪身设计 46
2.3烟气净化回收系统设备设计与计算 51
2.4. 炉外精炼设备的选择及主要参数 58
2.4.1主要设计及其特点 58
2.4.2 主要工艺设备技术性能 59
3.车间计算 68
3.1原材料供应系统 68
3.1.1铁水供应系统 68
3.1.2废钢厂及废钢斗计算 68
3.1.3散装料供应系统 70
3.1.4 合金料供应系统 71
3.2浇铸系统设备计算 71
3.2.1盛钢桶及盛钢桶车 72
3.2.2 连铸机 74
3.2.3中间包的主要参数确定 82
3.3渣罐的确定 83
3.4车厂房主要尺寸的确定 84
3.4.1 炉子跨主要尺寸的确定 84
3.4.2加料跨主要尺寸的确定 88
3.4.3精炼跨 89
3.4.4浇铸跨的标高、跨度和长度的确定 89
3.5天车 91
4新技术使用与说明 93
4.1 顶底复合吹炼技术 93
4.2 溅渣护炉技术 94
4.3 转炉煤气全干法静电除尘技术 95
参考文献 97
谢辞 98
温馨提示:
1、题目前面的备注【字母数字编号】为本站整理分类的编号,与课题内容无关,请选题时忽视;
2、若题目上备注三维,则表示文件里包含三维源文件,由于三维组成零件数量较多,为保证预览截图的简洁性,本站将三维文件夹进行了打包。三维及CAD预览截图,均为本站电脑打开软件进行截图的,保证能够打开,下载原件超高清,下载后解压即可;
3、本站所有资源如无特殊说明,都需要本地电脑安装Office2007。图纸软件为AutoCAD,PROE,UG,SolidWorks,CATIA等;
4、本站所有图文资料仅供用户学习参考,不作为任何商用或其他用途;
5、本站不保证下载资源的准确性、安全性和完整性, 不包修改,不支持退换,同时也不承担用户因使用这些下载资源对自己和他人造成任何形式的伤害或损失;
6、 下载文件中如有侵权或不适当内容,请与我们联系,我们立即纠正。