

作品包括:
Word版设计说明书1份
开题报告一份
外文翻译一份
CAD版本图纸,共3张
摘要
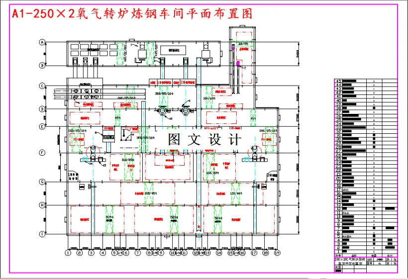
本设计为2座250吨的氧气转炉炼钢车间。车间的各主要系统为:铁水供应系统、散状料供应系统、废钢供应系统、铁合金供应系统,烟气净化系统、浇注系统、炉外精炼系统等。这些方案的确定都是经过比较国内外的生产企业的生产水平的基础上确定的,比较合理的方案。本设计主要包括转炉炉型计算、氧枪计算、烟气净化系统计算、车间设备的计算以及各跨间的布置。另外本设计还采用了许多新技术如:溅渣护炉技术、铁水预脱硫、连铸连轧技术,这些技术均已达到国际先进水平。
温馨提示:
1、题目前面的备注【字母数字编号】为本站整理分类的编号,与课题内容无关,请选题时忽视;
2、若题目上备注三维,则表示文件里包含三维源文件,由于三维组成零件数量较多,为保证预览截图的简洁性,本站将三维文件夹进行了打包。三维及CAD预览截图,均为本站电脑打开软件进行截图的,保证能够打开,下载原件超高清,下载后解压即可;
3、本站所有资源如无特殊说明,都需要本地电脑安装Office2007。图纸软件为AutoCAD,PROE,UG,SolidWorks,CATIA等;
4、本站所有图文资料仅供用户学习参考,不作为任何商用或其他用途;
5、本站不保证下载资源的准确性、安全性和完整性, 不包修改,不支持退换,同时也不承担用户因使用这些下载资源对自己和他人造成任何形式的伤害或损失;
6、 下载文件中如有侵权或不适当内容,请与我们联系,我们立即纠正。