

作品包括:
Word版设计说明书1份
中期报告一份
CAD版本图纸,共7张
摘要
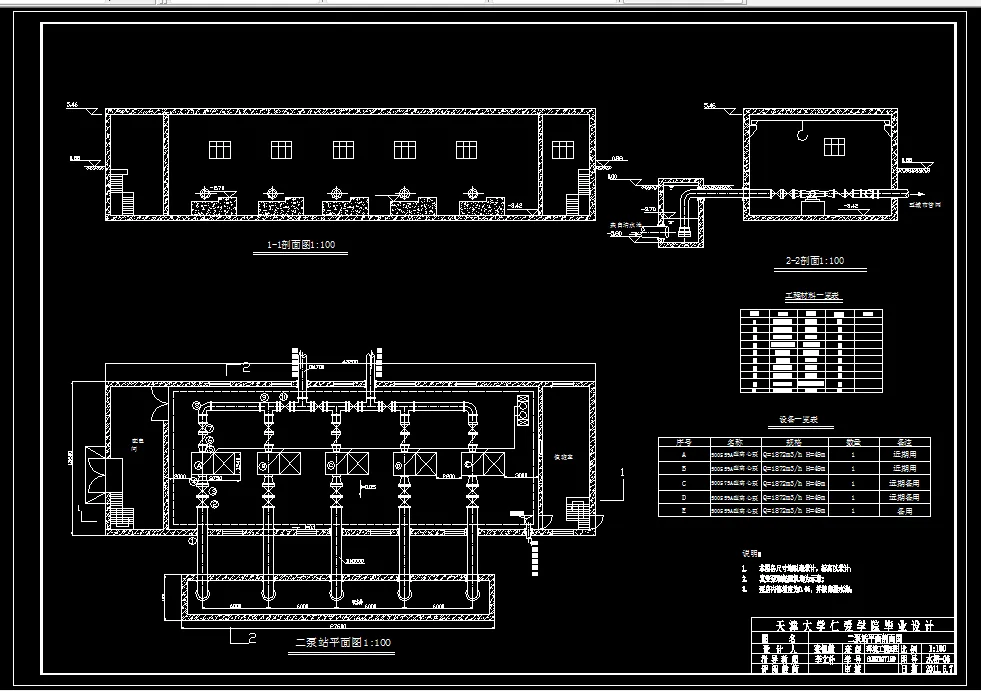
这次设计的题目是22000吨/年苯酐装置氧化工段(反应器)的工艺设计。通过了解和学习制苯酐的发展,最终确定了邻法制苯酐工艺;通过对生产路线经济实用、原料价格、反应器类型的评价,最终确定了BASF法工艺生产路线,用列管式固定床反应器,用V2O5作为催化剂生产。以300摩尔尾气为基准,利用节点的方法进行了物料衡算,然后又采用经验放大法得到了生产22000吨/年苯酐产品所需原料量和各设备进出口物料组成。利用物料衡算数据对反应器和换热器进行换热面积的计算。对反应器进行详细计算和结构设计,对各换热器、泵、管路进行计算选型。本次设计主要设计绘制了PID图、反应器设备装配图、车间设备布置图,对车间成本进行了经济核算,对车间生产定员做了具体安排,对三废排放和安全生产做了详述。
温馨提示:
1、题目前面的备注【字母数字编号】为本站整理分类的编号,与课题内容无关,请选题时忽视;
2、若题目上备注三维,则表示文件里包含三维源文件,由于三维组成零件数量较多,为保证预览截图的简洁性,本站将三维文件夹进行了打包。三维及CAD预览截图,均为本站电脑打开软件进行截图的,保证能够打开,下载原件超高清,下载后解压即可;
3、本站所有资源如无特殊说明,都需要本地电脑安装Office2007。图纸软件为AutoCAD,PROE,UG,SolidWorks,CATIA等;
4、本站所有图文资料仅供用户学习参考,不作为任何商用或其他用途;
5、本站不保证下载资源的准确性、安全性和完整性, 不包修改,不支持退换,同时也不承担用户因使用这些下载资源对自己和他人造成任何形式的伤害或损失;
6、 下载文件中如有侵权或不适当内容,请与我们联系,我们立即纠正。