

作品包括:
Word版设计说明书1份
任务书一份
CAD版本图纸,共6张
摘要
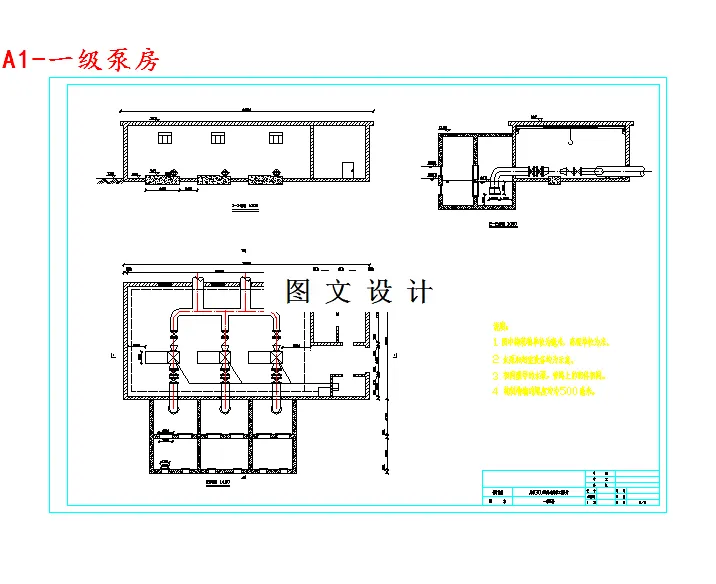
水处理构筑物的生产能力应以最高日供水量加自来水厂自用水量进行设计,并以水质最不利状况进行校核。水厂自用水量主要用于滤池冲洗和澄清池排泥等方面。城镇水厂只用水量一般采用供水量的5%~10%,本设计采用8%,本设计最高日供水量为30万。本设计采用的是岸边式合建式取水构筑物,泵房为矩形控制室及配电室在一端,水泵机组为单排顺列式。这种布置有以下优点:①泵站跨度小。②进出水管顺直,水力条件好,节省水头损失和节省电费。③泵轴线呈一直线,起吊安装维修方便,起吊设备易于选择。为了保证机组维修方便,以及保证正常通道,本设计取机组间距2.4m。
温馨提示:
1、题目前面的备注【字母数字编号】为本站整理分类的编号,与课题内容无关,请选题时忽视;
2、若题目上备注三维,则表示文件里包含三维源文件,由于三维组成零件数量较多,为保证预览截图的简洁性,本站将三维文件夹进行了打包。三维及CAD预览截图,均为本站电脑打开软件进行截图的,保证能够打开,下载原件超高清,下载后解压即可;
3、本站所有资源如无特殊说明,都需要本地电脑安装Office2007。图纸软件为AutoCAD,PROE,UG,SolidWorks,CATIA等;
4、本站所有图文资料仅供用户学习参考,不作为任何商用或其他用途;
5、本站不保证下载资源的准确性、安全性和完整性, 不包修改,不支持退换,同时也不承担用户因使用这些下载资源对自己和他人造成任何形式的伤害或损失;
6、 下载文件中如有侵权或不适当内容,请与我们联系,我们立即纠正。