

作品包括:
Word版设计说明书1份,共37页,约16000字
任务书一份
开题报告一份
外文翻译一份
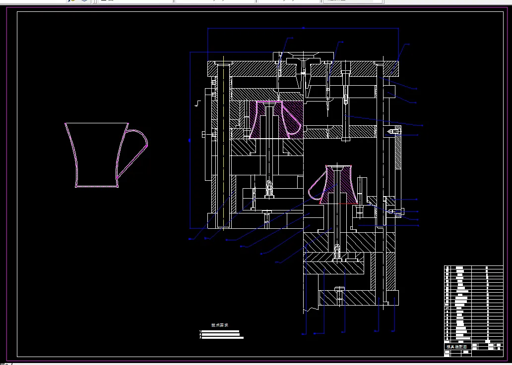
CAD版本图纸,共7张
![1732155129316422.webp })TE1%})~]FA4}EE3I4AAZC.webp](/static/upload/image/20241121/1732155129316422.webp)
摘要
本设计主要是关于塑料水杯的工艺设计,所用的原料是具有防弹玻璃胶之称的聚碳酸酯(PC)塑料,采用的工艺是应用最为广泛的注塑成型工艺。PC塑料有较高的强度和耐疲劳性,其最突出的特点是较好的透明性,由于这种特性,所制得的制品十分美观,故越来越多的塑料水杯厂家选择以此作为原料。除此之外,它还有很好的耐紫外线辐射及其尺寸稳定性,以及良好的成型加工性,这些特性使PC塑料与其他材质相比,有着明显的优势,成为了制作塑料水杯的优质材料。该设计主要包括产品设计的原料选择、成型工艺及流程、物料和热量衡算、设备的选择、工程经济概算、车间管理和生产组织的确定等六个章节,详细介绍了注塑工艺流程的相关知识。
关键词:塑料,水杯,注塑成型,聚碳酸酯,工艺设计
目 录
前 言 1
第1章 塑料与PC塑料 2
1.1 塑料 2
1.1.1 塑料的主要组成成分 2
1.1.2 塑料的基本特性 2
1.1.3 塑料的分类 2
1.2 PC塑料 3
1.2.1 PC塑料的优点 3
1.2.2 PC塑料的特性 4
1.3 材料的确定 4
第2章 注塑工艺及其工艺流程 6
2.1 注塑工艺 6
2.1.1 注塑成型的发展历程 6
2.1.2 注塑成型的发展趋势 6
2.1.3 注塑工艺参数 7
2.2 生产工艺流程的确定 7
2.2.1 成型前准备 8
2.2.2 注塑过程 8
2.2.3 制件的后处理 9
2.3 废料的后处理 9
第3章 物料衡算与热量衡算 11
3.1 物料衡算 11
3.2 热量衡算 12
3.2.1 热量衡算的意义 12
3.2.2 热量衡算的方法 12
第4章 设备简介及其选取 14
4.1 注塑机的结构 14
4.2 注塑机的分类 14
4.3 注塑机的选取 15
第5章 车间管理与生产组织 18
5.1 车间管理 18
5.1.1 管理项目 18
5.1.2 管理职能 19
5.2 生产管理 19
5.2.1 生产的组织形式 19
5.2.2 工作人员的确定 20
第6章 工程经济概算 21
6.1 编制概算的意义 21
6.2 编制原则 21
6.3 编制和修正 21
结 论 25
谢 辞 26
参考文献 27
外文资料翻译28
温馨提示:
1、题目前面的备注【字母数字编号】为本站整理分类的编号,与课题内容无关,请选题时忽视;
2、若题目上备注三维,则表示文件里包含三维源文件,由于三维组成零件数量较多,为保证预览截图的简洁性,本站将三维文件夹进行了打包。三维及CAD预览截图,均为本站电脑打开软件进行截图的,保证能够打开,下载原件超高清,下载后解压即可;
3、本站所有资源如无特殊说明,都需要本地电脑安装Office2007。图纸软件为AutoCAD,PROE,UG,SolidWorks,CATIA等;
4、本站所有图文资料仅供用户学习参考,不作为任何商用或其他用途;
5、本站不保证下载资源的准确性、安全性和完整性, 不包修改,不支持退换,同时也不承担用户因使用这些下载资源对自己和他人造成任何形式的伤害或损失;
6、 下载文件中如有侵权或不适当内容,请与我们联系,我们立即纠正。