

作品包括:
Word版设计说明书1份
CAD版本图纸,共3张
摘要
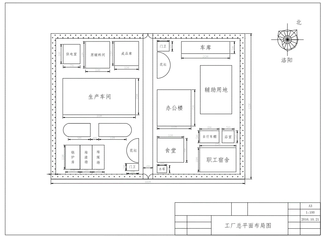
设计是在了解锦州地区地形、地貌、综合降雨量、降雪量,风向以及地形地质状况在综合生产作业量的条件下,进行的一次综合性常规计量站加热系统的工艺设计。设计主要由文字说明,数据计算,图纸绘制,专题研究和外文翻译五大部分组成。说明部分包括计算原始数据材料及人员编制等。数据计算是指根据当地地理资料和来油相关数据进行基础设计计算,其中包括计算计量站的库容,缓冲罐和计量罐的个数大小,输油设施等;然后进行热力计算,计算外输加热炉热负荷;再则进行水力计算,选择泵型号及其校核,最后进行辅助计算。绘图部分包括总平面图布置图,工艺流程图,外输泵房平面安装图。专题研究和外文翻译内容均属高粘原油降粘范畴。此外,还有对锦州计量站加热系统的概述和其应采用的安全措施作了详细介绍。绘图部分是设计的关键,设计的思想意图,内容通过图来体现,对锦州计量站加热系统的总图布置最大限度满足生产要求,缩短工艺管线和运输路线,减少占地,节约投资,在保证安全作业,节约管理费用等原则下进行的;流程图简单合理;外输泵房安装图尺寸严格按照设计规范进行设计,准确体现了外输泵房的尺寸和安装要求。依据计算和各种规范以及经济因素,在最大限度满足生产要求的条件下,进行了较为经济合理的布局,并为该计量站加热系统的改建和发展留有余地 。
温馨提示:
1、题目前面的备注【字母数字编号】为本站整理分类的编号,与课题内容无关,请选题时忽视;
2、若题目上备注三维,则表示文件里包含三维源文件,由于三维组成零件数量较多,为保证预览截图的简洁性,本站将三维文件夹进行了打包。三维及CAD预览截图,均为本站电脑打开软件进行截图的,保证能够打开,下载原件超高清,下载后解压即可;
3、本站所有资源如无特殊说明,都需要本地电脑安装Office2007。图纸软件为AutoCAD,PROE,UG,SolidWorks,CATIA等;
4、本站所有图文资料仅供用户学习参考,不作为任何商用或其他用途;
5、本站不保证下载资源的准确性、安全性和完整性, 不包修改,不支持退换,同时也不承担用户因使用这些下载资源对自己和他人造成任何形式的伤害或损失;
6、 下载文件中如有侵权或不适当内容,请与我们联系,我们立即纠正。