

作品包括:
Word版说明书1份,共56页,约19000字
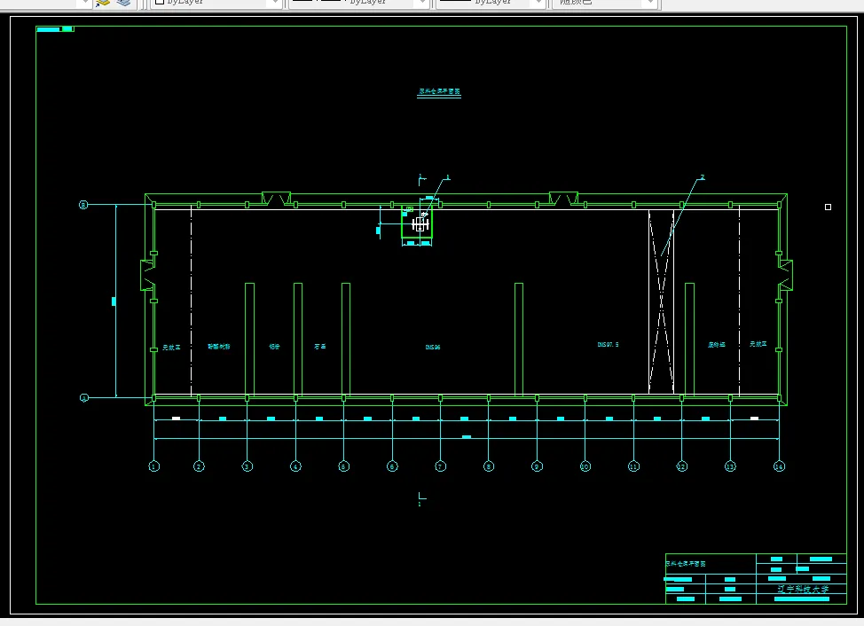
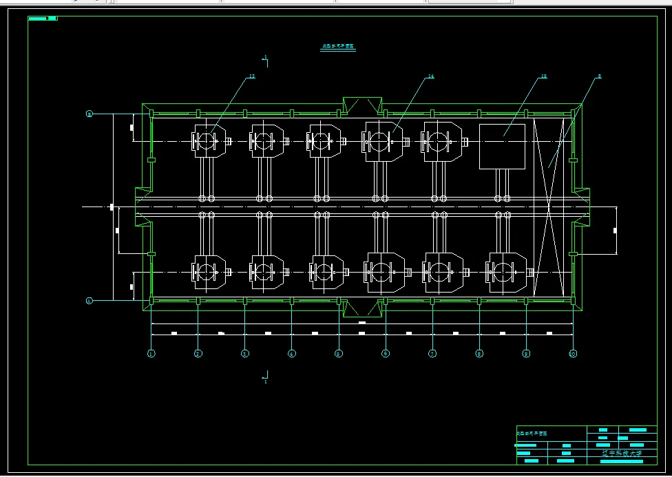
CAD版本图纸,共12张
摘 要
我国是钢铁生产大国,也是耐火材料需求大国。全国仅冶金企业年耗耐火材料价值就达300多亿元,可见耐火行业在钢铁行业的发展中起着举足轻重的地位。由于具有独特的性能,例如热导率高、热膨胀低、抗热震性能好、与渣接触化学活性小,因而镁碳质耐火材料被广泛应用于转炉、电炉、钢包等领域。本设计是对年产40000吨转炉镁碳砖生产车间MT-14B和MT-18C产品的设计,本设计在叙述镁碳砖的发展历史、应用、使用条件、损毁机理及生产工艺流程的基础上,详细论述了镁碳砖生产的工艺理论基础,并对各工序的设备选择和工艺布置进行了论证。对各工序所需处理的物料量和机械设备进行了平衡计算以及对设备合理的选择。本设计的主要特点是布局合理,工艺流畅并考虑扩大生产的需要,对废砖坯进行回收处理利用,降低成本。
关键词:镁碳砖;生产工艺;车间设计
目 录
摘要 I
Abstract II
1 绪论 1
1.1 镁碳砖的发展历史及其应用 1
1.1.1 镁碳砖的发展历史 1
1.1.2 镁碳砖的应用 1
1.2 镁碳砖的分类、性能及其损毁机理 4
1.2.1 镁碳砖的分类 4
1.2.2 镁碳砖的性能 6
1.2.3 镁碳砖的损毁机理 7
1.3 镁碳砖的现状及发展前景 8
1.3.1 镁碳砖的现状 8
1.3.2 镁碳砖的发展前景 8
2 工艺部分 9
2.1 生产工艺要点 9
2.1.1 原料选择 10
2.1.2 破粉碎 13
2.1.3 筛分 13
2.1.4 物料的贮存 13
2.1.5 配料 14
2.1.6 混练 14
2.1.7 成型 15
2.1.8 干燥 15
2.1.9 检选 15
2.1.10 成品仓库 16
2.2 工艺流程 16
2.2.1 工艺流程简述 16
2.2.2 工艺流程论证 17
2.3 工艺参数 18
2.4 物料平衡计算 19
2.5 生产设备 25
2.6 仓库设施 26
3 生产技术检查系统说明 29
3.1 检查内容 29
3.2 检查方法 29
3.3 检查制度 30
4 车间安装、检修与维护措施 31
5 生产车间除尘及安全措施 32
6 本设计的主要特点 33
致谢 34
参考文献 35
附录 36
一、MT-14B转炉镁碳砖15000吨/年 36
二、MT-18C转炉镁碳砖25000吨/年 40
三、原料仓库的选择计算 43
四、破粉碎混合设备的选择计算 45
五、成型设备选择计算 48
六、干燥工段的计算 49
七、成品仓库的计算 51
八、镁碳砖各工段处理量总计 51
温馨提示:
1、题目前面的备注【字母数字编号】为本站整理分类的编号,与课题内容无关,请选题时忽视;
2、若题目上备注三维,则表示文件里包含三维源文件,由于三维组成零件数量较多,为保证预览截图的简洁性,本站将三维文件夹进行了打包。三维及CAD预览截图,均为本站电脑打开软件进行截图的,保证能够打开,下载原件超高清,下载后解压即可;
3、本站所有资源如无特殊说明,都需要本地电脑安装Office2007。图纸软件为AutoCAD,PROE,UG,SolidWorks,CATIA等;
4、本站所有图文资料仅供用户学习参考,不作为任何商用或其他用途;
5、本站不保证下载资源的准确性、安全性和完整性, 不包修改,不支持退换,同时也不承担用户因使用这些下载资源对自己和他人造成任何形式的伤害或损失;
6、 下载文件中如有侵权或不适当内容,请与我们联系,我们立即纠正。