

作品包括:
Word版说明书1份,共67页,约20000字
CAD版本图纸,共4张
摘 要
本次设计对3000万吨级专用煤炭的设计,码头位于青岛港黄岛港区,用于煤炭出口。港区位于山东半岛南岸的胶州湾内,是太平洋西海岸重要的国际贸易口岸和海上运输枢纽。港内水域宽且深,四季通航,港湾口小腹大,港区自然条件优越,水域不冻、海上航线发达,是我国著名的优良港。
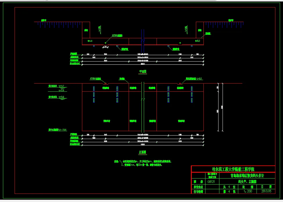
港口总平面设计,包括码头岸线长度、水域尺度、堆场布置等的确定,以及生产辅助区和生活办公区的规模确定。对码头平面布置进行方案比选,根据经济和可行性原则,最后选用方案一。根据货物特性进行码头装卸工艺布置。
码头水工结构设计,根据设计资料和施工技术条件,确定为重力式沉箱结构型式。初步确定沉箱的尺寸和沉箱内前后格仓的填石高度,进行结构优化,最后确定结构的基本尺寸。对码头进行抗倾、抗滑稳定性验算和基床承载力验算。
对码头的主体结构即水工建筑物部分进行投资估算。
关键词:青岛港;平面设计;结构设计;沉箱结构;
目 录
摘 要 Ⅰ
ABSTRACT Ⅱ
第1章 绪论 1
1.1概述 1
1.2 设计背景 1
1.3 设计要求 2
1.4 目的及意义 2
1.5 设计思路和设计成果 2
1.5.1 设计方法 2
1.5.2 设计成果 2
第2章 自然条件 3
2.1 地理位置 3
2.2 水文气象 3
2.2.1 潮汐 3
2.2.2 气温 3
2.2.3 降雨 3
2.2.4 雾况 4
2.2.5 风况 4
2.2.6 波浪 4
2.3 地址条件 5
2.3.1 地形特征 5
2.3.2 地貌特征 5
2.3.3 土层 5
2.3.4 地基承载力 5
2.3.5 土体液化特性 6
2.3.6 工区场地特征 6
2.4 吞吐量资料 6
2.5 设计船型 6
本章小结 7
第3章 总平面设计 8
3.1 总平面布置原则 8
3.2 码头高程确定 8
3.2.1 码头设计水位 8
3.2.2 码头前沿设计高程 8
3.2.3 码头面标高 9
3.2.4 设计水位差 9
3.2.5 航道通航水深 9
3.2.6 进港航道宽度 9
3.3 泊位数计算 10
3.3.1 泊位数的确定 10
3.4 泊位长度和码头长度 11
3.4.1 码头泊位长度计算: 11
3.4.2 码头前沿线长度的确定: 12
3.5 码头前沿停泊水域和船舶回旋水域布置 12
3.5.1 码头前沿停泊水域 12
3.5.2 回旋水域 12
3.6 锚地布置 12
3.7 堆场面积计算 13
3.7.1 堆场所需容量计算 13
3.7.2 堆场所需面积计算 13
3.8 码头总平面布置 14
3.9 装卸工艺 15
3.9.1 设计原则 15
3.9.2 设计主要参数 15
3.9.3 装卸工艺方案的确定 15
3.9.4 装卸工艺流程图 16
3.10 机械设备的选型和配置 16
本章小结 17
第4章 码头结构方案比选 18
4.1 码头结构形式选择原则 18
4.2 结构安全等级 18
4.3 码头结构形式 18
4.3.1 重力式码头 18
4.3.2 高桩式码头 18
4.3.3 板桩式码头 19
4.3.4 斜坡码头和浮码头 19
4.4 方案选定 19
4.4.1 重力式码头的结构组成部分 19
4.4.2 重力式码头结构分类 21
4.4.3 结构比选 22
4.5 沉箱尺寸 23
本章小结 24
第5章 水工建筑物设计 25
5.1 设计依据 25
5.1.1 结构安全等级 25
5.1.2 自然条件 25
5.2 作用分析 25
5.2.1 永久作用 25
5.2.2 可变作用 33
5.2.3 码头荷载标准值汇总 36
5.3 码头稳定性验算 36
5.3.2 码头基床顶面抗滑稳定性验算 37
5.3.3 码头抗倾稳定性验算 39
5.3.4 基床承载力验算 41
本章小结 42
第6章 工程概算 43
6.1 工程概况 43
6.2 概算依据 43
6.3 工程概算 43
6.3.1 人工及材料单价 43
6.3.2 工程各项费用费率 44
6.3.3 码头工程概算 45
本章小结 49
结 论 50
参考文献 52
攻读学士学位期间发表的论文和取得的科研成果 54
致 谢 55
温馨提示:
1、题目前面的备注【字母数字编号】为本站整理分类的编号,与课题内容无关,请选题时忽视;
2、若题目上备注三维,则表示文件里包含三维源文件,由于三维组成零件数量较多,为保证预览截图的简洁性,本站将三维文件夹进行了打包。三维及CAD预览截图,均为本站电脑打开软件进行截图的,保证能够打开,下载原件超高清,下载后解压即可;
3、本站所有资源如无特殊说明,都需要本地电脑安装Office2007。图纸软件为AutoCAD,PROE,UG,SolidWorks,CATIA等;
4、本站所有图文资料仅供用户学习参考,不作为任何商用或其他用途;
5、本站不保证下载资源的准确性、安全性和完整性, 不包修改,不支持退换,同时也不承担用户因使用这些下载资源对自己和他人造成任何形式的伤害或损失;
6、 下载文件中如有侵权或不适当内容,请与我们联系,我们立即纠正。