

作品包括:
Word版说明书1份,共88页,约25000字
CAD版本图纸,共4张
摘 要
由于对国外施工技术的引进,以及国内外各设计、施工单位的竟争,天津新港的码头结构型式也作了一些新的尝试,目前摆在使用、设计、科研、施工各单位面前的首要任务是如何选择码头结构型式的最佳方案——工程质量好,使用维修方便,建设速度快,投资省,经济效益好。
天津港某多用途码头结构方案初步设计主要以码头主要尺度确定、结构选型、码头主要结构和构件的设计、码头的施工组织设计和码头方案比选等为主要内容。根据参考资料和当地的环境初步选定两种合适结构,分别为重力式实心方块和重力式沉箱结构。
本论文侧重于对重力式码头结构计算,对选定的两种结构方案进行设计。还分别验算码头结构的抗滑、抗倾覆稳定性。对两种码头方案的施工工艺进行了论述与分析,并且找出重力式码头施工中的常见问题,并结合所学知识提出有效合理的预防措施。
结构选型及方案比选:在对地质资料分析的基础上,通过计算,列出了各方案在使用、施工、维修等方面的优缺点,对拟定2个可行性的方案合理比较,并进行全面的技术经济论证,择优选用了沉箱码头结构。
关键词:方块码头;沉箱码头;施工
目录
第1章绪论 1
1.1 天津港口概述 1
1.2 本文主要设计内容 1
第2章码头结构方案设计 2
2.1 设计依据 2
2.2 设计基础资料 2
2.2.1 设计船型 2
2.2.2 水文及气象资料 3
2.2.3 地质条件 3
2.2.4 地震 3
2.2.5 施工条件 4
2.2.6 结构安全等级 4
2.3 码头结构选型 4
2.3.1 方块码头断面结构方案 4
2.3.2 沉箱码头断面结构方案 5
2.4 装卸工艺 6
2.4.1 一般要求 6
2.4.2 多用途码头的装卸工艺选择 6
2.5 码头设备 7
2.5.1 系船设备布置 7
2.5.2 缓冲设备 7
2.6 码头结构方案设计 8
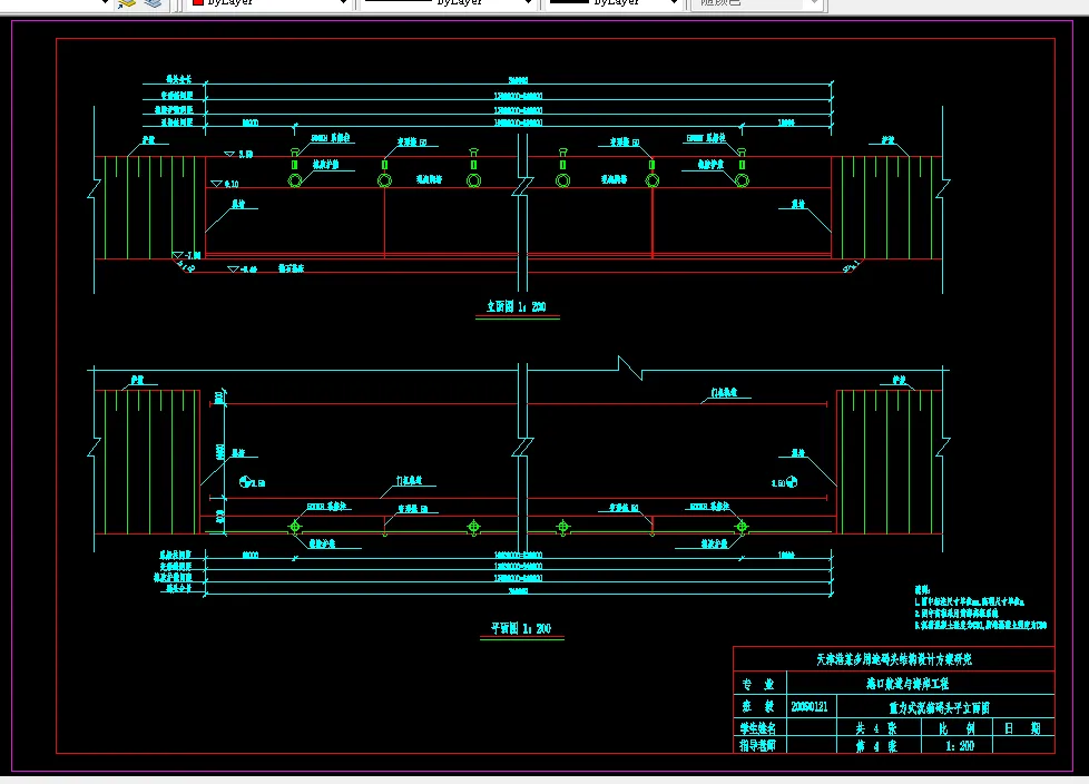
2.6.1 码头平面设计 8
2.6.2 码头立面设计 8
2.6.3 码头断面设计 10
2.7 本章小结 11
第3章重力式实心方块码头结构计算 12
3.1 计算内容 12
3.2 计算资料 12
3.2.1 自然条件 13
3.2.2 结构安全等级 13
3.2.3 码头面荷载 13
3.2.4 材料重度和内摩擦角标准值 14
3.3 作用分类及计算 15
3.3.1 结构自重力(永久作用) 15
3.3.2 波浪力(可变作用) 17
3.3.3 土压力标准值计算 17
3.3.4 船舶系缆力 25
3.3.5 堆货荷载 28
3.3.6 门机荷载计算 30
3.3.7 地震时主动土压力计算 31
3.4 码头稳定性验算 31
3.4.1 作用效应组合 31
3.4.2 承载能力极限状态设计表达式 32
3.4.3 对墙底面和墙身计算面前趾的倾覆稳定性验算 33
3.4.4 基底应力和地基应力验算 33
3.5 本章小结 47
第4章沉箱码头结构计算 48
4.1 计算内容 48
4.2 计算资料 48
4.3 作用分类及计算 48
4.3.1 结构自重力 49
4.3.2 波浪力(可变作用) 54
4.3.3 土压力标准值计算 55
4.3.4 堆货荷载产生的土压力(可变作用): 55
4.3.5 码头前沿堆货引起的竖向作用(可变作用) 56
4.3.6 船舶系缆力 56
4.3.7 门机荷载产生的土压力计算(可变作用) 58
4.3.8 贮仓压力(永久作用) 60
4.3.9 地震时主动土压力计算 60
4.4 码头稳定性验算 60
4.4.1 作用效应组合 61
4.4.2 码头沿基床顶面的抗滑稳定性验算 61
4.4.3 码头沿基床顶面的抗倾稳定性验算 63
4.4.4 基床承载力验算 65
4.4.5 地基承载力的验算 67
4.5 本章小结 67
第5章码头结构的施工组织及相关问题 68
5.1 施工组织及方案 68
5.1.1 实心方块码头施工方案 68
5.1.2 沉箱码头施工方案及施工内容 70
5.2 港口重力式码头结构施工中问题及对策 71
5.2.1 重力式码头科学施工对策 71
5.3 本章小结 72
第6章码头结构型式比选 73
6.1 码头结构方案 73
6.2 施工条件 73
6.3 结构比选 73
6.3.1 沉箱码头 73
6.3.2 实体方块码头 74
6.4 结构选择 74
6.5 本章小结 74
结论 75
参考文献 76
致谢 78
温馨提示:
1、题目前面的备注【字母数字编号】为本站整理分类的编号,与课题内容无关,请选题时忽视;
2、若题目上备注三维,则表示文件里包含三维源文件,由于三维组成零件数量较多,为保证预览截图的简洁性,本站将三维文件夹进行了打包。三维及CAD预览截图,均为本站电脑打开软件进行截图的,保证能够打开,下载原件超高清,下载后解压即可;
3、本站所有资源如无特殊说明,都需要本地电脑安装Office2007。图纸软件为AutoCAD,PROE,UG,SolidWorks,CATIA等;
4、本站所有图文资料仅供用户学习参考,不作为任何商用或其他用途;
5、本站不保证下载资源的准确性、安全性和完整性, 不包修改,不支持退换,同时也不承担用户因使用这些下载资源对自己和他人造成任何形式的伤害或损失;
6、 下载文件中如有侵权或不适当内容,请与我们联系,我们立即纠正。