

作品包括:
Word版说明书1份,共38页,约18000字
CAD版本图纸,共6张
摘 要
自来水是通过净化、消毒等一系列工艺后生产出来的符合国家标准的供人们生活、生产使用的水。它主要通过水厂的取水泵站汲取江河湖泊及地下水,地表水。并经过沉淀、消毒、过滤等工艺流程,最后通过配水泵站输送到各个用户。
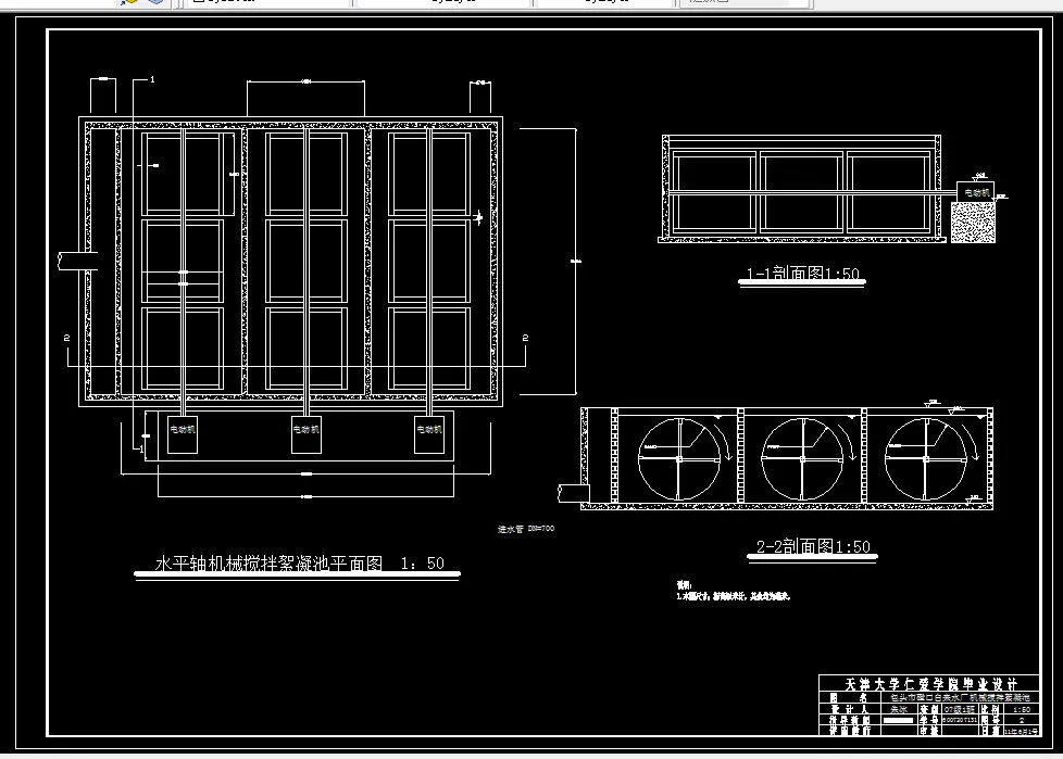
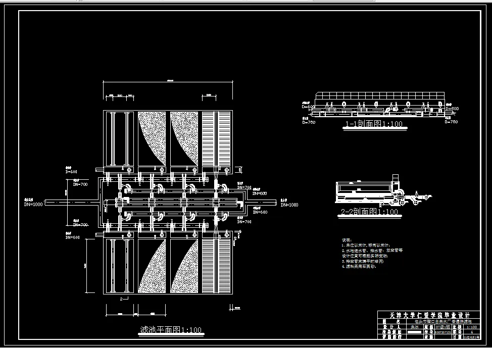
此次毕设的题目是《包头市磴口自来水厂设计》。首先,根据源水的各项指标,自然条件,水文条件等查阅资料,通过比较当前的自来水处理工艺确定了一套完整的工艺。本次设计采用的工艺流程为:水平轴机械搅拌絮凝池—斜管沉淀池—普通快滤池—消毒。所选工艺成熟,处理效果较好,能满足设计要求。对净水系统、主要构筑物尺寸以及高程做了计算。最后结合计算数据,绘制各单元构筑物的工艺图,平面布置图,高程布置图等相关图纸。
关键词:自来水;混凝;过滤;消毒
目 录
第一章 概论•••••••••••••••••••••••••••••••••••••••••••••••1
1.1 设计依据及设计范围••••••••••••••••••••••••••••••••••••••••1
1.2 自然状况及水源选择••••••••••••••••••••••••••••••••••••••••2
第二章 水质、水量、水压•••••••••••••••••••••••••••••••••••5
2.1 水质••••••••••••••••••••••••••••••••••••••••••••••••••••••••••••••5
2.2 水量、水压•••••••••••••••••••••••••••••••••••••••••••••••••••••5
第三章 水处理厂的工艺设计••••••••••••••••••••••••••••••••6
3.1 厂址的位置•••••••••••••••••••••••••••••••••••••••••••••••••••••6
3.2 设计原则••••••••••••••••••••••••••••••••••••••••••••••••••••••••6
3.3 处理流程方案的选定•••••••••••••••••••••••••••••••••••••••••6
3.4 水厂平面布置及高程布置•••••••••••••••••••••••••••••••••••8
3.5 构筑物计••••••••••••••••••••••••••••••••••••••••••••••••••••••••13
第四章 安全措施及人员编制•••••••••••••••••••••••••••••21
4.1 安全措施••••••••••••••••••••••••••••••••••••••••••••••••••••••••21
4.2 人员编制•••••••••••••••••••••••••••••••••••••••••••••••••••21
第五章 各构筑物的设计计算•••••••••••••••••••••••••••••22
5.1 设计水量计算•••••••••••••••••••••••••••••••••••••••••••••••••••22
5.2 加药设计计算•••••••••••••••••••••••••••••••••••••••••••••••••••22
5.3 混合设备设计计算•••••••••••••••••••••••••••••••••••••••••••••23
5.4 机械搅拌絮凝池设计计算••••••••••••••••••••••••••••••••••••23
5.5 斜管沉淀池设计计算••••••••••••••••••••••••••••••••••••••••••26
5.6普通快滤池滤池设计计算••••••••••••••••••••••••••••••••••••••29
5.7 消毒设计设计计算•••••••••••••••••••••••••••••••••••••••••••••33
5.8 清水池设计计算••••••••••••••••••••••••••••••••••••••••••••••••34
5.9 二泵站及吸水井的设计计算•••••••••••••••••••••••••••••••••36
参考文献••••••••••••••••••••••••••••••••••••••••••••••••••••••••••••••••••38
外文资料
中文资料
致谢
温馨提示:
1、题目前面的备注【字母数字编号】为本站整理分类的编号,与课题内容无关,请选题时忽视;
2、若题目上备注三维,则表示文件里包含三维源文件,由于三维组成零件数量较多,为保证预览截图的简洁性,本站将三维文件夹进行了打包。三维及CAD预览截图,均为本站电脑打开软件进行截图的,保证能够打开,下载原件超高清,下载后解压即可;
3、本站所有资源如无特殊说明,都需要本地电脑安装Office2007。图纸软件为AutoCAD,PROE,UG,SolidWorks,CATIA等;
4、本站所有图文资料仅供用户学习参考,不作为任何商用或其他用途;
5、本站不保证下载资源的准确性、安全性和完整性, 不包修改,不支持退换,同时也不承担用户因使用这些下载资源对自己和他人造成任何形式的伤害或损失;
6、 下载文件中如有侵权或不适当内容,请与我们联系,我们立即纠正。