

作品包括:
Word版说明书1份,共31页,约12000字
CAD版本图纸,共8张
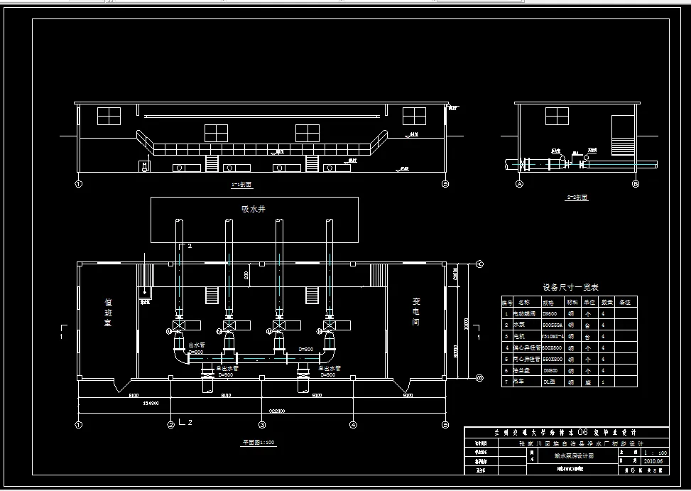
摘要:张家川回族自治县,位于甘肃东南部,属黄河中上游黄土梁峁沟区。当地政府为了发展经济和解决人民用水问题,决定新建一座净水厂。近期日产水量为2.0万m3/d,远期水量增加一倍。该给水厂的水源为地表水,取自该区北川河水,水质良好,大部分符合《生活饮用水卫生标准》(GB5749-2006)的要求,由于处于黄河中上游泥沙较大,净水工艺重点需要处理水的浊度、细菌的灭活和消毒处理。且水源污染较轻,不需要深度处理,则该水厂的处理工艺流程为常规处理。其工艺流程如下:北川水→混合设备→絮凝设备→沉淀池→滤池→清水池→吸水井→二级泵站→配水管网。
目录
摘要 1
关键词 1
Abstract 1
Key words 1
1环境工程毕业设计任务书 1
1.1毕业设计原始材料 1
1.1.1毕业设计原始资料 1
1.1.1.1概述 2
1.1.1.2水源资料 2
1.1.1.3水 质 资 料 3
1.1.1.4净水处理所用资料 3
1.1.2毕业设计内容 4
1.1.3毕业设计应交出的文件 4
2方案论证 4
2.1原水水质与标准对比 4
2.2处理流程选择及说明 5
2.2.1具体处理设备选择 5
2.2.1.1混合设备 5
2.2.1.2絮凝设备 6
2.2.1.3沉淀池 7
2.2.1.4滤池 7
2.2.1.5消毒系统 7
2.2.2设计流程图例 8
3取水工程 8
3.1取水设计 8
3.2原水水质分析 8
3.2.1水源选取 9
3.2.2水源选取原则 9
3.2.3水源选取设计依据 9
3.3取水构筑物 9
3.3.1集水间 9
3.3.1.1集水间设计 9
3.4取水泵站 10
3.4.1取水泵站设计 10
3.4.1.1设计扬程 10
3.4.1.2选泵 10
3.5泵房设计 11
3.5.1泵房布置 11
3.5.2起重设备的选择与布置 11
3.5.3泵房高度 11
4水处理构筑物 11
4.1格栅和格网的计算与选取 11
4.1.1格栅 11
4.1.2格网 12
4.2混合设备的设计与计算 13
4.2.1溶液池容积计算 13
4.2.2溶解池容积 14
4.2.3投药管设计 14
4.2.4混合设备 14
4.3往复式隔板絮凝池的设计 15
4.3.1设计水量 15
4.3.2折板絮凝池设计计算 15
4.3.2.1设计参数 15
4.3.2.2单池平面净尺寸 15
4.3.2.3廊段宽度和流速 15
4.3.2.4水流转弯次数 16
4.3.2.5池长复核 16
4.3.2.6水头损失的计算 16
4.3.2.7GT值计算 17
4.4上向流斜管沉淀池 17
4.4.1设计参数 17
4.4.2沉淀池池宽和总高度 18
4.4.3雷诺数 18
4.4.4集水系统设计 18
4.4.4.1设计参数 18
4.4.5排泥 19
4.5普通快滤池 19
4.5.1设计参数 19
4.5.2滤池面积与计算 20
4.5.3滤池高度 20
4.5.4配水系统 20
4.5.4.1配水干管 20
4.5.4.2配水支管 20
4.5.4.3支管孔眼 21
4.5.5孔口平均水头损失 21
4.5.6配水系统校核 21
4.5.7洗砂排水槽 22
4.5.8冲洗水箱 23
4.6消毒 23
4.6.1加药量的确定 24
4.6.2加氯间布置与计算 24
4.6.3氯库计算与布置 24
4.7清水池 24
4.7.1设计说明 24
4.7.2设计计算 25
4.7.2.1有效容积 25
4.7.2.2进水管管径计算 25
4.7.2.3出水管管径计算 25
4.7.2.4溢流管 25
4.7.2.5排水管 25
5结论 26
参考文献 26
致谢 27
温馨提示:
1、题目前面的备注【字母数字编号】为本站整理分类的编号,与课题内容无关,请选题时忽视;
2、若题目上备注三维,则表示文件里包含三维源文件,由于三维组成零件数量较多,为保证预览截图的简洁性,本站将三维文件夹进行了打包。三维及CAD预览截图,均为本站电脑打开软件进行截图的,保证能够打开,下载原件超高清,下载后解压即可;
3、本站所有资源如无特殊说明,都需要本地电脑安装Office2007。图纸软件为AutoCAD,PROE,UG,SolidWorks,CATIA等;
4、本站所有图文资料仅供用户学习参考,不作为任何商用或其他用途;
5、本站不保证下载资源的准确性、安全性和完整性, 不包修改,不支持退换,同时也不承担用户因使用这些下载资源对自己和他人造成任何形式的伤害或损失;
6、 下载文件中如有侵权或不适当内容,请与我们联系,我们立即纠正。