

作品包括:
Word版说明书1份,共48页,约19000字
CAD版本图纸,共5张
设计总说明
随着国民经济的快速发展,我国的印染业也进入了高速发展期,设备和技术水平明显提升,生产工艺和设备不断更新换代,印染企业尤其是民营印染企业发展十分迅速。但是,印染行业生产过程中排放的“三废”,尤其是废水治理不当将会对环境造成严重污染,废水排放量大,废水中的污染物为有机好氧物质、色度、碱及硫化物等,对水体自然景观产生严重的损害。设计的原则是通过废水综合治理工程的建设达到保护环境、保护水资源、改善投资环境及旅游环境、保持企业可持续发展的目的。采取近远期结合的方针,充分发挥建设项目的社会效益、环境效益和经济效益。选择先进、技术经济合理的处理工艺技术,为工程方案的尽早实施,为废水处理厂的建设和运行创造良好的条件。
对于印染废水的处理工艺,要求在高效节能,简便易行和经济效益等各方面进行考虑,各种处理方法进行比较,最终选择先通过混凝沉淀反应去除大量的悬浮物和色度;然后进入接触氧化池,经过充足的曝气,由好氧微生物降废水中的有机物降解至既定的浓度。再经过二沉池可确保达到排放标准。
本毕业设计主要是用混凝沉淀和生物接触氧化法来处理排放出来的印染废水,该废水的处理条件是设计日排放量为3000m3/d。
关键词:印染废水,混凝沉淀,生物接触氧化法
目录
1.绪论 1
1.1 设计背景 1
1.2 印染废水的特点 1
1.3 印染废水的来源及各类纺织印染废水的特征 1
1.4 印染废水治理的研究现状及动态 2
2 设计规模与水质 4
2.1处理的废水量 4
2.2 废水水质 4
2.3 出水要求 4
2.4 设计依据、原则 4
2.4.1 设计依据 4
2.4.2 设计原则 5
3 工艺流程选择与说明 6
3.1 工艺选择 6
3.1.1水解酸化+好氧生化工艺试验流程的确定 6
3.1.2水解酸化工艺机理 7
3.1.3好氧工艺机理 8
3.2 工艺流程图 11
3.3 工艺流程说明 11
3.4 工艺可行性 13
3.5 废水在各工序的水质及预期的去除率 13
3.6 工艺特点 14
4 工艺设计计算 15
4.1 格栅 15
4.1.1 格栅的间隙数量n 15
4.1.2 格栅的建筑宽度. 16
4.1.3 栅后槽的总高度h总 16
4.1.4 格栅的总建筑长度L. 17
4.1.5 每日要栅渣量w 17
4.2 调节池 17
4.2.1 调节池有效容积. 17
4.2.2 调节池尺寸. 18
4.2.3 空气管计算. 18
4.2.4 孔眼的计算. 19
4.2.5 管路阻力计算 19
4.3 混凝沉淀池 20
4.3.1 溶药间 20
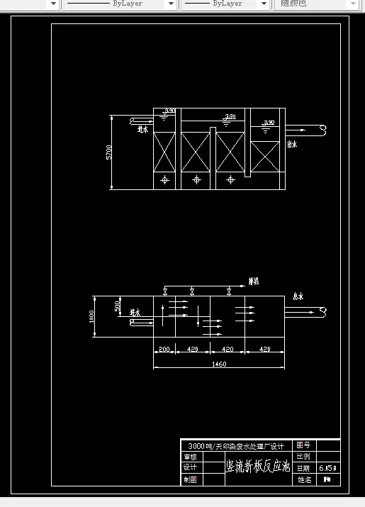
4.3.2 竖流折板反应池 22
4.3.3 管道混合器 23
4.3.4 沉淀淀池 24
4.4 水解酸化池 26
4.5.1 生物接触氧化池的有效容积(即填料体积)V 27
4.5.2 生物接触氧化池的总面积A和座数n 28
4.5.3 池深h 28
4.5.4 有效停留时间t 28
4.5.5 填料 28
4.5.6 进水设施 28
4.5.7 空气管道布置 29
4.6 二沉池 30
4.6.1 中心管过水断面面积f. 31
4.6.2 中心管直径d0 31
4.6.3 缝隙高度h3. 31
4.6.4 沉淀区有效断面积F. 31
4.6.5 沉淀池直径D. 31
4.6.6 沉淀池有效水深h2. 31
4.6.7 污泥斗所需容积W. 32
4.6.8 污泥斗容积V. 32
4.6.9 沉淀池总高H. 32
4.6 次氯酸钠氧化池 33
4.7 污泥浓缩池 33
4.7.1 浓缩池的面积F. 34
4.7.2 池的直径D. 34
4.7.3 污泥斗尺寸 34
4.7.4 浓缩池总高度 34
4.8脱水间 35
4.9 污水提升泵 35
4.10 鼓风机 35
5 污水处理厂总体布置与土建 36
5.1 平面布置 36
5.2 高程布置 36
5.3 土建设计依据原则. 37
5.4 土建工程结构类型设计. 37
6 各构筑物的操作要求 38
6.1调节池的操作要求. 38
6.2 混凝反应池(浓密机)的操作要求. 38
6.3 水解酸化池的操作要求. 39
6.4 接触氧化池的操作要求. 39
6.5 二沉池的操作要求. 40
6.6 污泥处理系统操作要求 40
7 投资概算及运行成本 40
7.1 土建部分 41
7.2 设备部分 41
7.3 其他费用部分 41
结 论 43
参考文献 44
致谢……………………………………………………………………………………..45
附录(高程计算表)
温馨提示:
1、题目前面的备注【字母数字编号】为本站整理分类的编号,与课题内容无关,请选题时忽视;
2、若题目上备注三维,则表示文件里包含三维源文件,由于三维组成零件数量较多,为保证预览截图的简洁性,本站将三维文件夹进行了打包。三维及CAD预览截图,均为本站电脑打开软件进行截图的,保证能够打开,下载原件超高清,下载后解压即可;
3、本站所有资源如无特殊说明,都需要本地电脑安装Office2007。图纸软件为AutoCAD,PROE,UG,SolidWorks,CATIA等;
4、本站所有图文资料仅供用户学习参考,不作为任何商用或其他用途;
5、本站不保证下载资源的准确性、安全性和完整性, 不包修改,不支持退换,同时也不承担用户因使用这些下载资源对自己和他人造成任何形式的伤害或损失;
6、 下载文件中如有侵权或不适当内容,请与我们联系,我们立即纠正。