

作品包括:
Word版说明书1份,共40页,约15000字
CAD版本图纸,共8张
设计总说明
随着城市化速度的加快和生活水平的提高,城市生活污水的排放量也逐年增加。城市生活污水污染物含量主要是有机物,如淀粉、脂肪、蛋白质、纤维素、糖类、矿物油等,其中CODCr、BODs、TKN(凯氏氮)、TN、TP也较高。目前我国城市污水处理普遍采用活性污泥、氧化沟、SBR和AB法等。
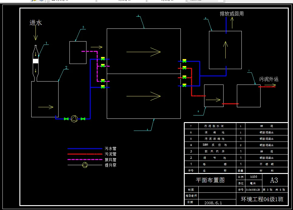
本设计为城郊住宅污水处理工程,具有排放量小,可生化性好,含有相当浓度的N和P,排放上具有间歇性和不稳定性等特点,故选择SBR法处理工艺。SBR法工艺流程简单、造价低,主体设备只有一个序批式间歇反应器,无二沉池、污泥回流系统,初沉池也可省略,布置紧凑、占地面积省,可根据水质、水量情况灵活运行,具有良好的脱氮除磷效果。而生活小区土地面积有限,景观要求高。通过采用SBR法处理郊区生活污水,处理效果好,COD、BOD、SS、TNP和NH3—N去除率分别达到88.75%、87.50%、86.10% 、84.50%和51.70%,且都达到GB8978—1996中一级排放标准。
本设计要求处理水量为2000 m3/d。原水进水水质如下:BOD= 300 mg/L, COD= 400 mg/L, SS= 400 mg/L, pH=6.0~8.0,NH3-N= 90 mg/L,TP= 10 mg/L。要求经过主要处理设备处理后,出水水质参数如下:BOD5≤ 30 mg/L, SS≤ 30 mg/L, COD≤ 100 mg/L, pH=6.0~9.0, NH3-N ≤ 25 mg/L, TP= 3 mg/L。
关键词:SBR,生活污水,水处理
目录
1 绪论 1
1.1 背景 1
1.2 环境条件 1
1.3 城郊污水处理特点 1
1.4 对处理工艺和设备的要求 2
1.5 设计任务 2
2 生活污水的工艺比较与选择 3
2.1 生活污水处理工艺比较 3
2.2 工艺流程的选择 11
3 工艺设计及计算 12
3.1 设计流量、水质与工艺流程 12
3.2 处理工艺流程说明 12
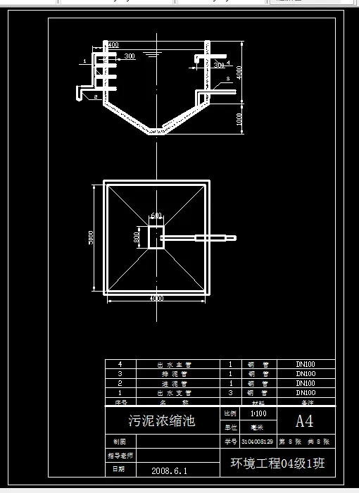
3.3 SBR池设计要点 13
3.4 设计计算部分 18
3.5 阻力计算及设备选择 26
4 主要构筑物及设备一览表 30
4.1 构筑物一览表 30
4.2 主要机械设备一览表 30
5 工程投资概算 31
5.1 设备费用 31
5.2 土建工程 32
5.3 工程总概算 32
5.4 运行费用 32
总 结 34
参考文献 35
致 谢 36
温馨提示:
1、题目前面的备注【字母数字编号】为本站整理分类的编号,与课题内容无关,请选题时忽视;
2、若题目上备注三维,则表示文件里包含三维源文件,由于三维组成零件数量较多,为保证预览截图的简洁性,本站将三维文件夹进行了打包。三维及CAD预览截图,均为本站电脑打开软件进行截图的,保证能够打开,下载原件超高清,下载后解压即可;
3、本站所有资源如无特殊说明,都需要本地电脑安装Office2007。图纸软件为AutoCAD,PROE,UG,SolidWorks,CATIA等;
4、本站所有图文资料仅供用户学习参考,不作为任何商用或其他用途;
5、本站不保证下载资源的准确性、安全性和完整性, 不包修改,不支持退换,同时也不承担用户因使用这些下载资源对自己和他人造成任何形式的伤害或损失;
6、 下载文件中如有侵权或不适当内容,请与我们联系,我们立即纠正。