

作品包括:
Word版说明书1份,共54页,约18000字
CAD版本图纸,共7张
设计说明
近年来,我国的啤酒产业迅速发展,每年啤酒废水的排放量近4×108t,占我国废水排放总量的1% ,每年啤酒废水中向环境排放的COD总量约为45×l04t,约占COD排放总量的3.2%。啤酒生产废水中的主要污染物为糖类、醇类、多种维生索、酵母菌、纤维索、氨基酸、酒糟等有机物,其COD和SS浓度均较高,且各工序排出的废水水质有很大差异,其中以糖化废水浓度最高。虽然无毒,但易于腐败,排入水体要消耗大量的溶解氧,对水体环境造成严重危害。
由于啤酒废水含有大量的有机物,具有很好的可生化性,因而适合以生物处理为主的处理工理工艺。本例采取厌氧+好氧相结合的处理新工艺,将UASB反应器和CASS反应器结合起来对啤酒废水进行处理。UASB反应器是目前应用较为广泛的高速厌氧反应器,适合处理高浓度有机废水,具有构造简单、不易堵塞、耐冲击负荷、便于操作等优点。CASS是在好氧生物处理中常用的活性污泥法SBR工艺的基础上发展起来的,具有运行费用省、运行灵活、管理方便等优点。该工艺非常适合啤酒废水的处理,出水可达到《污水综合排放标准》(GB8978-96)一级排放标准和《水污染物排放限值》(DB 44/26—2001)。
关键词:啤酒废水, 生物处理, UASB, CASS
目 录
1 概 述 1
1.1 项目背景 1
1.2 工程简介 1
1.2.1 废水水量 1
1.2.2 废水特点 1
1.2.3 进出水水质 2
1.3 设计依据 2
1.4 设计思想 3
1.5 设计原则 3
2 污水处理工艺选择及说明 4
2.1 工艺选择 4
2.1.1 主工艺流程的选择 4
2.1.2 厌氧处理工艺的选择 5
2.1.3 好氧处理工艺选择 6
2.1.4 工艺流程图 7
2.2 流程主要构筑物介绍 8
2.2.1格栅 8
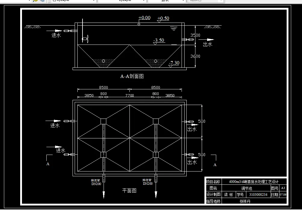
2.2.2调节池 8
2.2.3 UASB反应器 8
2.2.4 CASS反应器 9
2.2.5 污泥浓缩工艺 10
3 构筑物设计计算 11
3.1 格栅 11
3.1.1 设计说明 11
3.1.2 格栅计算 11
3.2 集水井 13
3.2.1 设计说明 13
3.3 细格栅 13
3.3.1设计说明 13
3.3.2细格栅选型 13
3.4 调节池 13
3.4.1 设计说明 13
3.4.2 设计参数 14
3.4.3 污泥斗设计计算 14
3.4.4 选泵计算 15
3.4.5 泵的选型 16
3.5 UASB反应器设计计算 16
3.5.1 反应区设计计算 16
3.5.2 布水器设计计算 19
3.5.3 出水渠设计计算 20
3.5.4 UASB排水管设计计算 21
3.5.5 排泥管设计计算 21
3.5.6 沼气管路系统设计计算 22
3.5.7 UASB的其他设计 24
3.6 配水池 25
3.6.1 设计说明 25
3.6.2 设计参数 25
3.6.3 UASB反应器出水回流泵选型 25
3.6.4 加碱系统 26
3.7 CASS反应池设计计算 26
3.7.1 反应池设计计算 26
3.7.2 计算剩余污泥量 28
3.7.3 计算需氧量 29
3.7.4 CASS反应池布置 30
3.7.5 空气管布置 30
3.8 污泥处理系统 30
3.8.1 污泥浓缩池设计计算 30
3.8.2 浮渣挡板与浮渣井 32
3.8.3 污泥贮池 32
3.8.4 污泥脱水机 32
3.8.5 设备选型 32
4 主要构筑物和附属构筑物 34
4.1主要构筑物一览表 34
4.2 各附属构筑物尺寸 39
5 污水处理厂总体布置 40
5.1总平面布置 40
5.1.1总平面布置原则 40
5.1.2总平面布置结果 40
5.2高程布置 41
5.2.1高程布置原则 41
5.2.2高程布置结果 41
1、高程布置 41
6 投资估算 44
6.1 估算范围 44
6.2 编制依据 44
6.3 估算 44
6.3.1 材料价格 44
6.3.2 投资估算 44
6.3.3 运行费用 45
结论 47
参考文献 48
致 谢 49
温馨提示:
1、题目前面的备注【字母数字编号】为本站整理分类的编号,与课题内容无关,请选题时忽视;
2、若题目上备注三维,则表示文件里包含三维源文件,由于三维组成零件数量较多,为保证预览截图的简洁性,本站将三维文件夹进行了打包。三维及CAD预览截图,均为本站电脑打开软件进行截图的,保证能够打开,下载原件超高清,下载后解压即可;
3、本站所有资源如无特殊说明,都需要本地电脑安装Office2007。图纸软件为AutoCAD,PROE,UG,SolidWorks,CATIA等;
4、本站所有图文资料仅供用户学习参考,不作为任何商用或其他用途;
5、本站不保证下载资源的准确性、安全性和完整性, 不包修改,不支持退换,同时也不承担用户因使用这些下载资源对自己和他人造成任何形式的伤害或损失;
6、 下载文件中如有侵权或不适当内容,请与我们联系,我们立即纠正。