

作品包括:
Word版说明书1份,共43页,约13000字
CAD版本图纸,共3张
设计总说明
通过对烟气进行除尘、脱硫、除氮、脱氟等处理,从而减少废气中粉尘、硫氧化物、氮氧化物和氟化物的含量,以达到排放要求。对于除尘工艺,对设计经济和性能以及效率各方面进行考虑,对多种的除尘器进行比较,最终采用的是袋式除尘器,因为陶瓷废气中的粉尘基本上接近或属于超细粉尘,而袋式除尘器处理微小粒径的粉尘,具有效率高、性能好、操作简单等一系列优点。
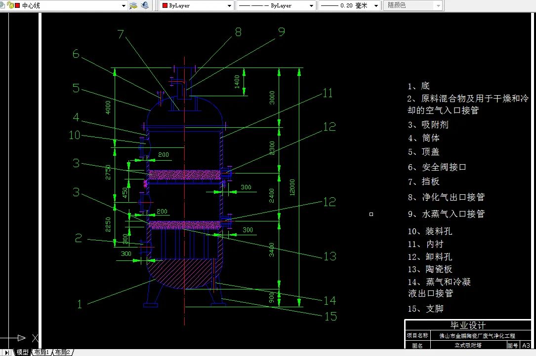
本设计采用活性炭吸附联合除硫脱销,主体设备是类似于吸附塔的活性炭固定床吸附器, 烟气中SO ,在活性炭表面被氧化产生稀硫酸气溶胶,从而被活性炭很好的吸附。向吸附塔中喷氨气,与NO 在活性炭的催化还原作用下生成N ,可实现脱硝的目的。吸附有SO 的活性炭进入吸附器加热再生,再生出的SO 气体可以通过Clause反应回收硫,再生后的活性炭可以反复使用。
氟化物的处理采用XFP系列含氯废气净化装置,采用石灰石和电石渣进行中和多级处理,使氟离子生成氟化钙而沉淀,净化后的废气通过除沫,去掉水分后由烟囱排出。
关键词:烟气除尘,袋式除尘器,活性炭联合除硫脱氮,XFP系列含氯废气净化装置
目 录
1 前言 1
1.1 中国硫、氮污染现状及现有的处理方法分析 1
1.2 氟化物对人体的危害及处理 1
2 工艺流程选择说明 2
2.1 除尘工艺的选择 2
2.1.1 几种常见的除尘设备 2
2.1.2 除尘设备的选择 8
2.2 除硫脱氮工艺的选择 8
2.2.1 几种联合除硫脱氮的新技术 8
2.2.2 活性炭吸附联合除硫脱氮工艺的原理 10
2.2.3 活性炭联合脱除SO2/ NOx 的反应机理 10
2.2.4 活性炭的解吸反应机理 11
2.3 脱氟工艺的选择 12
3 设计条件及排放标准 14
3.1设计条件 14
4 设备选型和工艺计算 15
4.1 除尘器的选型及计算 15
4.2 吸附塔的设计 16
4.3 换热器的设计计算 19
4.3.1 试算和初选换热器规格 19
4.3.2 核算压强降 23
4.4吸附剂再生再生及相关计算 23
4.4.1吸附剂再生的方法 23
4.4.2 吸附剂再生的计算 24
5 管道设计以及风机选型 26
5.1 管道系统设计 26
5.1.1 烟气处理系统管道排列简图 26
5.1.2 管道系统各段管道压力损失及管径计算 26
5.1.3管段计算表 32
5.1风机和电动机的选择和计算 32
5.2.1 风机选择总方案引风机 32
5.2.2 风机的计算和选型 32
6 工程投资估算 35
7 设计结论 36
8 参考文献 37
9 致谢 38
温馨提示:
1、题目前面的备注【字母数字编号】为本站整理分类的编号,与课题内容无关,请选题时忽视;
2、若题目上备注三维,则表示文件里包含三维源文件,由于三维组成零件数量较多,为保证预览截图的简洁性,本站将三维文件夹进行了打包。三维及CAD预览截图,均为本站电脑打开软件进行截图的,保证能够打开,下载原件超高清,下载后解压即可;
3、本站所有资源如无特殊说明,都需要本地电脑安装Office2007。图纸软件为AutoCAD,PROE,UG,SolidWorks,CATIA等;
4、本站所有图文资料仅供用户学习参考,不作为任何商用或其他用途;
5、本站不保证下载资源的准确性、安全性和完整性, 不包修改,不支持退换,同时也不承担用户因使用这些下载资源对自己和他人造成任何形式的伤害或损失;
6、 下载文件中如有侵权或不适当内容,请与我们联系,我们立即纠正。