

作品包括:
Word版说明书1份,共40页,约17000字
CAD版本图纸,共4张
华南油品管道公司跃进油库油罐区及装卸设施设计
摘要:该油库是华南油品管道公司跃进油库油罐区及装卸设施设计,根据油库年经营量和油品运输方式并结合该油库所在地地形、水文地质资料及相关气象资料,对油库进行合理的设计。并确定油库的库容、油罐类型及数目、收发工艺和消防系统等。
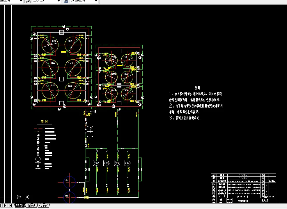
本油库属于地面油库,成品油年预测经营量为64万吨,其中汽油38万吨,柴油26万吨。油品种类:汽油:90#、93#、97#,柴油:0#、-10#。来油方式:管道来油;发油方式:50%汽油(柴油)水路发油,50%汽油(柴油)公路发油。本设计由文字说明、数据计算和图纸绘制三大部分组成。
文字说明和数据计算包括油罐区总容量及分区罐容量计算确定;油罐单罐容量及数目确定;罐区总平面布置;工艺流程设计;罐区管线布置设计;泵房安装设计计算;泵型选择计算;泵安装高度计算;油品输送阻力计算及管径选择;罐区消防设计,消防管线阀门布置及计算。
关键词:油库;罐区;管道;水路运输
目 录
1. 绪论 1
2. 油库概述 1
2.1 油品的性质 1
2.2 油库规模 2
2.3 库址的选择 2
2.3.1 基本要求 2
2.3.2 库址用地 2
2.3.3 安全 2
2.3.4 地震烈度 2
3. 总平面布置 2
3.1 概述 2
3.2 平面布置 2
3.2.1 装卸区布置 3
3.2.2辅助生产区 3
3.2.3行政管理区 3
3.2.4库内道路的布置 3
3.2.5污水处理设备的布置 4
3.2.6油库内各种管道的布置 4
3.2.7消防系统的设计 4
3.3 油罐容量的确定 4
3.3.1 油罐设备容量的计算 4
3.3.2 罐区布置及尺寸计算 5
4. 收发油工艺设计 6
4.1 装车台车位计算 6
4.2 船舶发油设计 7
4.2.1 泊位数计算 7
4.2.2 泊位大小,位置设计 8
5. 水力计算 9
5.1来油管线设计 9
5.1.1管径的选择 9
5.2发油管线 9
5.3发油平台鹤管立管管径计算 10
6. 管线水力计算及泵类型选择 10
6.1汽油公路发油主管线水力计算 11
6.1.1汽油发油主管线水力计算 11
6.1.2汽油立管管径段管道的水力摩阻计算 12
6.1.3汽油倒罐水力计算 13
6.2柴油公路发油主管线水力计算 13
6.2.1柴油发油主管线水力计算 13
6.2.2 立管管径段管道的水力摩阻计算 14
6.2.3 柴油倒罐水力计算 15
6.3 公路发油泵的选择 15
6.4 倒罐泵的选择 17
6.5 输油管道壁厚校核 18
6.6 泵房形式和建筑要求 18
6.6.1 油库泵房位置的选择一般遵从如下原则: 18
6.6.2 泵房的建筑要求 18
6.6.3 油泵房的安装设计 19
6.6.4 油库消防设计 20
7. 泡沫供给及消防 21
7.1 泡沫计算耗量 21
7.2 泡沫产生器的数量 22
7.3 泡沫液储备量 23
7.3.1 油罐所需的泡沫混合液流量 23
7.3.2 流散液体火焰所需的混合液流量 24
7.3.3 泡沫液储备量 25
7.4 消防用水总耗量 25
7.4.1 冷却水供给强度 25
7.4.2 冷却水供给时间 25
7.4.3 消防用水的耗量 26
7.5 消防设备的选择和布置 27
7.5.1 泡沫系统 27
7.5.2 清水系统 30
7.5.3 清水泵的扬程 30
7.5.4 消防栓的数量 32
7.5.5 消防栓的位置 32
8. 油库环保及安全 33
8.1 油库环保 33
参 考 文 献 34
温馨提示:
1、题目前面的备注【字母数字编号】为本站整理分类的编号,与课题内容无关,请选题时忽视;
2、若题目上备注三维,则表示文件里包含三维源文件,由于三维组成零件数量较多,为保证预览截图的简洁性,本站将三维文件夹进行了打包。三维及CAD预览截图,均为本站电脑打开软件进行截图的,保证能够打开,下载原件超高清,下载后解压即可;
3、本站所有资源如无特殊说明,都需要本地电脑安装Office2007。图纸软件为AutoCAD,PROE,UG,SolidWorks,CATIA等;
4、本站所有图文资料仅供用户学习参考,不作为任何商用或其他用途;
5、本站不保证下载资源的准确性、安全性和完整性, 不包修改,不支持退换,同时也不承担用户因使用这些下载资源对自己和他人造成任何形式的伤害或损失;
6、 下载文件中如有侵权或不适当内容,请与我们联系,我们立即纠正。