欢迎来到龙图网在线图文分享平台-CAD图纸,设计说明书,工业设计3D模型,三维软件下载!   客服QQ:2363701252
热搜:

工艺夹具 模具设计 数控编程 土木工程 3D模型

M950-φ630mm的数控车床总体设计及主轴箱设计 下载积分:50 资料编号: M950

1.打开支付宝或者微信扫描二维码。
2.填写金额:50 
3.添加备注,填写资料编号:
资料编号: M950
4.支付成功后,请发资料编号到邮箱:jxsj168@qq.com
会有专人在15分钟内把资料发到您邮箱
备注:如果付款忘记填写资料编号,则发邮件时附带您的交易明细截图即可。
请耐心等待,如超过30分钟还没收到,请联系客服QQ:2363701252
点击分享:

作品描述

作品包括:

说明书1份,共65页,约30000字左右

CAD版本本图纸,共3张


摘  要

数控机床作为机电液气一体化的典型产品,能解决机械制造中结构复杂、精密、批量、零件多变的问题,加工质量稳定,生产效率较高。

在本课题的研究中,第一章主要介绍了本课题的研究背景和意义,还介绍了国内外数控机床的发展现状。第二章主要介绍了Φ630MM数控车床总体设计及要求,其中包括Φ630MM数控车床外观及主要功能、Φ630MM数控车床主要技术参数、Φ630MM数控车床总体设计及要求、尾座的简介。第三、四章是本课题的重要章节,它包括了本课题研究的主要设计,主要进行车床主轴箱的设计。

关键词:车床,数控,设计


目  录

摘  要 II

ABSTRACT III

目  录 IV

第1章 绪 论 1

1.1数控机床及其特点 1

1.2数控机床的适用范围 2

1.3 数控机床的工艺范围及加工精度 2

1.3.1数控机床加工工艺分析 2

1.3.2数控加工工艺的设计 3

1.3.3分析加工工艺路线 3

1.3.4编程原点的选择 3

1.4 模拟仿真技术 3

1.5 数控机床的精度影响及分析 4

1.5.1 间隙误差的影响 5

1.5.2度的反向误差控制 5

1.6数控机床的经济分析 7

1.6.1控制系统的选择 7

1.6.2 选择设计对象要适宜 8

1.6.3 机床的机械设计范围要适当 8

1.6.4 辅助设计要合适 9

1.7数控机床的发展趋向 10

1.7.1 个性化的发展趋势 10

1.7.2 个性化是市场适应性发展趋势 11

1.7.3 开放性是体系结构的发展趋势 11

第2章 数控机床总体方案的制订及比较 11

2.1 总体方案制定与比较分析 11

2.2 总体方案设计的确定 12

2.2.1伺服驱动 12

2.1.2数控装置 13

2.1.3系统功能 13

2.1.4采用环形分配器 13

2.1.5采用滚珠丝杠螺母副 13

第3章 确定切削用量及选择刀具 14

3.1.背吃刀量ap或侧吃刀量ae 15

3.2.进给量f 与进给速度Vf的选择 16

3.3.切削速度Vc 16

第4章  传动系统图的设计计算 19

4.1 参数的确定 19

4. 2 传动设计 22

4.3转速图的拟定 24

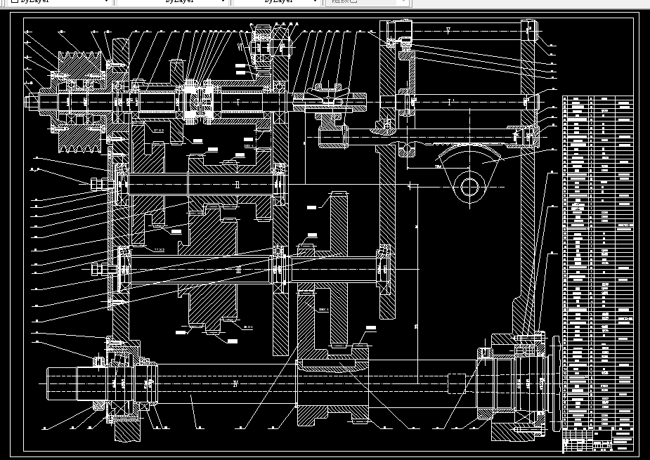
第5章 Φ630mm的主轴箱设计计算 27

5.1 带轮传动部分的设计 27

5.2 齿轮传动部分的设计 31

5.3电磁离合器的选择 36

5.4 轴的设计计算 37

第6章  电路系统设计 44

6.1 控制系统总体方案的拟定 44

6.2总控制系统硬件电路设计 44

6.2.1单片机的设计 44

6.2.2系统的扩展 48

6.2.3键盘、显示器接口设计 52

6.2.4步进电机控制电路设计 54

6.2.5光电隔离电路设计 56

6.2.6其他接口电路设计 57

参考文献 59

致 谢 60


温馨提示:

1、题目前面的备注【字母数字编号】为本站整理分类的编号,与课题内容无关,请选题时忽视;

2、若题目上备注三维,则表示文件里包含三维源文件,由于三维组成零件数量较多,为保证预览截图的简洁性,本站将三维文件夹进行了打包。三维及CAD预览截图,均为本站电脑打开软件进行截图的,保证能够打开,下载原件超高清,下载后解压即可;

3、本站所有资源如无特殊说明,都需要本地电脑安装Office2007。图纸软件为AutoCAD,PROE,UG,SolidWorks,CATIA等;

4、本站所有图文资料仅供用户学习参考,不作为任何商用或其他用途;
5、本站不保证下载资源的准确性、安全性和完整性, 不包修改,不支持退换,同时也不承担用户因使用这些下载资源对自己和他人造成任何形式的伤害或损失;

6、 下载文件中如有侵权或不适当内容,请与我们联系,我们立即纠正。


线