欢迎来到龙图网在线图文分享平台-CAD图纸,设计说明书,工业设计3D模型,三维软件下载!   客服QQ:2363701252
热搜:

工艺夹具 模具设计 数控编程 土木工程 3D模型

N058-钻床的自动化改造及进给系统设计【台式钻床】 下载积分:50 资料编号: N058

1.打开支付宝或者微信扫描二维码。
2.填写金额:50 
3.添加备注,填写资料编号:
资料编号: N058
4.支付成功后,请发资料编号到邮箱:jxsj168@qq.com
会有专人在15分钟内把资料发到您邮箱
备注:如果付款忘记填写资料编号,则发邮件时附带您的交易明细截图即可。
请耐心等待,如超过30分钟还没收到,请联系客服QQ:2363701252
点击分享:

作品描述

作品包括:

word版本说明书一份,共43页,约20000字

CAD版本图纸,共5张

A0-装配图.dwg

A1-液压缸装配图.dwg

A2-法兰上盖.dwg

A3-法兰下盖.dwg

A3-花键毂.dwg


目录


第1章 绪论 1

1.1 问题分析及其对策 1

1.1.1 现代制造业的发展状况 1

1.1.2 问题的提出 1

1.1.3 问题的分析以及解决方案 2

1.2 本文研究的内容及目标 3

1.3 本章小结 3

第2章 自动钻床的总体方案设计 4

2.1 自动专用钻床已知条件和设计要求的概述 4

2.2 自动钻床的工艺路线分析与确定 4

2.3 执行系统的方案设计 5

2.3.1 执行系统的功能原理设计 5

2.3.2 执行系统的运动规律 6

2.3.3 执行机构的形式设计 6

2.3.4 执行系统的协调设计 6

2.3.5 执行系统方案评价与决策 6

2.4 传动系统方案设计和原动机选择 7

2.4.1 原动机选择 7

2.4.2 传动系统方案设计 7

2.5 控制方案设计 8

2.6 总体布局设计 9

2.7 辅助系统的设计 9

2.8 本章小结 9

第3章 专用钻床进给系统的设计 10

3.1 进给系统概述与分析 10

3.2 进给系统方案图的确定 10

3.3 工况分析 11

3.4 切削力的计算 12

3.4.1 切削刀具及相关参数的选择 12

3.4.2 主轴转速及钻孔时间的计算 12

3.4.3 切削力的计算 13

3.5 钻床主轴设计 13

3.5.1 主轴材料的选择 13

3.5.2 轴径的计算 14

3.5.3 轴的结构设计 14

3.5.4 轴强度的校核 15

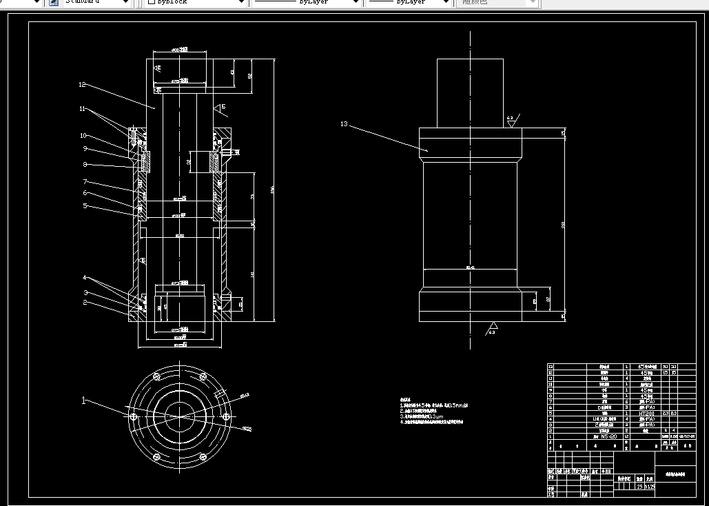
3.6 进给液压系统设计 16

3.6.1 负载分析 16

3.6.2 液压缸执行元件主要参数的确定 18

3.6.3 活塞杆及活塞材料的选择 25

3.6.4 活塞杆与活塞的连接方式及活塞密封装置的选择 25

3.6.5 液压缸盖与液压缸连接方式及密封方式的选择 26

3.7 本章小结 26

第4章 专用钻床主轴传动系统的设计 27

4.1 主轴传动系统的分析 27

4.2 主轴花键的设计 27

4.3 主轴电机选择 27

4.4 V带传动设计 28

4.4.1 设计功率的计算 28

4.4.2 选择带型 28

4.4.3 选取带轮基准直径 28

4.4.4 验算带速 28

4.4.5 确定中心距和带的基准长度 29

4.4.6 验算小带轮包角 29

4.5 本章小结 29

第5章 自动钻床控制系统设计 30

5.1 自动钻床的自动化控制要求 30

5.2 可编程控制器PLC的简述 30

5.3 自动钻床进给系统控制流程 31

5.4 自动钻床进给系统电气原理图 32

5.5 自动钻床进给系统控制元件的选择 33

5.6 本章小结 36

第6章 设计总结 37

参考文献 38

致谢 39


摘 要

本文主要介绍了台式钻床的改造和设计,通过导入液压进给系统和PLC控制系统将台式钻床改造为自动钻床,并可通过PLC实现自动控制。

设计过程按照机床的一般设计步骤先进行总体方案的确定,然后再分别对进给系统、传动系统和控制系统进行具体设计。

设计的目标在于通过导入液压进给系统和PLC控制系统,改造后的钻床能实现自动化连续生产、改善产品的加工质量、提高劳动生产效率;降低工作人员劳动强度和工作量;钻床系统能够工作平稳,满足工作要求;经济因素合理。

本文设计的重点在于进给系统液压缸的设计和PLC控制系统的设计。进给液压缸系统的设计主要包括液压缸结构设计和控制油路的设计;PLC控制系统设计主要是根据工作要求和控制需要,选择电气元件和编写控制程序来实现对自动钻床的控制。

改造后的钻床,能实现自动化控制,是典型的机电一体化产品。


关键词 自动钻床;液压进给系统;PLC


温馨提示:

1、题目前面的备注【字母数字编号】为本站整理分类的编号,与课题内容无关,请选题时忽视;

2、若题目上备注三维,则表示文件里包含三维源文件,由于三维组成零件数量较多,为保证预览截图的简洁性,本站将三维文件夹进行了打包。三维及CAD预览截图,均为本站电脑打开软件进行截图的,保证能够打开,下载原件超高清,下载后解压即可;

3、本站所有资源如无特殊说明,都需要本地电脑安装Office2007。图纸软件为AutoCAD,PROE,UG,SolidWorks,CATIA等;

4、本站所有图文资料仅供用户学习参考,不作为任何商用或其他用途;
5、本站不保证下载资源的准确性、安全性和完整性, 不包修改,不支持退换,同时也不承担用户因使用这些下载资源对自己和他人造成任何形式的伤害或损失;

6、 下载文件中如有侵权或不适当内容,请与我们联系,我们立即纠正。


线