

作品包括:
说明书1份,共33页,约18000字左右
CAD版本本图纸,共5张

目 录
摘要…………………………....………………….……………………...Ⅰ
ABSTRACT...................Ⅱ
1 绪论........................3
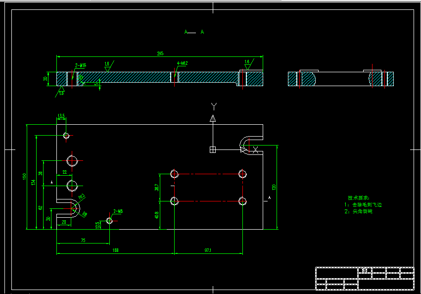
2 拨叉C的分析...........4
2.1拨叉C的作用.........4
2.2拨叉C的工艺分析...4
2.3拨叉C的工艺要求...4
2.4毛坯的选择............5
2.5 本章总结..............5
3 工艺规程设计...........6
3.1加工工艺过程.........6
3.2确定各表面加工方案6
3.2.1选择加工方法时,需考虑的因素...............6
3.2.2面的加工.........6
3.2.3孔的加工.........7
3.2.4槽的加工.........7
3.3确定定位基准.........7
3.3.1粗基准的选择...7
3.3.2精基准选择的原则.................................8
3.4工艺路线的拟订......8
3.4.1工序的合理组合8
3.4.2工序的集中与分散.................................9
3.4.3加工阶段的划分..................................10
3.4.4加工工艺路线方案的比较......................11
3.5拨叉C的偏差,加工余量,工序尺寸及毛坯尺寸的确定..............12
3.5.1毛坯的结构工艺要求............................12
3.5.2拨叉C的偏差计算...............................13
3.6确定切削用量及基本工时(机动时间)............14
3.7时间定额计算及生产安排............................22
3.7.1钻预制孔.......22
3.7.2钻预制孔.......23
3.7.3拉 25H7内花键..................................23
3.7.4粗、精铣18H11底槽......23
3.7.5粗、精铣上端面.............24
3.7.6钻、攻2-M8螺纹孔.......25
3.8 本章总结............................26
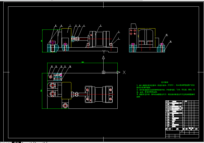
4 专用夹具设计........................27
4.1铣槽夹具设计......................27
4.1.1研究原始质料...............27
4.1.2定位基准的选择............27
4.1.3夹具方案的设计选择.....27
4.1.4切削力及夹紧分析计算.27
4.1.5误差分析与计算............29
4.1.6夹具设计及操作的简要说明..............................29
4.2钻、攻2—M8螺纹孔夹具设计30
4.2.1研究原始质料...............30
4.2.2定位基准的选择............30
4.2.3夹具方案的设计选择.....30
4.2.4切削力及夹紧力的计算.30
4.2.5误差分析与计算............31
4.2.6夹具设计及操作的简要说明..............................32
4.3 本章总结............................32
5 花键孔 25H7拉刀设计........33
5.1拉刀的结构参数..................33
5.1.1拉削特点......................33
5.1.2拉刀类型选择...............33
5.1.3拉刀材料选择...............33
5.1.4拉床类型选择...............33
5.2拉刀切削部分的设计...........33
5.2.1拉削方式选择...............33
5.2.2齿型确定......................33
5.2.3拉削余量的确定...........34
5.2.4刀齿几何参数选择........34
5.2.5确定齿升量..................34
5.2.6确定齿距及同时工作齿数.................................35
5.2.7确定容屑槽形状和尺寸.35
5.2.8设计分屑槽............................36
5.2.9确定拉刀齿数和直径....37
5.3拉刀其他部分设计..............38
5.3.1拉刀柄部设计..............38
5.3.2颈部与过渡锥部设计....38
5.3.3前导部、后导部设计....39
5.3.4拉刀总长度..................39
5.4拉刀强度及拉床拉力校验....40
5.4.1 拉削力........................40
5.4.2 拉刀强度校验..............41
5.4.3 拉床拉力校验..............41
5.5 本章总结............................42
6 结论........................................43
参考文献....................................44
致 谢..........................................45
温馨提示:
1、题目前面的备注【字母数字编号】为本站整理分类的编号,与课题内容无关,请选题时忽视;
2、若题目上备注三维,则表示文件里包含三维源文件,由于三维组成零件数量较多,为保证预览截图的简洁性,本站将三维文件夹进行了打包。三维及CAD预览截图,均为本站电脑打开软件进行截图的,保证能够打开,下载原件超高清,下载后解压即可;
3、本站所有资源如无特殊说明,都需要本地电脑安装Office2007。图纸软件为AutoCAD,PROE,UG,SolidWorks,CATIA等;
4、本站所有图文资料仅供用户学习参考,不作为任何商用或其他用途;
5、本站不保证下载资源的准确性、安全性和完整性, 不包修改,不支持退换,同时也不承担用户因使用这些下载资源对自己和他人造成任何形式的伤害或损失;
6、 下载文件中如有侵权或不适当内容,请与我们联系,我们立即纠正。