

作品包括:
word说明书一份,共38页,约23000字
CAD版本图纸,共18张
目 录
摘要 ………………………………………………………………………………………1
关键词 ……………………………………………………………………………………1
1 前言… …………………………………………………………………………………1
2 结构型式及注射机的确定 ……………………………………………………………2
2.1 塑件的成型工艺分析 …………………………………………………………2
2.2 塑料制件的结构设计分析 ……………………………………………………4
2.3 注射成型工艺性分析 …………………………………………………………7
2.4 模具结构及分型面位置的分析和确定………………………………………10
2.5 注射机的选择及工艺参数的校核……………………………………………11
2.6 相关参数的校核………………………………………………………………14
3 浇注系统的形式选择和截面尺寸的计算……………………………………………16
3.1 普通流道浇注系统设计………………………………………………………16
3.2 主流道设计……………………………………………………………………17
3.3 分流道设计……………………………………………………………………18
3.4 浇口的设计……………………………………………………………………20
4 模架的确定……………………………………………………………………………21
4.1 模具标准化的意义……………………………………………………………21
4.2 标准模架的选用………………………………………………………………22
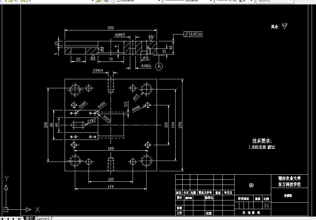
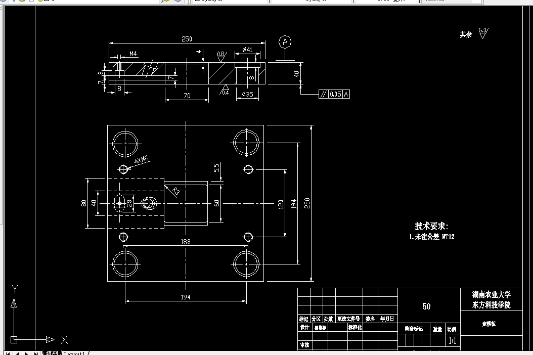
5 成型零件的设计及计算………………………………………………………………22
5.1 模具材料的选择………………………………………………………………23
5.2 成型零件结构设计……………………………………………………………23
5.3 成型零件的工作尺寸计算……………………………………………………25
5.4 成型零件的底版与侧壁厚度尺寸的确定……………………………………27
5.5 侧向分型与抽芯机构的设计…………………………………………………28
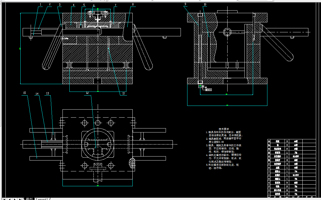
6 导向机构的设计………………………………………………………………………28
6.1 导向机构的功用………………………………………………………………28
6.2 导向机构的设计………………………………………………………………29
7 脱模机构的设计………………………………………………………………………30
8 模架的设计……………………………………………………………………………31
8.1 塑料注射模架结构……………………………………………………………31
8.2 标准模架的选用………………………………………………………………31
9 总结 …………………………………………………………………………………32
参考文献 …………………………………………………………………………………33
致谢 ………………………………………………………………………………………34
直三通管的注塑成型工艺及模具设计
摘 要:在目前激烈的市场竞争中,产品投入市场的迟早往往是成败的关键。缩短设计周期并提高设计质量是缩短整个模具开发周期的关键之一。模块化设计就是利用产品零部件在结构及功能上的相似性,而实现产品的标准化与组合化。大量实践表明,模块化设计能有效减少产品设计时间并提高设计质量。因此本文探索在模具设计中运用模块化设计方法。
关键词:三通管;注射模;斜滑块;侧抽芯
温馨提示:
1、题目前面的备注【字母数字编号】为本站整理分类的编号,与课题内容无关,请选题时忽视;
2、若题目上备注三维,则表示文件里包含三维源文件,由于三维组成零件数量较多,为保证预览截图的简洁性,本站将三维文件夹进行了打包。三维及CAD预览截图,均为本站电脑打开软件进行截图的,保证能够打开,下载原件超高清,下载后解压即可;
3、本站所有资源如无特殊说明,都需要本地电脑安装Office2007。图纸软件为AutoCAD,PROE,UG,SolidWorks,CATIA等;
4、本站所有图文资料仅供用户学习参考,不作为任何商用或其他用途;
5、本站不保证下载资源的准确性、安全性和完整性, 不包修改,不支持退换,同时也不承担用户因使用这些下载资源对自己和他人造成任何形式的伤害或损失;
6、 下载文件中如有侵权或不适当内容,请与我们联系,我们立即纠正。