欢迎来到龙图网在线图文分享平台-CAD图纸,设计说明书,工业设计3D模型,三维软件下载!   客服QQ:2363701252
热搜:

工艺夹具 模具设计 数控编程 土木工程 3D模型

S341-空心球柄的塑件注射模具设计 下载积分:50 资料编号: S341

1.打开支付宝或者微信扫描二维码。
2.填写金额:50 
3.添加备注,填写资料编号:
资料编号: S341
4.支付成功后,请发资料编号到邮箱:jxsj168@qq.com
会有专人在15分钟内把资料发到您邮箱
备注:如果付款忘记填写资料编号,则发邮件时附带您的交易明细截图即可。
请耐心等待,如超过30分钟还没收到,请联系客服QQ:2363701252
点击分享:

作品描述

作品包括:

Word版说明书一份,共38页,约14000字

CAD版本图纸,共7张


摘  要

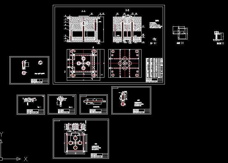
本次毕业设计的题目是:球柄的塑件注射模。本次设计主要是通过对塑件的形状、尺寸及其精度的要求来进行注射成型工艺的可行性分析。塑件的成型工艺性主要包括塑件的壁厚,斜度和圆角以及是否有抽芯机构。通过以上的分析来确定模具分型面、型腔数目、浇口形式、位置大小;其中最重要的是确定型芯和型腔的结构,例如是采用整体式还是镶拼式,以及它们的定位和固紧方式。此外还分析了模具受力,脱模机构的设计,合模导向机构的设计,冷却系统的设计等。最后绘制完整的模具装配总图和主要的模具零件图。


关键词:分型面;浇口;型腔;型芯;脱摸力。

目  录

摘  要 2

第一章  引  言 5

第二章  塑料制品工艺分析 7

第三章  塑料的成型特性及工艺参数 9

第四章  注塑设备的选择 10

4.1 计算塑件的体积和重量 10

4.2 确定型腔数选择注塑机 11

4.3注塑机基本参数 11

4.4选择模架 13

第五章  塑料件的工艺尺寸的计算 15

5.1型腔径向尺寸的计算 17

5.2型腔深度尺寸的计算 18

5.3型芯径向尺寸的计算 18

5.4型芯高度尺寸的计算 19

第六章  浇注系统 20

6.1 分型面的选择 21

6.2 浇口套的选用 21

6.3 分流道的布置 22

6.4 浇口的设计 23

第七章  脱模机构的设计与合模导向结构设计 24

7.1脱模结构设计 24

7.2合模导向机构的设计 24

第八章  排气系统和温度调节系统的设计 25

8.1 排气系统 25

8.2 温度调节系统的设计 25

第九章  注射机有关工艺参数的校核 27

9.1注射量的校核 27

9.2锁模力的校核 27

9.3注射机安装模具部分的尺寸校核 28

第十章  绘制装配图及零件材料的定制 28

第十一章  模具的安装试模 30

11.1试模前的准备 30

11.2模具的安装及调试 31

11.3试模 31

11.4检验 32

结 论 32

致谢 34

【参考文献】 35

温馨提示:

1、题目前面的备注【字母数字编号】为本站整理分类的编号,与课题内容无关,请选题时忽视;

2、若题目上备注三维,则表示文件里包含三维源文件,由于三维组成零件数量较多,为保证预览截图的简洁性,本站将三维文件夹进行了打包。三维及CAD预览截图,均为本站电脑打开软件进行截图的,保证能够打开,下载原件超高清,下载后解压即可;

3、本站所有资源如无特殊说明,都需要本地电脑安装Office2007。图纸软件为AutoCAD,PROE,UG,SolidWorks,CATIA等;

4、本站所有图文资料仅供用户学习参考,不作为任何商用或其他用途;
5、本站不保证下载资源的准确性、安全性和完整性, 不包修改,不支持退换,同时也不承担用户因使用这些下载资源对自己和他人造成任何形式的伤害或损失;

6、 下载文件中如有侵权或不适当内容,请与我们联系,我们立即纠正。


线