

作品包括:
Word版说明书一份,共18页,约4700字
CAD版本图纸,共10张
目录
1. 设计任务书...........................................3
2. 止动片冲压工艺分析及模具确定.........................4
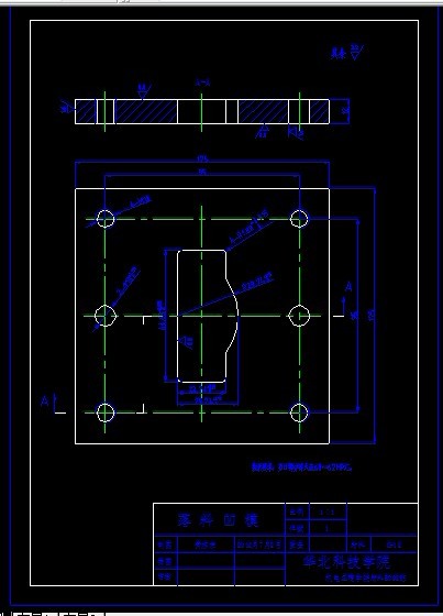
2.1. 冲压件工艺分析.....................................4
2.2. 冲压工艺方案的确定.................................4
2.3. 排样设计..........................................5
2.4. 模具结构形式的确定.................................7
2.4.1. 模具类型的选择.................................7
2.4.2. 操作方式的选择.................................7
2.4.3. 定位方式的选择.................................7
2.4.4. 卸料方式的选择.................................7
2.4.5. 出件方式的选择.................................7
2.4.6. 模架类型的确定.................................7
2.5. 冲压力的计算......................................8
2.6. 压力中心的计算....................................9
2.7. 初选压力机........................................9
2.8. 工作零件刃口尺寸计算..............................10
2.8.1. 落料模具工作零件刃口尺寸计算....................10
2.8.2. 冲孔模具工作零件刃口尺寸计算....................11
2.8.3. 孔心距的计算..................................11
2.8.4. 孔边距的计算..................................11
2.9. 卸料装置中弹性元件的设计..........................12
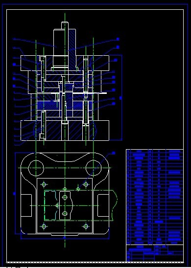
3. 模具主要零部件工艺设计.............................13
3.1. 工作零件的结构设计.............................13
3.1.1. 落料凹模的设计...............................13
3.1.2. 冲孔凸模的设计...............................13
3.1.3. 凸凹模的设计.................................14
3.2. 其它模具零件的节结构尺寸........................15
3.2.1. 卸料板的设计.................................15
3.2.2. 固定板的设计.................................15
3.2.3. 垫板的设计...................................16
3.2.4. 推件块的设计.................................16
3.3. 模架及其它标准零件的选用的选用...................16
3.4. 压力机的校核...................................17
4. 总结...............................................17
5. 参考文献
温馨提示:
1、题目前面的备注【字母数字编号】为本站整理分类的编号,与课题内容无关,请选题时忽视;
2、若题目上备注三维,则表示文件里包含三维源文件,由于三维组成零件数量较多,为保证预览截图的简洁性,本站将三维文件夹进行了打包。三维及CAD预览截图,均为本站电脑打开软件进行截图的,保证能够打开,下载原件超高清,下载后解压即可;
3、本站所有资源如无特殊说明,都需要本地电脑安装Office2007。图纸软件为AutoCAD,PROE,UG,SolidWorks,CATIA等;
4、本站所有图文资料仅供用户学习参考,不作为任何商用或其他用途;
5、本站不保证下载资源的准确性、安全性和完整性, 不包修改,不支持退换,同时也不承担用户因使用这些下载资源对自己和他人造成任何形式的伤害或损失;
6、 下载文件中如有侵权或不适当内容,请与我们联系,我们立即纠正。