

作品包括:
说明书1份,共39页,约18000字左右
CAD版本图纸,共17张
摘 要
塑料注射模具是成型塑料的一种重要工艺装备,通过对液压管路三通塑料模具设计,能够全面的了解塑料模具设计的基本原则、方法.并能较为熟练的使用Proe4.0、AUTOCAD软件进行塑料模具设计,提高自己的绘图能力。为今后从事设计工作打下了坚实的基础。
随着现代工业发展的需要,塑料制品在工业、农业、日常生活和军事等各个领域的应用范围越来越广,质量要求也越来越高,中国已经成为全球最大的塑料市场之一,塑料制品产量全球第二。为了做到高质、高效、低成本,从而提高市场占有率,注塑模具的开发、设计、加工与CAD/CAE/CAM技术相结合具有重大意义。
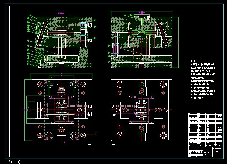
本次主要设计是对液压管路三通注射模的设计, 重点对塑件的成型原理、原料选用和注射技术进行分析。通过根据形状、尺寸、精度及表面质量要求的分析结果,确定所需的模塑成型方案,制品的后加工、分型面的选择、型腔的数目和排列、成型零件的结构、浇注系统等。
关键词:注塑模;模具结构;侧型芯;工艺方案
目 录
前言 1
1 研究概况 1
1.1国外研究现状.........................................................................................................1
1.2国内研究现状.........................................................................................................1
2 塑件制品分析 2
2.1 明确制品设计要求 2
2.2 明确制品批量 3
2.3 材料选择及性能 3
2.3.1 材料选择 3
2.4 成型设备 4
2.5 拔模斜度 4
2.6 计算制品的体积和质量 5
2.6.1表面质量的分析 5
2.6.2塑件的体积重量 5
3 注射机及成型方案的确定 6
3.1 注射机的确定 6
3.2 成型方案的确定 6
3.2.1 成型设备的选择 6
3.2.2成型的特点 7
3.2.3成型的原理 7
3.2.4成型过程 7
4 型腔数的确定及分型面的选择 9
4.1 型腔数的确定 9
4.2 分型面的选择 10
4.2.1 分型面的主要选择原则 10
4.3 确定型腔的排列方式 11
4.4 标准模架的选用 11
5 成型零部件的设计与计算 13
5.1 凸模设计 13
5.2 凹模的设计 13
5.3 成型零件工作尺寸的计算 14
5.3.1 模腔工作尺寸的计算 14
6 浇注系统的设计 13
6.1 主流道设计 16
6.2分主流道的设计 16
6.3 浇口的设计 17
6.4 平衡进料 17
6.5冷料穴设计 18
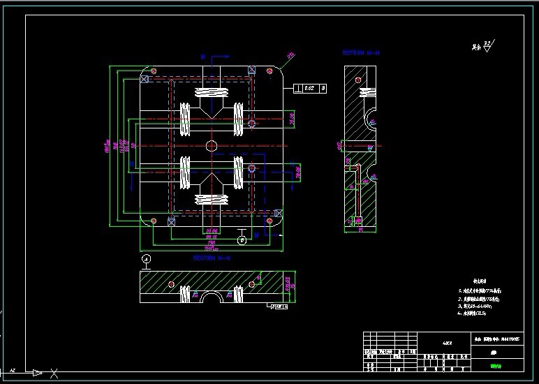
7 排气与冷却系统的设计 13
7.1 冷却系统设计的原则 18
7.2 冷却水路的计算 19
7.3 排气系统的设计 20
8 顶出与抽芯机构的设计 20
8.1 推杆复位装置 20
8.2 抽芯机构的选择 21
8.3 抽芯距的计算 21
8.4斜导柱抽芯的设计 21
8.5滑块的设计 23
8.5侧向分型与抽芯机构三维效果图如下所示: 23
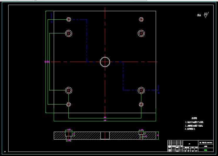
9 导向机构的设计 24
9.1 导向、定位机构的主要功能 24
9.2导向机构的设计 24
9.2.1 导柱的设计 24
10 注塑机与模具各参数的校核 25
10.1 工艺参数的校核 25
10.2 模具安装尺寸的校核 26
10.2.1 喷嘴的校核 26
10.2.2 定位圈尺寸的校核 26
10.2.3 模具外形尺寸的校核 26
10.2.4 模具厚度的校核 26
10.2.5 安装参数的校核 26
10.3 开模行程的校核 27
11 模具安装和试模 27
12 主要成型零件加工工艺 28
13 结论……………………………………………………………… 30
谢 辞 32
参考文献 33
温馨提示:
1、题目前面的备注【字母数字编号】为本站整理分类的编号,与课题内容无关,请选题时忽视;
2、若题目上备注三维,则表示文件里包含三维源文件,由于三维组成零件数量较多,为保证预览截图的简洁性,本站将三维文件夹进行了打包。三维及CAD预览截图,均为本站电脑打开软件进行截图的,保证能够打开,下载原件超高清,下载后解压即可;
3、本站所有资源如无特殊说明,都需要本地电脑安装Office2007。图纸软件为AutoCAD,PROE,UG,SolidWorks,CATIA等;
4、本站所有图文资料仅供用户学习参考,不作为任何商用或其他用途;
5、本站不保证下载资源的准确性、安全性和完整性, 不包修改,不支持退换,同时也不承担用户因使用这些下载资源对自己和他人造成任何形式的伤害或损失;
6、 下载文件中如有侵权或不适当内容,请与我们联系,我们立即纠正。