

作品包括:
说明书1份,共39页,约15000字左右
CAD版本图纸,共13张
UG零件图 三维一张
摘 要
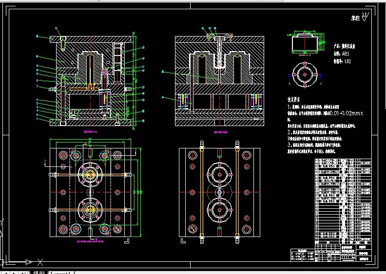
根据塑料制品的要求,了解塑件的用途,分析塑件的工艺性、尺寸精度等技术要求,考虑塑件制件尺寸。本模具采用一模两腔,潜伏式浇口进料,注射机采用HTF80XB型号,设置冷却系统,CAD和UG绘制二维总装图和零件图,选择模具合理的加工方法。附上说明书,系统地运用简要的文字,简明的示意图和和计算等分析塑件,从而作出合理的模具设计。
关键词:机械设计;模具设计;CAD绘制二维图;UG绘制3D图。
目 录
摘 要 I
1 绪论 4
1.1 塑料简介 4
1.2 注塑成型及注塑模 4
2 塑件分析 7
2.1 塑件图 7
2.2 塑件的材料分析 7
2.2.1基本特性 7
2.2.2成型性能 9
2.2.3主要用途 9
2.3 塑件的结构和尺寸精度表面质量分析 9
2.3.1 塑件的结构设计 9
2.3.2 塑件尺寸及精度 10
2.3.3 塑件表面粗糙度 11
2.4 计算塑件的体积、质量 11
3 塑件成型方案设计 12
3.1 分型面选择 12
3.2 型腔数的确定 12
3.3 型腔布局 13
3.4 浇注系统的类型和位置的选择 13
3.4.1浇注系统组成 13
3.4.2 确定浇注系统的原则 14
3.5 成型零件结构设计 14
3.5.1型腔设计 14
3.5.2型芯设计 15
3.6 脱模机构的设计 16
3.6.1 脱模机构的选择 16
3.6.2推板推出机构设计 17
3.7 导向与定位机构设计 18
3.8 排气及引气系统的设计 19
3.9模温调节系统的设计 20
温度调节对塑件质量的影响 20
3.10模架选用 21
3.10.1确定模具的基本类型 21
3.10.2模架的选择 21
4 模具零件设计 24
4.1 模具成型零件尺寸计算 24
4.2模具强度与刚度校核 24
4.3脱模力的计算 25
4.4浇注系统的设计 25
4.4.1 主流道的设计 25
4.4.2分主流道的设计 27
4.4.3浇口的设计 27
4.4.4拉料杆的设计 28
4.4.5冷料井的设计 28
4.5模具冷却系统的设计 29
5 注射机的选用及相关参数的校核 30
注射成型工艺过程分析 30
5.1 相关参数 32
表<1> HTF80XB注塑机参数(部分) 32
5.2最大注塑量校核 32
5.3 锁模力校核 33
5.4 模具与注塑机安装部分相关尺寸校核 33
5.5 开模行程校核 34
6 模具结构总图 35
总结 36
致谢 37
参考文献 38
温馨提示:
1、题目前面的备注【字母数字编号】为本站整理分类的编号,与课题内容无关,请选题时忽视;
2、若题目上备注三维,则表示文件里包含三维源文件,由于三维组成零件数量较多,为保证预览截图的简洁性,本站将三维文件夹进行了打包。三维及CAD预览截图,均为本站电脑打开软件进行截图的,保证能够打开,下载原件超高清,下载后解压即可;
3、本站所有资源如无特殊说明,都需要本地电脑安装Office2007。图纸软件为AutoCAD,PROE,UG,SolidWorks,CATIA等;
4、本站所有图文资料仅供用户学习参考,不作为任何商用或其他用途;
5、本站不保证下载资源的准确性、安全性和完整性, 不包修改,不支持退换,同时也不承担用户因使用这些下载资源对自己和他人造成任何形式的伤害或损失;
6、 下载文件中如有侵权或不适当内容,请与我们联系,我们立即纠正。