

作品包括:
说明书1份,共28页,约7500字左右
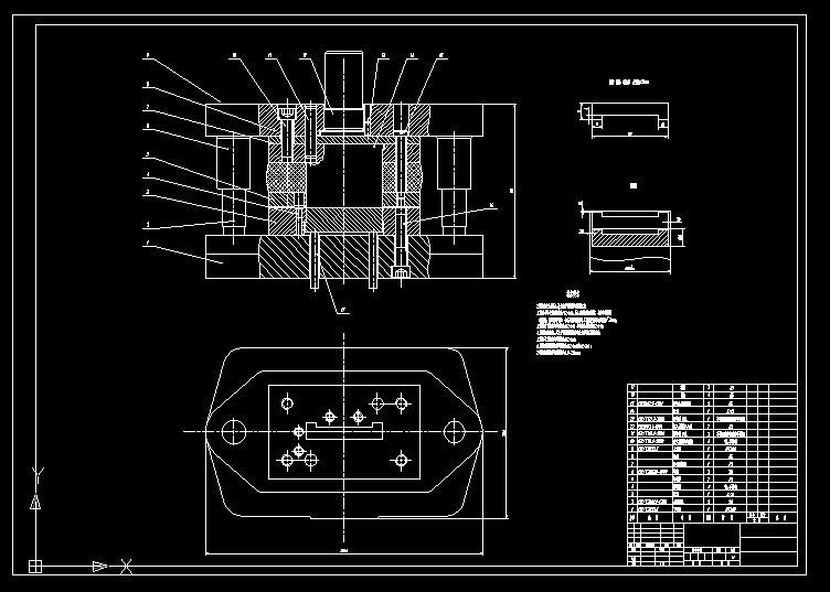
CAD版本图纸,共6张
摘 要
本次设计为垫片零件冲压模具设计,通过分析,发现工件有落料基本工序,需要设计一个落料模来实现工件的落料。要求设计的模具设计浅显易懂,利用我们所学知识,可以对我们们所学知识有个系统的学习和掌握,做到学以致用。
首先,对垫片做全面的研究。研究的内容有:结构的分析、所达到的精度、工序的安排是否合理等。设计比较合适的排样方式,可以做到降低成本的效果;然后进行模具设计整体的工艺计算和分析,选用合理的方案。工艺分析和计算的内容包括合理的方案的选择和工序的安排组合,根据材料来计算模具所使用的冲压力,从而选择合适的压力机。模具刃口的选择和计算,选择和是的凸凹模间隙可以提高模具的寿命;而且只有刃口的精度保证了,我们工件的精度才能保证。
最后,根据我们计算出地凸凹模刃口尺寸数据和模具设计过程中的结构,尽量选用合适的标准件,做到标准化,从而完成装配图以及主要零件的设计。最后在进行确定和校核模具高度,选择合适的标准模架,进行压力机校核,以满足实际生产的需要。
关键词:落料模,冲压工艺,模具设计
目 录
摘 要I
AbstractI
1冲压基础知识1
2工艺分析3
2.1工件的材料3
2.2工件的结构和尺寸精度分析3
3工艺计算4
3.1排样及材料的利用率4
3.11排样的选用原则4
3.12材料利用率的计算4
3.2落料力、卸料力、推件力的计算6
3.2.1 冲裁力的计算6
3.2.2 卸料力的计算7
3.2..3 顶件力的计算7
3.2.4 总冲裁力的计算7
3.3冲压设备的选择8
3.4模具刃口的尺寸和公差的确定9
3.4.1冲裁间隙的确定9
3.4.2凸、凹模刃口尺寸计算9
4 主要零部件设计11
4.1 凹模设计11
4.2 凸模的设计14
4.4 卸料橡胶的设计15
4.5 卸料板的设计16
4.6 固定板的设计17
4.7 上下模座、模柄的选用18
5 冲压设备的校核与选定20
5.1 冲压设备的校核20
5.2 冲压设备的选用20
设计总结21
致谢22
参考文献23
温馨提示:
1、题目前面的备注【字母数字编号】为本站整理分类的编号,与课题内容无关,请选题时忽视;
2、若题目上备注三维,则表示文件里包含三维源文件,由于三维组成零件数量较多,为保证预览截图的简洁性,本站将三维文件夹进行了打包。三维及CAD预览截图,均为本站电脑打开软件进行截图的,保证能够打开,下载原件超高清,下载后解压即可;
3、本站所有资源如无特殊说明,都需要本地电脑安装Office2007。图纸软件为AutoCAD,PROE,UG,SolidWorks,CATIA等;
4、本站所有图文资料仅供用户学习参考,不作为任何商用或其他用途;
5、本站不保证下载资源的准确性、安全性和完整性, 不包修改,不支持退换,同时也不承担用户因使用这些下载资源对自己和他人造成任何形式的伤害或损失;
6、 下载文件中如有侵权或不适当内容,请与我们联系,我们立即纠正。