

作品包括:
说明书1份,共53页,约15000字左右
CAD版本图纸,共6张
计算器上盖注塑模具设计
摘要
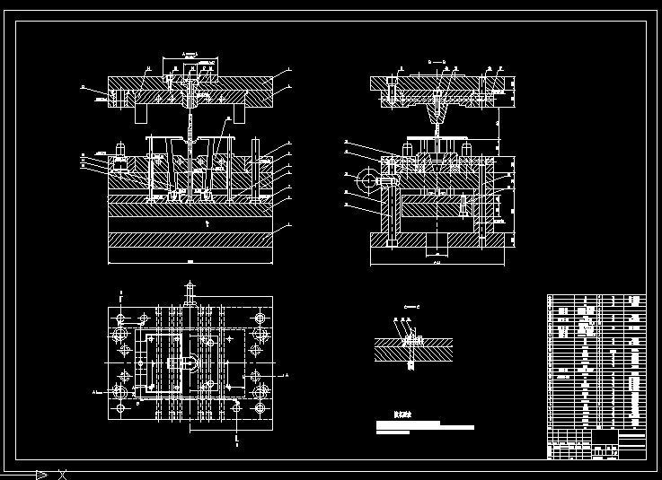
塑料工业是当今世界上增长最快的工业门类之一,因而注塑模具得到飞速发展,因此,研究注塑模具对了解塑料产品的生产过程和提高产品质量有很大的意义。本设计题目是计算器上盖模具设计,介绍了注塑成型的基本原理,特别是单分型面注塑模具的结构与工作原理;详细介绍了注射模具浇注系统、成型零件和顶出系统的设计过程。浇注系统主要对浇口道、主流道和分流道进行了设计;成型零件主要对凹模结构和工作尺寸进行了设计和计算,并对两处侧抽芯机构进行了重点分析和设计,这里采用了成型斜顶杆和橡胶完成,并对脱模力进行了计算,然后对模具强度要求、锁模力、最大注射量等做了校核;最后使用SolidWorks软件对模具的零件进行实体造型,同时完成了注射插装式控制回路的PLC设计。
关键字:成型零件;浇注系统;导向机构;注塑模具
目 录
摘要 I
Abstract II
1绪论 1
1.1塑料模具在国民经济中的作用 1
1.2塑料模具生产向信息化发展 2
1.3注射成型 2
1.4本次设计的目的 4
2塑件的工艺性分析 5
2.1制品的结构分析 5
2.2塑料成型特点 5
2.3塑件成型的工艺参数 6
2.4初选注塑机 7
3成型零件的设计 8
3.1成型零件应具备的性能 8
3.2成型零件的结构设计 8
3.2.1凹模的结构设计 8
3.2.2抽芯机构的设计 9
3.2.3成型斜顶杆的设计 10
3.3塑料制品在模具中的位置 11
3.3.1一模两腔及其排列方式 12
3.3.2分型面的选择 12
3.4成型零件的工作尺寸计算 13
3.4.1型腔的尺寸计算 13
3.4.2型芯/凸模的成型尺寸 14
3.4.3型芯中心到成型面距离 16
3.5成型壁厚和底板厚度计算 16
3.5.1型腔侧壁厚度的计算 17
3.5.2型腔底板厚度的计算 17
4浇注系统的设计 19
4.1浇口的设计 19
4.2主流道的设计 20
4.3分流道的设计 20
4.4排气系统的设计 21
5脱模机构的设计 22
5.1脱模机构的构成与功能 22
5.1.1脱出机构与取出机构的设计 22
5.2脱模力的计算 23
6导向机构的设计 26
6.1导向机构的作用 26
6.2导柱导向机构 26
6.3导柱在模板上的布置 27
7冷却系统的设计 29
7.1冷却水道的设计原则 29
7.2定模上冷却水道的设计 29
7.3动模上冷却水道的设计 30
8注塑模与注塑机的关系 31
8.1最大注塑量的校核 31
8.2锁模力的校核 31
8.3最大注射压力的校核 32
8.4注塑机安装模具部分的尺寸校核 32
8.4.1定位环的尺寸 32
8.4.2模具厚度 33
8.4.3模具的外形尺寸 33
8.5最大开模行程的校核 33
9模具的经济性分析 34
10典型零件的实体造型 36
10.1使用SolidWorks对零件进行实体造型 36
11注射/预塑插装式控制回路的PLC设计 42
结束语 47
致谢 48
参考文献 49
温馨提示:
1、题目前面的备注【字母数字编号】为本站整理分类的编号,与课题内容无关,请选题时忽视;
2、若题目上备注三维,则表示文件里包含三维源文件,由于三维组成零件数量较多,为保证预览截图的简洁性,本站将三维文件夹进行了打包。三维及CAD预览截图,均为本站电脑打开软件进行截图的,保证能够打开,下载原件超高清,下载后解压即可;
3、本站所有资源如无特殊说明,都需要本地电脑安装Office2007。图纸软件为AutoCAD,PROE,UG,SolidWorks,CATIA等;
4、本站所有图文资料仅供用户学习参考,不作为任何商用或其他用途;
5、本站不保证下载资源的准确性、安全性和完整性, 不包修改,不支持退换,同时也不承担用户因使用这些下载资源对自己和他人造成任何形式的伤害或损失;
6、 下载文件中如有侵权或不适当内容,请与我们联系,我们立即纠正。