

作品包括:
说明书1份,共32页,约14000字左右
CAD版本图纸,共9张
SW三维图一份
目录
摘要 .................................................................3
ABSTRACT 4
第一章 绪论 .............................. ...................5
1.1选题背景及意义 ...........................................6
1.2塑料模具的种类和应用 .....................................7
1.2.1塑料模具的种类 .........................................7
1.2.2塑料模具的应用 .........................................7
1.3本次设计塑料注射模具的主要工作内容 ... ....................8
第二章 塑料注射模具的设计步骤和结构组成 ............... .......8
2.1塑料注射模具的设计内容.............................................8
2.2塑料注射模具的设计步骤及内容.......................................8
2.3 塑料注射模具的结构组成和作用 11
第三章 茶水过滤网塑料件............ ..................................12
3.1 塑料件的结构和特点 12
3.2.1常用塑料及特性 12
3.2.2聚丙烯(PP)的特性及注射工艺性 13
3.3 茶水过滤网料件的参数 14
3.3.1 塑件的质量和体积 14
3.3.2 塑件的投影面积 14
第四章 注射机的选用 15
4.1 选用注射机的方法和原则 15
4.2 注射机的种类和应用范围 15
4.3 注射机的选用 15
第五章 塑料注射模具设计 17
5.1 型腔数目和分布 17
5.2 分型面的选择 19
5.2.1 型芯和型腔的结构 19
5.3 浇注系统 20
5.3.1 浇注系统的作用 20
5.3.2 浇注系统的组成 20
5.4 推出机构 24
5.4.1 推出机构的作用和种类 24
5.4.2 茶水过滤网推出机构的组成 24
5.4.3茶水过滤网推出机构的设计 24
5.5 导向机构 26
5.5.1 导向机构的作用和组成 26
5.5.2 导向机构的设计 26
5.6冷却系统和排气系统 ...........................................27
第六章 总 结 28
致 谢 29
摘要
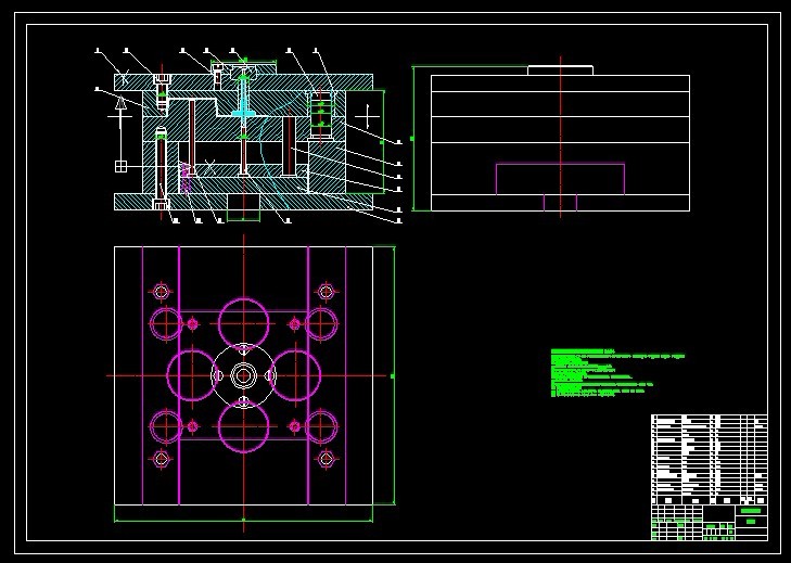
本设计主要是针对茶水过滤网的模具设计,通过对塑件进行工艺的分析和比较,最终设计出一副注塑模。该设计从产品结构工艺性,具体模具结构出发,对模具的浇注系统、模具成型部分的结构、顶出系统、冷却系统、注塑机的选择及有关参数的校核、都有详细的设计,同时并简单的编制了模具的加工工艺,对注射机进行了校核分析。通过整个设计过程表明该模具能够达到此塑件所要求的加工工艺。根据题目设计的主要任务是茶水过滤网注塑模具的设计。也就是设计一副注塑模具来生产茶水过滤网塑件产品,以实现自动化提高产量。针对茶水过滤网的具体结构,该模具是侧浇口的单分型面注射模具。通过模具设计表明该模具能达到茶水过滤网的质量和加工工艺要求。在设计中通过AutoCAD和Solidworks的运用使得设计更加合理经济。
同时,在设计过程中,通过查阅大量资料、手册、标准、期刊等,结合教材上的知识也对注塑模具的组成结构(成型零部件、浇注系统、导向部分、推出机构、排气系统、模温调节系统)有了系统的认识,拓宽了视野,丰富了知识,为将来独立完成模具设计积累了一定的经验。通过本次的模具设计也是对大学四年学习的总结和检验。
关键词:茶水过滤网,塑料,模具,分型面,注射机
温馨提示:
1、题目前面的备注【字母数字编号】为本站整理分类的编号,与课题内容无关,请选题时忽视;
2、若题目上备注三维,则表示文件里包含三维源文件,由于三维组成零件数量较多,为保证预览截图的简洁性,本站将三维文件夹进行了打包。三维及CAD预览截图,均为本站电脑打开软件进行截图的,保证能够打开,下载原件超高清,下载后解压即可;
3、本站所有资源如无特殊说明,都需要本地电脑安装Office2007。图纸软件为AutoCAD,PROE,UG,SolidWorks,CATIA等;
4、本站所有图文资料仅供用户学习参考,不作为任何商用或其他用途;
5、本站不保证下载资源的准确性、安全性和完整性, 不包修改,不支持退换,同时也不承担用户因使用这些下载资源对自己和他人造成任何形式的伤害或损失;
6、 下载文件中如有侵权或不适当内容,请与我们联系,我们立即纠正。