

作品包括:
说明书1份,共44页,约16000字左右
CAD版本图纸,共15张
摘 要
模具制造技术迅速发展,已成为现代制造技术的重要组成部分。本设计介绍了塑料注射模具的设计与制造方法。该注射模采用了1模2腔的结构。根据塑件的结构,选用了两侧带有侧抽芯机构的两板模,运用斜导柱完成塑件的侧抽芯,采用侧浇口完成进料。在整个设计过程中,查阅了大量的参考数据,深入分析设计内容,包括塑件成型工艺性分析;拟定模具结构形式;注射机型号的确定;浇注系统形式和浇口的设计;成型零件的结构设计和计算;模架的确定和标准件的选用;合模导向机构的设计;脱模推出机构的设计;侧向分型与抽芯机构的设计;冷却系统的设计。由于抽芯距离较短,为了使模具结构简单,采用斜导柱侧抽芯方式,并对模具的材料进行了选择。如此设计出的结构可确保模具工作运用可靠。最后对模具结构与注射机的匹配进行了校核。
通过该塑料模具的设计使自己对塑料模具的设计流程有了更深一层次的认识。
关键词:塑料;注射模具;设计;侧抽芯;斜导柱
目 录
引 言 1
1塑件的分析及塑料的成型工艺性能 2
1.1分析塑件使用材料的种类及工艺特征 2
1.1.1性能特点 2
1.1.2成型工艺分析 2
2初步确定型腔数目 4
2.1 型腔数目常用方法 4
2.1.1 根据经济性确定型腔数目 4
2.1.2 根据注射机的额定锁模力确定型腔数目 4
2.1.3 根据制品精度确定型腔数目 4
4.1.4 根据注射机的额定最大注射量确定型腔数目 4
3注塑机的选取及校核 6
3.1塑件体积及品质的计算: 6
3.2 塑件和流道凝料在分型面上的投影面积及锁模力的计算 7
3.3选取注塑机 7
3.4注塑机及工艺参数的校核 7
3.4.1锁模力的校核 7
3.4.2注射量的校核 7
3.4.3 最大注射压力校核 8
4分型面的确定 9
4.1 分型面的设计原则 9
4.2 分型面类型的选择及确定 9
5浇注系统的设计 11
5.1 浇注系统设计的原则 11
5.2. 主流道的设计 12
5.2.1 主流道的设计要点 12
5.2.2 主流道浇口套的形式 13
5.2.3 主流道尺寸的确定 13
5.3 冷料穴的设计 14
5.4 分流道的设计 14
5.4.1 分流道剪切速率的校核 15
5.5 浇口的设计 16
6 成型零部件的结构设计 18
6.1 凹模的的结构设计 18
6.2 凸模的结构设计 18
6.3 成型零件工作尺寸计算 19
6.3.1 影响工作尺寸的因素: 19
6.3.2 零件工作尺寸的计算 20
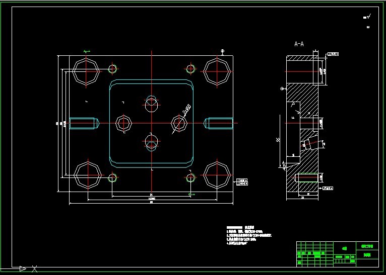
7 侧向抽芯机构设计 22
7.1 抽芯距的计算: 22
7.2 侧向抽芯机构的设计 22
7.2.1 斜导柱的设计 23
7.2.2 斜滑块的设计 24
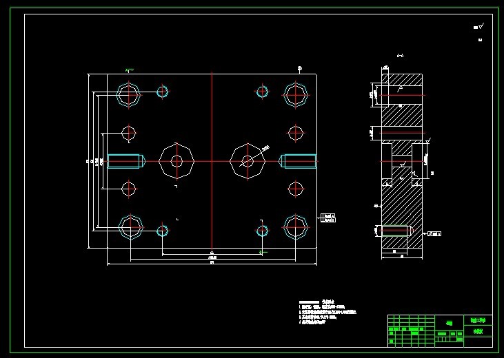
8 模架的选择 25
8.1 主要参数如下: 25
8.2 模具尺寸校核 26
9 导向机构的设计 27
9.1 导柱导向机构的作用 27
9.2 导柱导套的设计原则 27
9.3 导柱导套材料选择 27
10 推出机构的设计 28
10.1 推件力的计算 29
11 冷却系统的设计 30
11.1 冷却系统的开设原则 30
11.2 确定冷却水道直径 31
12模具排气槽的设计 32
13零件的加工工艺 33
13.1动模型芯制造工艺过程: 33
13.2 凸模(定模部分)加工工艺过程: 34
14 模具加工工艺流程: 35
参考文献: 36
设计体会: 37
致 谢 38
温馨提示:
1、题目前面的备注【字母数字编号】为本站整理分类的编号,与课题内容无关,请选题时忽视;
2、若题目上备注三维,则表示文件里包含三维源文件,由于三维组成零件数量较多,为保证预览截图的简洁性,本站将三维文件夹进行了打包。三维及CAD预览截图,均为本站电脑打开软件进行截图的,保证能够打开,下载原件超高清,下载后解压即可;
3、本站所有资源如无特殊说明,都需要本地电脑安装Office2007。图纸软件为AutoCAD,PROE,UG,SolidWorks,CATIA等;
4、本站所有图文资料仅供用户学习参考,不作为任何商用或其他用途;
5、本站不保证下载资源的准确性、安全性和完整性, 不包修改,不支持退换,同时也不承担用户因使用这些下载资源对自己和他人造成任何形式的伤害或损失;
6、 下载文件中如有侵权或不适当内容,请与我们联系,我们立即纠正。