

作品包括:
说明书1份,共343页,约13000字左右
CAD版本图纸,共10张
摘 要
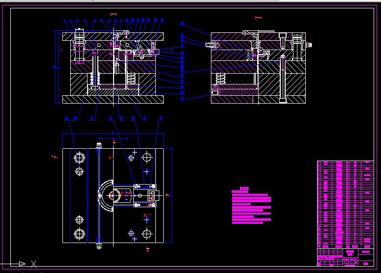
随着中国工业不断地发展,模具行业也显得越来越重要,塑料模所占的比例也越来越大。本设计进行了衬垫的注塑模设计,对零件结构进行了工艺分析。根据零件的结构和生产批量以及零件精度,选取一模一腔的标准模架,采用单分型面,采用的浇注系统是从塑件的中央环形处向两侧浇注,主流道从模具中央直下,分流道在动模型芯上。选择了注射机,计算了成型零部件的尺寸。根据零件所采用的材料成型特点,采用冷却水管对模具进行降温。由于零件的尺寸比较小,利用模具顶出杆与顶出孔的配合间隙,顶块和脱模板与型芯的配合间隙等来排气。采用侧浇口。利用直导柱导向,推杆顶料。由于抽芯距离较短,为了使模具结构简单,采用斜导柱侧抽芯方式,并对模具的材料进行了选择。如此设计出的结构可确保模具工作运用可靠。最后对模具结构与注射机的匹配进行了校核。
关键词:分型面;模具结构;工艺参数;浇注系统;注射机
目 录
1 概论 1
1.1 课题背景及意义 1
1.2 本课题及相关领域的国内外现状及发展 1
1.2.1 我国塑料模具工业的发展现状 1
1.2.2我国塑料模具工业和技术今后的主要发展方向 1
1.2.3 国外的注塑模的发展情况 2
1.3注塑模设计的有关介绍 3
1.3.1注塑模基本组成 3
1.3.2注射模的设计程序 6
2 塑件的分析 7
2.1 成型特点: 7
2.2 综合性能: 7
2.3 ABS的注射工艺参数: 8
3 型腔数目的决定及排布 10
4 分型面的选择 11
5 选取模架及确定模架总体尺寸与结构形式 12
6 浇注系统的初步估计 13
7 注射机的型号和规格 14
8 成型零部件的工作尺寸计算 15
9 导柱导向机构的设计 18
10 侧向抽芯机构的设计 19
11 推出机构的设计 20
12 温控系统设计 23
13 模具的结构分析及动作原理 25
14 注射机参数的较核及模具总体结构的修正 26
设计总结 27
感 谢 28
参考文献 29
温馨提示:
1、题目前面的备注【字母数字编号】为本站整理分类的编号,与课题内容无关,请选题时忽视;
2、若题目上备注三维,则表示文件里包含三维源文件,由于三维组成零件数量较多,为保证预览截图的简洁性,本站将三维文件夹进行了打包。三维及CAD预览截图,均为本站电脑打开软件进行截图的,保证能够打开,下载原件超高清,下载后解压即可;
3、本站所有资源如无特殊说明,都需要本地电脑安装Office2007。图纸软件为AutoCAD,PROE,UG,SolidWorks,CATIA等;
4、本站所有图文资料仅供用户学习参考,不作为任何商用或其他用途;
5、本站不保证下载资源的准确性、安全性和完整性, 不包修改,不支持退换,同时也不承担用户因使用这些下载资源对自己和他人造成任何形式的伤害或损失;
6、 下载文件中如有侵权或不适当内容,请与我们联系,我们立即纠正。