欢迎来到龙图网在线图文分享平台-CAD图纸,设计说明书,工业设计3D模型,三维软件下载!   客服QQ:2363701252
热搜:

工艺夹具 模具设计 数控编程 土木工程 3D模型

U169-多功能充电器外壳注射模具设计[含Proe三维图] 下载积分:50 资料编号: U169

1.打开支付宝或者微信扫描二维码。
2.填写金额:50 
3.添加备注,填写资料编号:
资料编号: U169
4.支付成功后,请发资料编号到邮箱:jxsj168@qq.com
会有专人在15分钟内把资料发到您邮箱
备注:如果付款忘记填写资料编号,则发邮件时附带您的交易明细截图即可。
请耐心等待,如超过30分钟还没收到,请联系客服QQ:2363701252
点击分享:

作品描述

作品包括:

WORD版设计说明书1份,共38页,约16000字

外文翻译一份

CAD版本图纸,共15张

PROE三维图一份


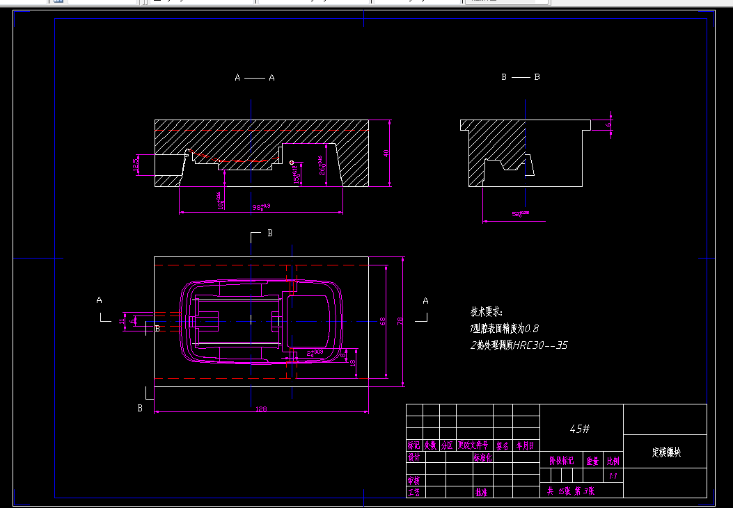
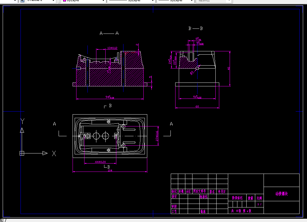
多功能充电器外壳注射模具设计

摘   要

本次毕业设计的题目是:多功能充电器外壳注射模具设计。本次设计主要是通过对塑件的形状、尺寸及其精度的要求来进行注射成型工艺的可行性分析。塑件的成型工艺性主要包括塑件的壁厚,斜度和圆角以及是否有抽芯机构。通过以上的分析来确定模具分型面、型腔数目、浇口形式、位置大小;其中最重要的是确定型芯和型腔的结构,例如是采用整体式还是镶拼式,以及它们的定位和固紧方式。此外还分析了模具受力,脱模机构的设计,合模导向机构的设计,冷却系统的设计等。最后绘制完整的模具装配总图和主要的模具零件土及编制成型零部件的制造加工工艺过程卡片。


关键词:分型面、浇口、型腔。

目  录

1 绪 论 1

 1.1模具工业的意义 1

 1.2中国模具工业的现状 2

 1.3中国模具工业的未来 3

2 产品零件的工艺分析 5

 2.1塑件分析 5

 2.2塑件的成型特性 6

 2.3abs的工艺参数 6

 2.4塑件的工艺要求 7

3 设备的选择 8

 3.1注射机的参数校核 8

  3.1.1注射量校核 8

  3.1.2注射压力的校核 8

  3.1.3锁模力校核 8

  3.1.4模具安装尺寸校核 9

 3.2 模具外形尺寸 9

  3.2.1模具厚度 9

  3.2.2开模行程的校核 9

4 浇注系统的设计 11

 4.1主流道的设计 11

  4.1.1喷嘴形状 11

  4.1.2在设计主流道时的要点 11

 4.2分流道的设计 11

  4.2.1分流道断面形状 12

  4.2.2 分流道的布置 12

 4.3冷料穴的设计 12

 4.4浇口的形状 13

5 成型零部件的设计与计算 14

 5.1凹模的设计与计算 14

  5.1.1 型腔的径向尺寸和深度尺寸 14

 5.2凸模的设计与计算 15

  5.2.1型芯的径向尺寸、高度尺寸和中心距尺寸 15

 5.3模具的装配工艺及零件工艺 17

6 脱模机构的设计 19

 6.1脱模机构的设计 19

 6.2脱模机构的计算 19

7 合模导向及抽芯的设计 21

 7.1合模导向机构的设计 21

 7.2侧抽芯机构的设计 21

  7.2.1抽芯距的确定 21

  7.2.2抽芯力得计算 22

  7.2.3斜导柱的设计 22

  7.2.4侧滑块与导滑槽的设计 23

  7.2.5楔紧块的设计 23

  7.2.6二次分型限位装置的设计 23

  7.2.7滑块的精确导向 23

8 温度调节系统的设计 24

9 模具材料的选择与经济性及环保分析 25

 9.1模具材料的选择 25

 9.2模具经济性与环保分析 26

  9.2.1模具生产周期 26

  9.2.2模具的生产成本 27

  9.2.3模具的寿命 27

  9.2.4绿色制造 28

总  结 29

致  谢 29

参 考 文 献 31

温馨提示:

1、题目前面的备注【字母数字编号】为本站整理分类的编号,与课题内容无关,请选题时忽视;

2、若题目上备注三维,则表示文件里包含三维源文件,由于三维组成零件数量较多,为保证预览截图的简洁性,本站将三维文件夹进行了打包。三维及CAD预览截图,均为本站电脑打开软件进行截图的,保证能够打开,下载原件超高清,下载后解压即可;

3、本站所有资源如无特殊说明,都需要本地电脑安装Office2007。图纸软件为AutoCAD,PROE,UG,SolidWorks,CATIA等;

4、本站所有图文资料仅供用户学习参考,不作为任何商用或其他用途;
5、本站不保证下载资源的准确性、安全性和完整性, 不包修改,不支持退换,同时也不承担用户因使用这些下载资源对自己和他人造成任何形式的伤害或损失;

6、 下载文件中如有侵权或不适当内容,请与我们联系,我们立即纠正。


线