

作品包括:
word说明书一份,共40页,约17000字
任务书一份
开题报告一份
外文翻译一份
CAD版本图纸,共8张
摘 要
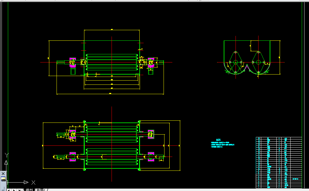
本文先叙述了方便面的历史与起源,大概分析了一下它的巨大前景。对方便面的生产流程有了初步认识,包括方便面的配料、生产概况、工艺流程、制作方法及整条产品生产线,特别重点研究设计了在方便面生产线中起到关键作用的和面机,包括和面机的工作原理、分类、各类结构组成、操作要求和方法、常见故障和排除方法、和面机的维护和保养、以及和面机的技术要求。自己独立设计的和面机为双轴式卧式和面机,该机一次调粉量为125kg,适合各种韧性面团。它的设计是参照国产的T—66型卧式和面机,主要特点是选择了滚笼式搅拌器,带轮与齿轮传动系统,标准减速箱减速等。与T-66型卧式和面机不同的是,该机器卸料是采用的底部卸料装置,两个搅拌桨相向搅拌,且具有不同转速,达到良好的搅拌效果。该和面机的筒体容器还采用了可卸装置,方便安装与拆卸,对和面机的清洗与保养起到一定作用。本次设计画出了和面机设备总装图,部分重点零件图及部件图。结构简单,制造成本低,适用于大小方便面生产产家。
关键词:方便面;和面机;双轴式
目 录
摘 要 III
Abstract IV
目 录 V
1 绪论 1
1.1 本课题的研究内容和意义 1
1.2 国内外的发展概况 2
2 方便面加工系统 3
2.1 油炸方便面的起源 3
2.2 油炸方便面的工艺流程 3
2.3 油炸方便面制作方法 3
2.4 质量标准 4
2.5 方便面加工装备规格 4
2.6 方便面生产线成套设备 4
3 双轴式和面机设计 5
3.1 设计参考 5
3.1.1 和面机调制基本过程 5
3.1.2 和面机分类 5
3.1.3 和面机的主要零部件 8
3.2 设计步骤 11
3.2.1 选择和面机容量 11
3.2.2 总体方案设计 11
3.2.3 运动参数设计 13
3.2.4 动力参数设计 16
3.2.5 其它装置设计 17
3.2.6 设计图 17
4 和面机操作及故障分析 21
4.1 和面操作要求 21
4.2 和面操作方法 21
4.3 和面机常见故障及排除方法 22
5 和面机的维护和保养 23
5.1 机器设备保养的意义 23
5.2 机器设备保养等级的划分 23
6 和面机的技术要求 25
6.1 一般技术要求 25
6.2 工作条件 25
6.3 使用性能 25
6.4 主要零部件质量要求 25
6.5 装配要求 26
6.6 整机性能 27
6.7 电动机功率与耗电量 27
6.8 电气 27
6.9 外观要求 27
7 结论与展望 28
7.1 结论 28
7.2 不足之处及未来展望 28
致 谢 29
参考文献 30
温馨提示:
1、题目前面的备注【字母数字编号】为本站整理分类的编号,与课题内容无关,请选题时忽视;
2、若题目上备注三维,则表示文件里包含三维源文件,由于三维组成零件数量较多,为保证预览截图的简洁性,本站将三维文件夹进行了打包。三维及CAD预览截图,均为本站电脑打开软件进行截图的,保证能够打开,下载原件超高清,下载后解压即可;
3、本站所有资源如无特殊说明,都需要本地电脑安装Office2007。图纸软件为AutoCAD,PROE,UG,SolidWorks,CATIA等;
4、本站所有图文资料仅供用户学习参考,不作为任何商用或其他用途;
5、本站不保证下载资源的准确性、安全性和完整性, 不包修改,不支持退换,同时也不承担用户因使用这些下载资源对自己和他人造成任何形式的伤害或损失;
6、 下载文件中如有侵权或不适当内容,请与我们联系,我们立即纠正。