

作品包括:
word说明书一份,共45页,约15000字
CAD版本图纸,共3张
摘要
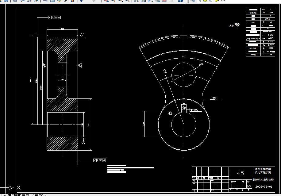
本文详细介绍了型钢堆垛机的整体设计理论和整个堆垛过程,其中重点介绍了翻转机构的设计。主要包括了翻转机构的轴、齿轮、液压缸的整体设计,其中还有轴承的选取,联轴器的选取和校核。
本次设计的型钢自动堆垛机性能良好、动作灵活、操作方便、故障率低、维护简单方便,满足了生产的需要
关键字:型钢堆垛机;机械;液压;齿轮
目录
摘要 I
Abstract II
第1章 概述 1
第2章 型钢堆垛机总体设计 3
2.1 型钢堆垛机的设计参数 3
2.2 堆垛机的工艺流程 4
2.3 堆垛机平面示意图 4
2.4 堆垛机的结构设计 4
2.5 堆垛机总体尺寸 5
2.6 传动系统的选择 5
2.7 翻转机构的基本设计 6
2.8 升降机构的基本设计 7
第3章 翻转机构 8
3.1翻转机构液压缸的设计 8
3.1.1液压缸的类型 8
3.1.2基本参数设计 8
3.1.3液压缸的结构设计与校核 12
3.1.4液压缸的稳定性和活塞杆的强度验算 15
3.2齿轮的设计 16
3.2.1 选择齿轮精度等级,材料,热处理方式及齿数 16
3.2.2齿轮的基本参数 17
3.2.3小齿轮的基本尺寸计算 18
3.2.4 轮齿所受的圆周力 ,径向力 ,法向载荷 的计算 18
3.2.5 齿根弯曲疲劳强度校核 19
3.3 扇形齿轮的设计 20
3.3.1扇形齿轮的形状设计 20
3.3.2 扇形齿轮的基本数据 20
3.3.3 扇形齿轮的模数 21
3.3.4扇形齿轮的基本尺寸计算 21
3.3.5 齿根弯曲疲劳强度校核 22
3.3.6 齿轮接触强度校核 22
3.4(Ⅰ)轴的设计 23
3.4.1(Ⅰ)轴的结构工艺性 23
3.4.2(Ⅰ)轴的材料 24
3.4.3小齿轮轴上的受力 24
3.4.4 计算轴的最小直径 25
3.4.5 确定轴的各段尺寸和长度 26
3.4.6联轴器的选择 26
3.4.7轴上零件的轴向定位 26
3.4.8确定轴上的圆角和倒角的尺寸 27
3.4.9确定轴上的载荷 27
3.5(Ⅱ)轴的设计 30
3.5.1 轴的结构工艺性 30
3.5.2轴的材料 30
3.5.3计算Ⅱ轴的转矩 30
3.5.4大扇形齿轮轴上的受力 30
3.5.5计算轴的最小直径 30
3.5.6确定轴的各段尺寸和长度 31
3.5.7轴上零件的轴向定位 32
3.5.8确定轴上的圆角和倒角的尺寸 32
3.5.9确定轴上的载荷 32
3.5.10平键的校核 35
第4章 经济性分析 37
第5章 结论 38
参考文献 39
致谢 40
温馨提示:
1、题目前面的备注【字母数字编号】为本站整理分类的编号,与课题内容无关,请选题时忽视;
2、若题目上备注三维,则表示文件里包含三维源文件,由于三维组成零件数量较多,为保证预览截图的简洁性,本站将三维文件夹进行了打包。三维及CAD预览截图,均为本站电脑打开软件进行截图的,保证能够打开,下载原件超高清,下载后解压即可;
3、本站所有资源如无特殊说明,都需要本地电脑安装Office2007。图纸软件为AutoCAD,PROE,UG,SolidWorks,CATIA等;
4、本站所有图文资料仅供用户学习参考,不作为任何商用或其他用途;
5、本站不保证下载资源的准确性、安全性和完整性, 不包修改,不支持退换,同时也不承担用户因使用这些下载资源对自己和他人造成任何形式的伤害或损失;
6、 下载文件中如有侵权或不适当内容,请与我们联系,我们立即纠正。