

作品包括:
Word版设计说明书1份,共37页,约13000字
任务书一份
外文翻译一份
CAD版本图纸,共6张
摘要
本次设计题目为2000×8000大型胶带制品平板硫化机液压系统设计。平板硫化机的工作压力是由液压系统提供的。液压技术是实现现代化传动与控制的关键技术之一,世界各国对液压工业的发展都给予很大重视。当前,液压技术在实现高压、高速、大功率、高效率、低噪声、经久耐用,高度集成化等各项要求方面都取得了重大的进展,在完善比例控制,伺服控制,数字控制等技术上也有许多新成就。此外,在液压元件和液压系统的计算机辅助设计,计算机仿真和优化控制等开发性工作方面,更日益显示出显著的成绩。
本次设计中包含液压系统的概述,液压系统方案设计及工作原理图的拟订,液压系统的设计及计算,标准液压元件的计算及其选择,油箱的设计过程以及阀板的设计等几大部分。其中液压系统方案设计及工作原理图的拟订过程是非常重要的,液压系统的拟订是整个系统中的最重要环节。它对系统的性能,设计的合理性、先进性都有重要的作用。
在液压系统的设计及计算中包含液压系统的主要技术参数的确定,液压元件的设计选取及主要参数的确定,实际工作中的各个阶段的压力值,各个工作循环过程中所需的流量的确定,油泵的计算及选取,各个工作阶段所消耗的最大功率等内容。其中液压元件的设计选取及主要参数的确定中包括了柱塞的设计,工作缸的设计。
在标准液压元件的计算及选取中包括电机的选取,油管内径的确定,液压元件的选取和技术参数的校正等内容。
设计说明书的最后是油箱和阀板的设计过程。
关键词:平板硫化机;液压系统;工作原理;液压元件;阀板
目录
第一章 引言 1
第二章 液压系统的概述 3
2.1 液压系统装置主要由以下五部分组成 3
2.2 液压传动具有以下一些优点 3
2.3 液压传动的缺点 4
第三章 液压系统方案设计及工作原理图的拟订 5
3.1 液压系统的主机及工艺循环 5
3.2 液压系统的设计方案 5
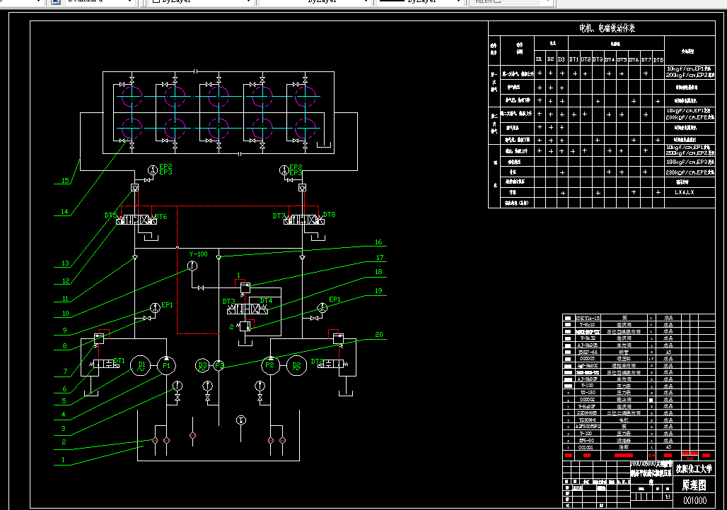
3.3 拟订液压系统的工作原理图 5
第四章 液压系统的设计及计算 7
4.1 液压系统的主要技术参数的确定 7
4.2 液压元件的设计选取及主要参数的确定 7
4.2.1 柱塞的设计 7
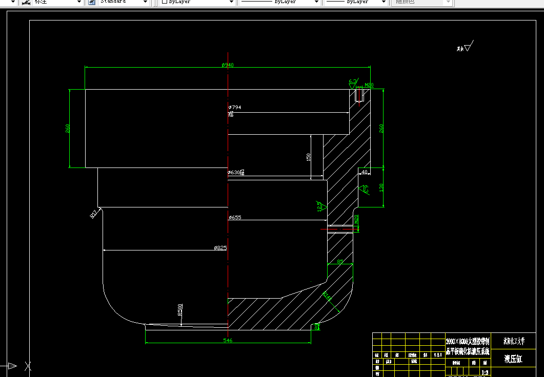
4.2.2 工作缸的设计 8
4.3 油泵的计算以及选取 12
第五章 标准液压元件的计算和选取 14
5.1 电机的选择 14
5.2 油管内径的确定 14
5.3液压元件的选取 15
第六章 油箱的设计过程 17
6.1 油箱的设计要点 17
6.2 油箱的尺寸计算 18
第七章 安装板的设计 19
第八章 结论 20
致谢 21
图、表清单
图清单
图3.1 液压原理图…………………………………………………………6
图4.1 工作缸示意图……………………………………………………..10
图4.2 柱塞示意图………………………………………………………..11
表清单
表4.1 平板硫化机的主要性能参数………………………………………7
表4.2 柱塞泵的性能参数………………………………………………..13
表5.1 电机性能参数……………………………………………………..14
表5.2 液压元件性能参数………………………………………………..15
温馨提示:
1、题目前面的备注【字母数字编号】为本站整理分类的编号,与课题内容无关,请选题时忽视;
2、若题目上备注三维,则表示文件里包含三维源文件,由于三维组成零件数量较多,为保证预览截图的简洁性,本站将三维文件夹进行了打包。三维及CAD预览截图,均为本站电脑打开软件进行截图的,保证能够打开,下载原件超高清,下载后解压即可;
3、本站所有资源如无特殊说明,都需要本地电脑安装Office2007。图纸软件为AutoCAD,PROE,UG,SolidWorks,CATIA等;
4、本站所有图文资料仅供用户学习参考,不作为任何商用或其他用途;
5、本站不保证下载资源的准确性、安全性和完整性, 不包修改,不支持退换,同时也不承担用户因使用这些下载资源对自己和他人造成任何形式的伤害或损失;
6、 下载文件中如有侵权或不适当内容,请与我们联系,我们立即纠正。