欢迎来到龙图网在线图文分享平台-CAD图纸,设计说明书,工业设计3D模型,三维软件下载!   客服QQ:2363701252
热搜:

工艺夹具 模具设计 数控编程 土木工程 3D模型

V459-四孔方板垫片冲压模具设计-长50 下载积分:50 资料编号: V459

1.打开支付宝或者微信扫描二维码。
2.填写金额:50 
3.添加备注,填写资料编号:
资料编号: V459
4.支付成功后,请发资料编号到邮箱:jxsj168@qq.com
会有专人在15分钟内把资料发到您邮箱
备注:如果付款忘记填写资料编号,则发邮件时附带您的交易明细截图即可。
请耐心等待,如超过30分钟还没收到,请联系客服QQ:2363701252
点击分享:

作品描述

作品描述:

Word版说明书1份,共24页,约6900字

CAD版本图纸,共13张

摘  要

本设计题目为垫片冲裁模,体现了典型冲裁模的设计要求、内容及方向,有一定的设计意义。通过对该模具的设计,加强了设计者对冲裁模设计基础知识的理解和运用,为设计更复杂的冲裁模具做好了铺垫。

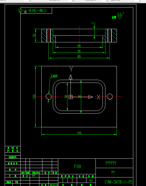
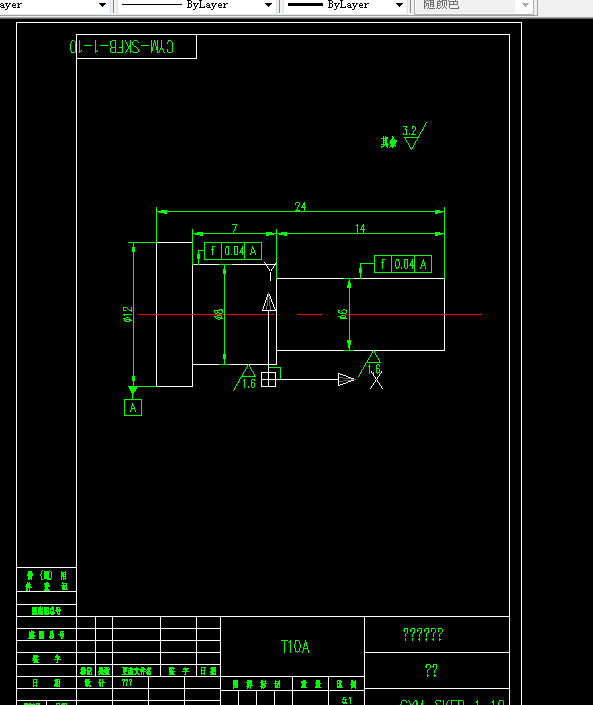
本设计采用了倒装式复合模成形垫片。成形原理可划分为两个阶段:首先,冲裁凸模与凸凹模先接触,实现对制件边缘轮廓的冲裁,得到长50 ,宽30 ,圆角为 的毛胚件;而后凸模与凸凹模相接触,凸模与凸凹模配合冲出四个 的圆孔,废料通过凸凹模孔向下漏掉。




关键词:    落料冲孔复合模  凸凹模  凸模  凹模    压力机吨位    


目录

第一章概述5

1.1 课题背景及意义5

1.2 本课题及相关领域的国内外发展现状5

1.2.1国内模具的现状5

1.2.2国内模具的发展趋势6

1.2.3国外模具的现状和发展趋势6

1.3 垫片落料冲孔复合模具设计与制造方面7

1.3.1垫片落料冲孔复合模具设计的设计思路7

第二章 落料冲孔复合模设计7

2.1 工艺性分析7

2.1.1工艺参数7

2.1.2材料简介7

2.2 排样设计8

2.2.1确定零件的排样方案8

2.2.2条料宽度、导料板间距离和材料利用率的计算8

2.3 冲压工艺方案的确定9

第三章 模具结构形式的选择与确定9

3.1 模具的结构形式9

3.2 冲压力与压力中心的计算10

3.3 初选压力机11

3.4 压力中心的计算11

第四章 模具主要零件设计11

4.1 工作零部件的设计与标准化12

4.1.1凸、凹模刃口尺寸的计算12

4.1.2工作零部件的设计与标准化13

4.2 定位装置的设计与标准化16

4.3 标准模架的选用17

4.4 卸料部件的设计与标准化20

4.4.1卸料版的设计20

4.4.2卸料螺钉的选用20

4.5 压力机的校核21

垫片冲孔落料级进模总装图21

结 束 语23

致  谢23

参 考 文 献24

温馨提示:

1、题目前面的备注【字母数字编号】为本站整理分类的编号,与课题内容无关,请选题时忽视;

2、若题目上备注三维,则表示文件里包含三维源文件,由于三维组成零件数量较多,为保证预览截图的简洁性,本站将三维文件夹进行了打包。三维及CAD预览截图,均为本站电脑打开软件进行截图的,保证能够打开,下载原件超高清,下载后解压即可;

3、本站所有资源如无特殊说明,都需要本地电脑安装Office2007。图纸软件为AutoCAD,PROE,UG,SolidWorks,CATIA等;

4、本站所有图文资料仅供用户学习参考,不作为任何商用或其他用途;
5、本站不保证下载资源的准确性、安全性和完整性, 不包修改,不支持退换,同时也不承担用户因使用这些下载资源对自己和他人造成任何形式的伤害或损失;

6、 下载文件中如有侵权或不适当内容,请与我们联系,我们立即纠正。


线