

作品包括:
word说明书一份,共29页,约14000字
任务书一份
开题报告一个
CAD版本图纸,共14张
目 录
前 言 ………………………………………………………………………(1)
1 塑件的工艺性分析 ……………………………………………………(3)
1.1 产品技术要求 ………………………………………………………(3)
1.2 塑件工艺分析 ………………………………………………………(3)
1.3 材料收缩率 ………………………………………………………(4)
2 注塑模的设计要点 ……………………………………………………(5)
3 注塑模的设计 …………………………………………………………(6)
3.1 注塑模与注塑机的关系 …………………………………………(6)
3.2 分型面的设计 ………………………………………………………(8)
3.3 浇注系统与排溢系统的设计 ……………………………………(9)
3.4 成型零件的设计 …………………………………………………(13)
3.5 合模导向机构的设计 ……………………………………………(16)
3.6 推出机构的设计 …………………………………………………(18)
3.7 温度调节系统的设计 ……………………………………………(20)
3.8 模架的设计 …………………………………………………………(22)
4 模具装配的工艺过程设计 …………………………………………(23)
4.1 模具总的装配程序 ……………………………………………(23)
4.2 模具装配的要点 …………………………………………………(23)
5 模具的安装、调试及护 …………………………………(26)
设 计 总 结 ………………………………………………………………(27)
参 考 文 献 ………………………………………………………………(28)
致 谢 …………………………………………………………………(29)
内 容 提 要
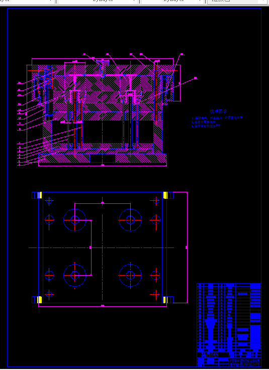
本模具为一个保温瓶内盖的注塑模具。设计分为整体装配图设计和所用各零件的设计。本设计从实际生产条件出发,结合相关理论给出了生产此类塑料制件的模具设计解决方案,涉及塑料的工艺性能、模具设计、以及机械设计等相关知识。
温馨提示:
1、题目前面的备注【字母数字编号】为本站整理分类的编号,与课题内容无关,请选题时忽视;
2、若题目上备注三维,则表示文件里包含三维源文件,由于三维组成零件数量较多,为保证预览截图的简洁性,本站将三维文件夹进行了打包。三维及CAD预览截图,均为本站电脑打开软件进行截图的,保证能够打开,下载原件超高清,下载后解压即可;
3、本站所有资源如无特殊说明,都需要本地电脑安装Office2007。图纸软件为AutoCAD,PROE,UG,SolidWorks,CATIA等;
4、本站所有图文资料仅供用户学习参考,不作为任何商用或其他用途;
5、本站不保证下载资源的准确性、安全性和完整性, 不包修改,不支持退换,同时也不承担用户因使用这些下载资源对自己和他人造成任何形式的伤害或损失;
6、 下载文件中如有侵权或不适当内容,请与我们联系,我们立即纠正。