

作品包括:
word说明书一份,共48页,约19000字
任务书一份
开题报告一份
CAD版本图纸,共27张
UG三维一套
摘 要
随着轴承工业的迅速发展,对轴承的加工精度、效率、可靠性提出了更高的要求。尺寸精度是轴承加工中的一项关键因素,而车床的进给机构直接影响轴承套圈加工的尺寸精度。因此,随着对轴承质量要求的不断提高,需要更加精密高效的车床进给机构。
本文是根据轴承厂轴承内外圈加工生产线项目的改造要求设计的,针对人工控制机床的进给加工,加工效率低,生产出的零件精度难于控制的问题,设计一套此车床的半自动进给机构,代替传统机床的人工操作,提高生产效率,提高零件的精度。
论文根据轴承内外圈加工设备加工时进给的特点,对其纵向进给机构进行合理的设计。设计出利用液压驱动,前、后调节机构调节进给量的纵向进给机构。本文先对液压驱动系统、导向机构、前调节机构、后调节机构进行设计,确定具体尺寸。利用UG软件对纵向进给机构进行三维建模,并进行虚拟装配。然后对装配图在UG运动仿真界面进行运动仿真,分析仿真结果,得出相应结论。最后对纵向进给系统进行优化设计,提高其稳定性、可靠性。使其能满足轴承厂生产线繁重的工作。
关键词:进给机构;UG;虚拟装配;运动仿真
目 录
摘 要 III
ABSTRACT IV
目 录 V
1 绪论 1
1.1 课题来源,研究内容和意义 1
1.2 轴承与轴承圈 1
1.2.1 轴承 1
1.2.2 轴承圈 2
1.3 国内外发展概况 2
1.4 本课题主要内容 3
2 纵向自动进给机构设计 4
2.1 现有机构及生产要求的分析 4
2.2 整体设计方案及思路 5
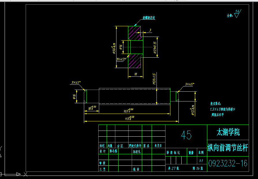
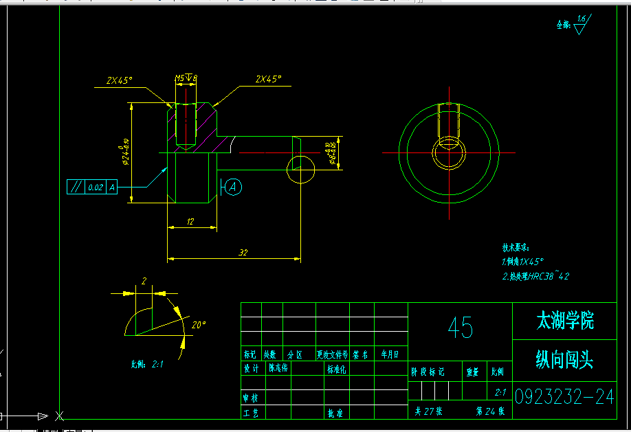
2.3 纵向进给机构各部分的设计与计算 6
2.3.1 纵向进给机构外形轮廓确定 6
2.3.2 导向机构设计 7
2.3.3 驱动装置的选取 9
2.3.4 前调节机构设计 12
2.3.5 后调节机构设计 12
2.4 本章小结 13
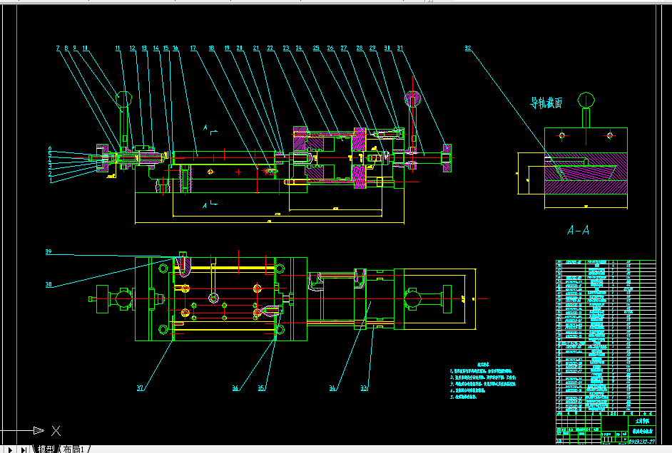
3基于UG的进给机构三维建模与装配 14
3.1 UG软件简介 14
3.1.1 UG软件特点 14
3.1.2 UG软件设计流程 14
3.1.3 UG软件的应用范围 14
3.1.4 UG软件设计的意义 15
3.2 纵向机构的三维建模 15
3.2.1 纵向底板的建模 15
3.2.2 纵向燕尾板建模 16
3.2.3 刹铁的建模 16
3.2.4 纵向台面板的建模 17
3.2.5 油缸的建模 19
3.2.6 前调节机构的建模 19
3.2.7 后调节机构的建模 20
3.3纵向进给机构的装配 20
3.4本章小结 23
4 纵向自动进给机构的运动仿真 24
4.1 UG运动仿真简介 24
4.1.1 UG运动仿真主界面 24
4.2运动仿真的流程 25
4.3创建连杆 26
4.4创建运动副 27
4.5创建驱动及“3D”接触 29
4.6 本章小结 35
5 总结与展望 36
5.1 总结 36
5.2 不足及展望 36
致 谢 37
参考文献 38
温馨提示:
1、题目前面的备注【字母数字编号】为本站整理分类的编号,与课题内容无关,请选题时忽视;
2、若题目上备注三维,则表示文件里包含三维源文件,由于三维组成零件数量较多,为保证预览截图的简洁性,本站将三维文件夹进行了打包。三维及CAD预览截图,均为本站电脑打开软件进行截图的,保证能够打开,下载原件超高清,下载后解压即可;
3、本站所有资源如无特殊说明,都需要本地电脑安装Office2007。图纸软件为AutoCAD,PROE,UG,SolidWorks,CATIA等;
4、本站所有图文资料仅供用户学习参考,不作为任何商用或其他用途;
5、本站不保证下载资源的准确性、安全性和完整性, 不包修改,不支持退换,同时也不承担用户因使用这些下载资源对自己和他人造成任何形式的伤害或损失;
6、 下载文件中如有侵权或不适当内容,请与我们联系,我们立即纠正。