

作品包括:
设计word版本说明书一份,共22页,约5200字
CAD版本图纸,共4张
目 录
1. 概述和机床参数确定………………………………………………………………1
1.1机床运动参数的确定…………………………………………………………………1
1.2机床动力参数的确定…………………………………………………………………1
1. 3机床布局………………………………………………………………………………1
2. 主传动系统运动设计……………………………………………………………………2
2.1确定变速组传动副数目………………………………………………………………2
2.2确定变速组的扩大顺序………………………………………………………………2
2.3绘制转速图……………………………………………………………………………3
2.4确定齿轮齿数…………………………………………………………………………3
2.5确定带轮直径…………………………………………………………………………3
2.6验算主轴转速误差……………………………………………………………………4
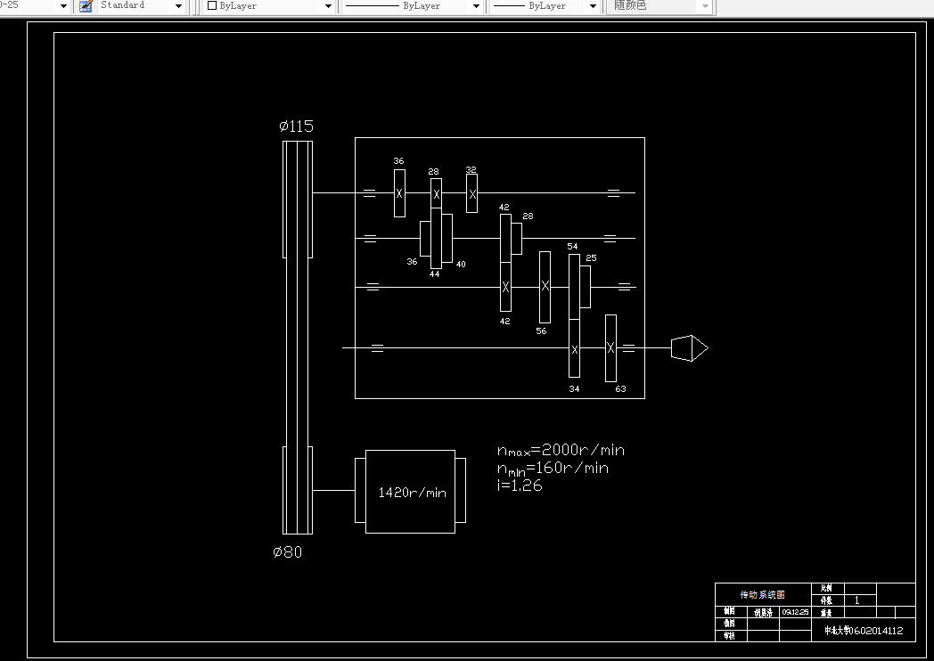
2.7绘制传动系统图………………………………………………………………………4
3.估算传动件参数 确定其结构尺寸………………………………………………………5
3.1确定传动转速…………………………………………………………………………5
3.2确定主轴支承轴颈尺寸………………………………………………………………6
3.3估算传动轴直径………………………………………………………………………6
3.4估算传动齿轮模数……………………………………………………………………6
3.5普通V带的选择和计算………………………………………………………………7
4.结构设计…………………………………………………………………………………8
4.1带轮设计………………………………………………………………………………8
4.2齿轮块设计……………………………………………………………………………8
4.3轴承的选择……………………………………………………………………………9
4.4主轴组件………………………………………………………………………………9
4.5操纵机构、滑系统设计、封装置设计………………………………………………9
4.6主轴箱体设计…………………………………………………………………………9
4.7主轴换向与制动结构设计……………………………………………………………9
5.传动件验算……………………………………… ………………………………………10
5.1齿轮的验算……………………………………… …………………………………10
5.2传动轴的刚度验算………………………………… ………………………………12
5.3花键键侧压溃应力验算……………………………………………………………16
5.4滚动轴承的验算……………………………………………………………………16
5.5主轴组件验算.......................................................17
6. 主轴位置及传动示意图..............................................20
7.总结……………………………………………………………21
8.参考文献………………………………………………………………22
温馨提示:
1、题目前面的备注【字母数字编号】为本站整理分类的编号,与课题内容无关,请选题时忽视;
2、若题目上备注三维,则表示文件里包含三维源文件,由于三维组成零件数量较多,为保证预览截图的简洁性,本站将三维文件夹进行了打包。三维及CAD预览截图,均为本站电脑打开软件进行截图的,保证能够打开,下载原件超高清,下载后解压即可;
3、本站所有资源如无特殊说明,都需要本地电脑安装Office2007。图纸软件为AutoCAD,PROE,UG,SolidWorks,CATIA等;
4、本站所有图文资料仅供用户学习参考,不作为任何商用或其他用途;
5、本站不保证下载资源的准确性、安全性和完整性, 不包修改,不支持退换,同时也不承担用户因使用这些下载资源对自己和他人造成任何形式的伤害或损失;
6、 下载文件中如有侵权或不适当内容,请与我们联系,我们立即纠正。