

作品包括:
Word版说明书1份,共40页,约11000字
任务书一份
CAD版本图纸,共10张
UG三维图一份

摘 要
近几年好多国家都在发展机械行业,与机械相关的各个行业都越来越重视CAD/CAM技术,如今CAD/CAM技术已发展成为一项比较成熟的共性技术,我国家电工业的高速发展对模具工业,尤其是塑料模具提出了越来越高的要求,国内塑料模具市场以注塑模具需求量最大,其中发展重点为工程塑料模具。同时还因为塑料制品及模具的3D设计与成型过程中3D分析正在塑料模具工业中发挥越来越重要的作用。
在本次毕业设计中,通过运用三维实体造型高端软件UG对“手机充电宝下盖”外形进行3D造型,同时也设计了其塑料注塑模的3D模型;还根据所设计的模具尺寸选择安装了相应的模架,最终生成了直观的结构设计图;此外还利用CAD绘制了模具装配图以及各种成型零件图。
关键词:CAD/CAM;塑料;模具;UG
目 录
摘 要 I
Abstract II
第1章 绪论 1
第2章 产品材料 3
2.1 成型产品材料 3
2.2 注塑模具材料 3
第3章 成型工艺分析 5
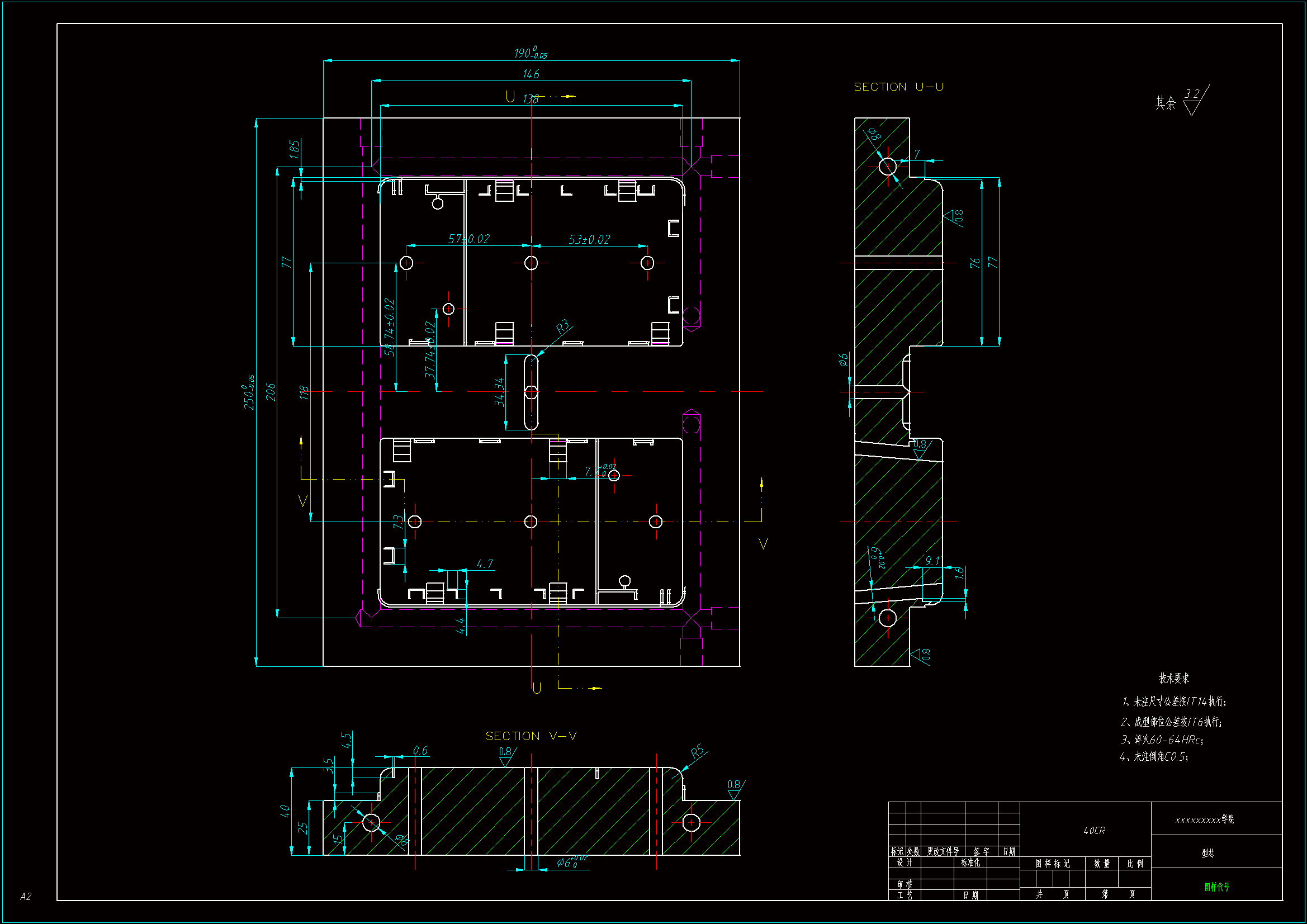
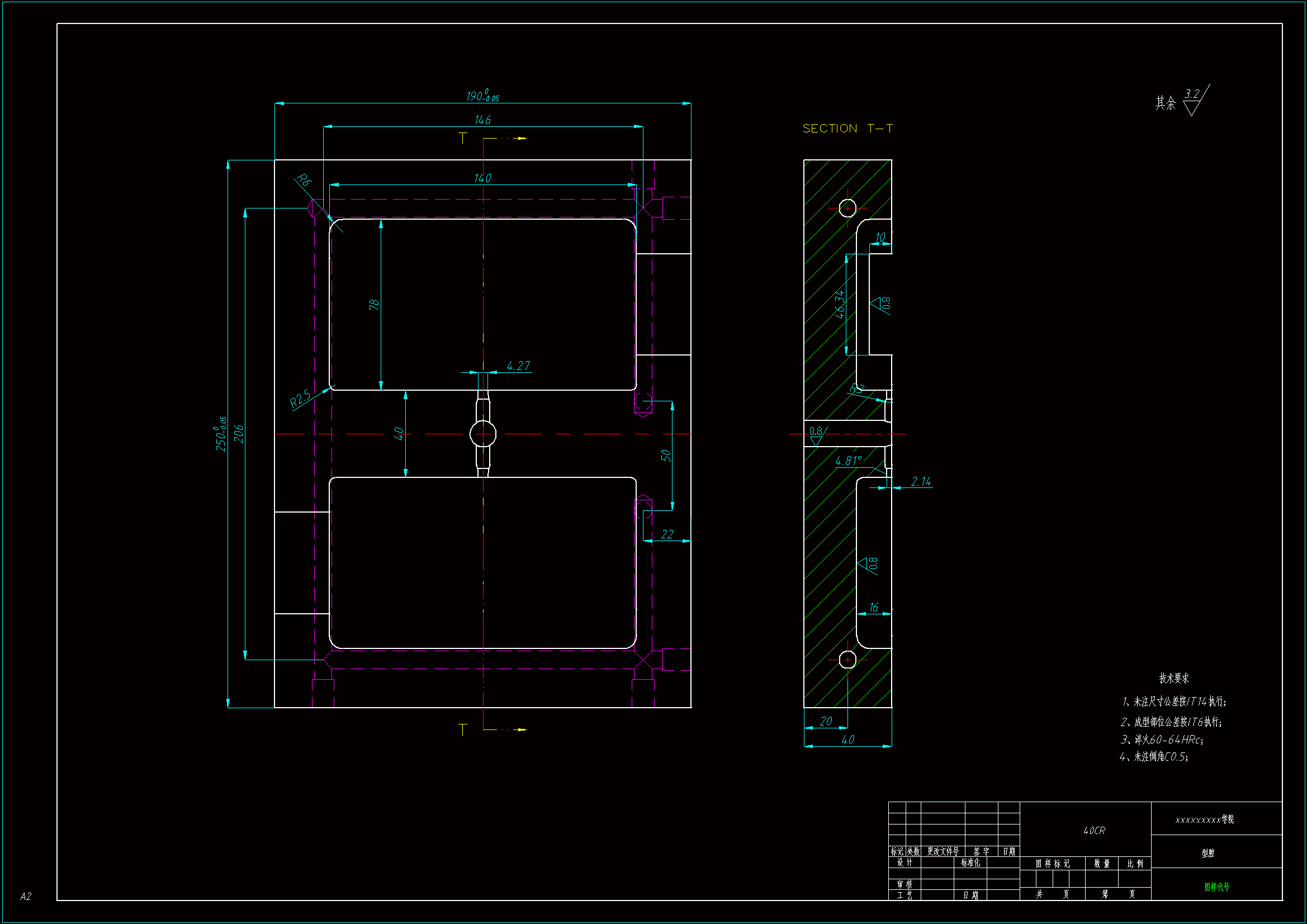
3.1 手机充电宝下盖零件图 5
3.2 塑件的工艺性分析 5
3.3 塑料材料的基本特性 5
3.3.1 ABS的性能指标 6
3.3.2 塑件材料成型性能 6
3.3.3 尺寸精度分析 6
3.3.4 表面质量分析 7
3.4 模塑设备的选择 7
3.5 塑件注射工艺参数的确定 8
3.6 注射模的结构设计 9
3.6.1 分型面的选择 9
3.6.2 确定型腔的排列方式 9
3.6.3 浇注系统的设计 10
3.6.5 浇注系统的平衡 13
3.6.6 推件机构的设计 13
3.7冷却装置的设计 14
3.7.1冷却时间的计算 14
3.7.2 冷却水管直径 15
3.7.3 冷却水道的结构 15
图3.7.1冷却水道的结构 16
3.8抽芯机构的选择 16
3.8.1 抽芯距的计算 16
3.8.2 斜导柱抽芯的设计 17
3.8.3滑块的设计 17
第4章 模具的有关计算 19
4.1 型腔工作尺寸计算 19
4.2 型芯工作尺寸计算 21
第5章 模架的选择 23
8.2 模具安装校核 23
第6章 注射机的校核 24
6.1 最大注射量的校核 24
6.2 注射压力的校核 24
6.3 锁模力的校核 24
6.4 模具外形尺寸校核 25
6.5 开模行程的校核 25
第7章 模具的加工 26
7.1 型腔的数控加工工艺及编程 27
结论 31
致 谢 32
参考文献 33
温馨提示:
1、题目前面的备注【字母数字编号】为本站整理分类的编号,与课题内容无关,请选题时忽视;
2、若题目上备注三维,则表示文件里包含三维源文件,由于三维组成零件数量较多,为保证预览截图的简洁性,本站将三维文件夹进行了打包。三维及CAD预览截图,均为本站电脑打开软件进行截图的,保证能够打开,下载原件超高清,下载后解压即可;
3、本站所有资源如无特殊说明,都需要本地电脑安装Office2007。图纸软件为AutoCAD,PROE,UG,SolidWorks,CATIA等;
4、本站所有图文资料仅供用户学习参考,不作为任何商用或其他用途;
5、本站不保证下载资源的准确性、安全性和完整性, 不包修改,不支持退换,同时也不承担用户因使用这些下载资源对自己和他人造成任何形式的伤害或损失;
6、 下载文件中如有侵权或不适当内容,请与我们联系,我们立即纠正。