

作品包括:
Word版说明书1份,共37页,约11000字
工序卡9张
工艺过程卡1张
CAD版本图纸,共6张

摘要
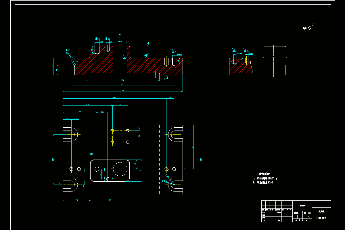
本文选择了推动架作为研究对象,它的主要作用是将从电动机传来的旋转运动通过偏心轮杠杆使推动架绕其轴心线摆动,以实现工作台的自动进给。
本文主要研究内容是推动架的工艺编制及夹具设计。制定了加工推动架的机械加工工艺路线,详细计算了加工余量、切削用量、尺寸公差,确定各工序尺寸、工序加工余量、加工工时、机械加工三要素等,选择其加工设备。通过本设计掌握零件的加工过程分析、工艺卡片的编制和步骤。学会应用手册、标准、规范等资料。认识到工艺在机械制造中的重要性。了解刀具的选用规则,产品质量、精度、寿命等属性和节约材料,降低成本,最重要的是提高生产效率。
设计加工Ф32孔钻床专用夹具,设计内容有:定位方案和夹紧方案的确定,定位元件和夹紧元件的选择,夹具体的设计,钻削力的计算等等。
关键词:推动架、工艺编制、夹具设计、Ф32孔、钻床
目录
摘要I
第一章绪论III
1.1本课题研究的目的及意义III
1.2机械加工工艺规程III
1.3机床夹具的发展1
1.4机床夹具设计的基本要求2
第二章推动架零件的分析3
2.1零件的作用3
2.2零件的分析3
2.2.1零件的工艺分析3
2.2.2零件结构分析3
2.2.3零件的技术要求分析4
2.2.4零件的组成表面4
2.2.5零件的技术要求4
2.2.6零件的形位公差5
第三章推动架工艺规程的设计6
3.1零件生产类型的确定6
3.2确定零件的材料及制造方式6
3.3选择加工的定位基准7
3.4加工工艺路线的选择、比较与确定7
3.4.1加工工艺路线方案一8
3.4.2加工工艺路线方案二8
3.4.3加工工艺路线的比较与确定9
3.5加工设备、加工刀具及量具的选用9
3.6各工序工步加工余量的计算9
3.7确定切削用量及基本工时11
第四章专用夹具设计25
4.1定位方案及定位元件的确定与选择25
4.1.1定位方案的确定25
4.1.2定位元件的选择25
4.2夹紧方案及元件的确定与选择26
4.2.1夹紧方案的确定26
4.2.2夹紧元件的选择26
4.3夹具体的确定26
4.4导向装置—钻套的确定27
4.5钻削力和夹紧力的计算29
4.5.1钻削力的计算29
4.5.2夹紧力的计算29
4.6定位误差的分析30
结论31
致谢32
参考文献33
温馨提示:
1、题目前面的备注【字母数字编号】为本站整理分类的编号,与课题内容无关,请选题时忽视;
2、若题目上备注三维,则表示文件里包含三维源文件,由于三维组成零件数量较多,为保证预览截图的简洁性,本站将三维文件夹进行了打包。三维及CAD预览截图,均为本站电脑打开软件进行截图的,保证能够打开,下载原件超高清,下载后解压即可;
3、本站所有资源如无特殊说明,都需要本地电脑安装Office2007。图纸软件为AutoCAD,PROE,UG,SolidWorks,CATIA等;
4、本站所有图文资料仅供用户学习参考,不作为任何商用或其他用途;
5、本站不保证下载资源的准确性、安全性和完整性, 不包修改,不支持退换,同时也不承担用户因使用这些下载资源对自己和他人造成任何形式的伤害或损失;
6、 下载文件中如有侵权或不适当内容,请与我们联系,我们立即纠正。