

作品包括:
Word版说明书1份,共39页,约14000字
CAD版本图纸,共14张
3D工件图1张


摘要
进入20世纪90年代以来,各式各样的五金件成为了主流。由于在生活中许多都要用到五金件,因此,五金冲压模具将不断发展,在近几十年里会有突飞猛进的成果。通过翻阅这些参考资料和文献,深入了解了当代的模具先进制造技术和冲压成型技术。查找整理资料后,对一些模具设计实例有了解与学习,进一步学习了冲压模具设计的方法,并能对模具设计的成本价格做出估算,从而对模具设计有了方向性的指导。
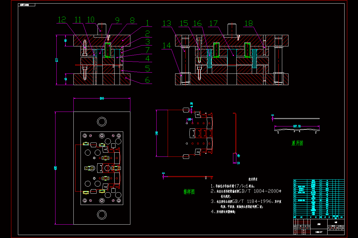
通过对深入学习,对此零部件模具设计时的设计方式有了雏形。先分析眼镜架零件的冲压工艺;确定模具的总体结构;结合零件的冲压工艺及模具的总体结构设计排样图;根据排样图,计算利用率、冲载力、压力、选用设备及刃口的尺寸。根据资料再用AutoCAD,对模具进行设计,然后绘出装配图和零件图进行标注,并编制零件的加工工艺卡,使理论和生产实际知识综合运用,从而培养和提高了我独立工作的能力。
关键词:模具设计;眼镜架;冲压工艺;排样图
目录
摘要I
Abstract II
第1章绪论1
1.1课题背景及目的1
1.2模具行业发展的研究现状1
1.3模具及其功能与作用2
1.3.1课题研究的主要目标2
1.3.2课题研究的主要内容3
1.3.3课题研究的主要要求3
1.3.4设计课题的要求4
第2章冲模设计程序与步骤概述4
2.1冲件工艺性分析4
2.2确定合理的冲压工艺4
2.3进行工艺计算4
2.4模具总体设计5
2.5选择冲压设备5
2.6模具图样设计6
第3章冲裁模设计7
3.1毛坯尺寸计算7
3.2工艺方案的确定8
3.3进行工艺计算9
3.3.1排样9
3.3.2搭边9
3.3.3条料宽度的确认10
3.4冲裁间隙10
3.5冲压工艺力和压力中心的计算12
3.5.1冲裁力的计算12
3.5.2卸料力、推件力及顶件力的计算12
3.5.3压力机公称压力的确定13
3.5.4模具压力中心的确定13
3.6模具零件加工工艺14
3.7冲裁模的结构设计17
3.7.1模具类型的选择17
3.7.2定位方式的选择17
3.7.3卸料、出件方式的确定18
3.7.4模架的选用19
3.7.5冲压设备的选择23
第4章零部件的设计与选用24
4.1支撑固定及卸料零件24
4.2弹性元件26
4.3挡料销26
4.4模架及其他零部件的选用27
第5章模具制造工艺与工艺规程28
5.1模具制造工艺规程28
5.1.1工艺规程的定义、内容与特点28
5.1.2工艺规程的文件形式28
5.2模具制造工艺规程的技术基础28
5.2.1模具成型件的结构工艺及其要素28
5.2.2工艺基准的确定28
5.2.3模具成型件的加工方法与制造精度28
5.2.4加工方法与表面粗糙度28
5.3模具零件制造工艺规程的基本内容29
5.3.1模具零件毛坯和加工余量29
5.3.2模具零件制造工序、工序尺寸与公差29
第6章模具的使用30
6.1模具检测30
6.2模具使用安全30
6.3模具使用的要求30
第7章模具总装图31
总结与展望32
主要参考文献33
致谢34
温馨提示:
1、题目前面的备注【字母数字编号】为本站整理分类的编号,与课题内容无关,请选题时忽视;
2、若题目上备注三维,则表示文件里包含三维源文件,由于三维组成零件数量较多,为保证预览截图的简洁性,本站将三维文件夹进行了打包。三维及CAD预览截图,均为本站电脑打开软件进行截图的,保证能够打开,下载原件超高清,下载后解压即可;
3、本站所有资源如无特殊说明,都需要本地电脑安装Office2007。图纸软件为AutoCAD,PROE,UG,SolidWorks,CATIA等;
4、本站所有图文资料仅供用户学习参考,不作为任何商用或其他用途;
5、本站不保证下载资源的准确性、安全性和完整性, 不包修改,不支持退换,同时也不承担用户因使用这些下载资源对自己和他人造成任何形式的伤害或损失;
6、 下载文件中如有侵权或不适当内容,请与我们联系,我们立即纠正。